Hoàn thiện mẫu nhà 2 tầng hiện đại - Chủ đầu tư: Anh Vương, Hà Nội
1. Phối cảnh 3D mặt tiền
Chủ đầu tư: Anh Tuấn
- Địa điểm xây dựng: Bắc Ninh
- Công năng sử dụng:
+ Tầng 1: Phòng khách chung phòng thờ + Phòng ăn+ Bếp + 1 Phòng ngủ + WC
+ Tầng 2: 1 Phòng ngủ khép kín + 2 Phòng ngủ thường + WC
Tum: Sân phơi

Trên diện tích rộng thoải mái, căn nhà phố 2 tầng 2 mặt tiền gây sự chú ý với kiểu dáng hiện đại và vô cùng vững trãi. Phong cách kiến trúc hiện đại độc đáo với không gian sống mở, ấn tượng khi quan sát ở các góc độ khác nhau. Công trình với thiết kế thông minh, tận dụng tối đa diện tích, mở rộng không gian, đồng thời giải quyết vấn đề lấy sáng và đón gió hiệu quả cho ngôi nhà.
Ngôi nhà sử dụng toàn bộ hệ thống cửa chính, cửa sổ bằng chất liệu kính cường lực trong suốt khung nhôm xingfa có khả năng đón nhận gió, ánh sáng tự nhiên tối đa. Từ đó góp phần tiết kiệm nguồn điện năng tiêu thụ, giúp không gian sống luôn được rộng mở với thiên nhiên, mang lại bầu không khí mát mẻ và dễ chịu. Đồng thời, tại mỗi ban công, kiến trúc sư còn bố trí thêm những chậu cây xanh, giúp không gian ngoại thất trở nên gần gũi thiên nhiên hơn.
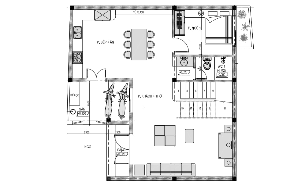
2. Công năng sử dụng
2.1. Tầng 1
Phòng khách chung phòng thờ + Phòng ăn+ Bếp + 1 Phòng ngủ + WC
.png?969)
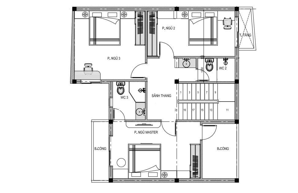
2.2. Tầng 2
1 Phòng ngủ khép kín + 2 Phòng ngủ thường + WC
.png?515)
3. Hình ảnh thi công


