Hoàn thiện mẫu nhà vườn mái Nhật - Anh Hồng, Thái Nguyên
Nhà vườn mái Nhật ngày càng được nhiều gia chủ yêu thích, lựa chọn xây dựng bởi vẻ đẹp khỏe khắn và phù hợp thời tiết tại Việt Nam. Nếu bạn đang có dự định xây nhà mà chưa lựa chọn được mẫu nhà ưng ý, hãy tham khảo mẫu nhà anh Hồng được Việt Home giới thiệu trong bài viết hôm nay.
1. Phối cảnh 3D mặt tiền
- Chủ đầu tư: Anh Hồng
- Địa điểm xây dựng: Tháo Nguyên
- Tên công trình: Nhà vườn 1 tầng mái Nhật

Mẫu nhà được xây dựng trên khuôn đất có mặt tiền rộng. Hệ thống cột vuông đem lại cảm giác chắc chăn và bề thế cho tổng thể. Để đảm bảo căn nhà được thoáng, tránh mưa bão kiến trúc sư đã thiết kế bậc tam cấp thành 5 bậc.

Phần mái được thiết kế vô cùng đặc biệt với 2 ô thoáng khí. Điều này đảm bảo sự thông thoáng bên trong và tính thẩm mỹ căn nhà.
Đặc trưng nhà mái nhật là thường sử dụng màu xanh ghi. Như vậy mang lại sự dịu mát khi nhìn tổng thể.

Hệ thống cửa sổ được bố trí bằng cửa kính để mang lại ánh sáng và sự thông thoáng bên trong căn nhà.
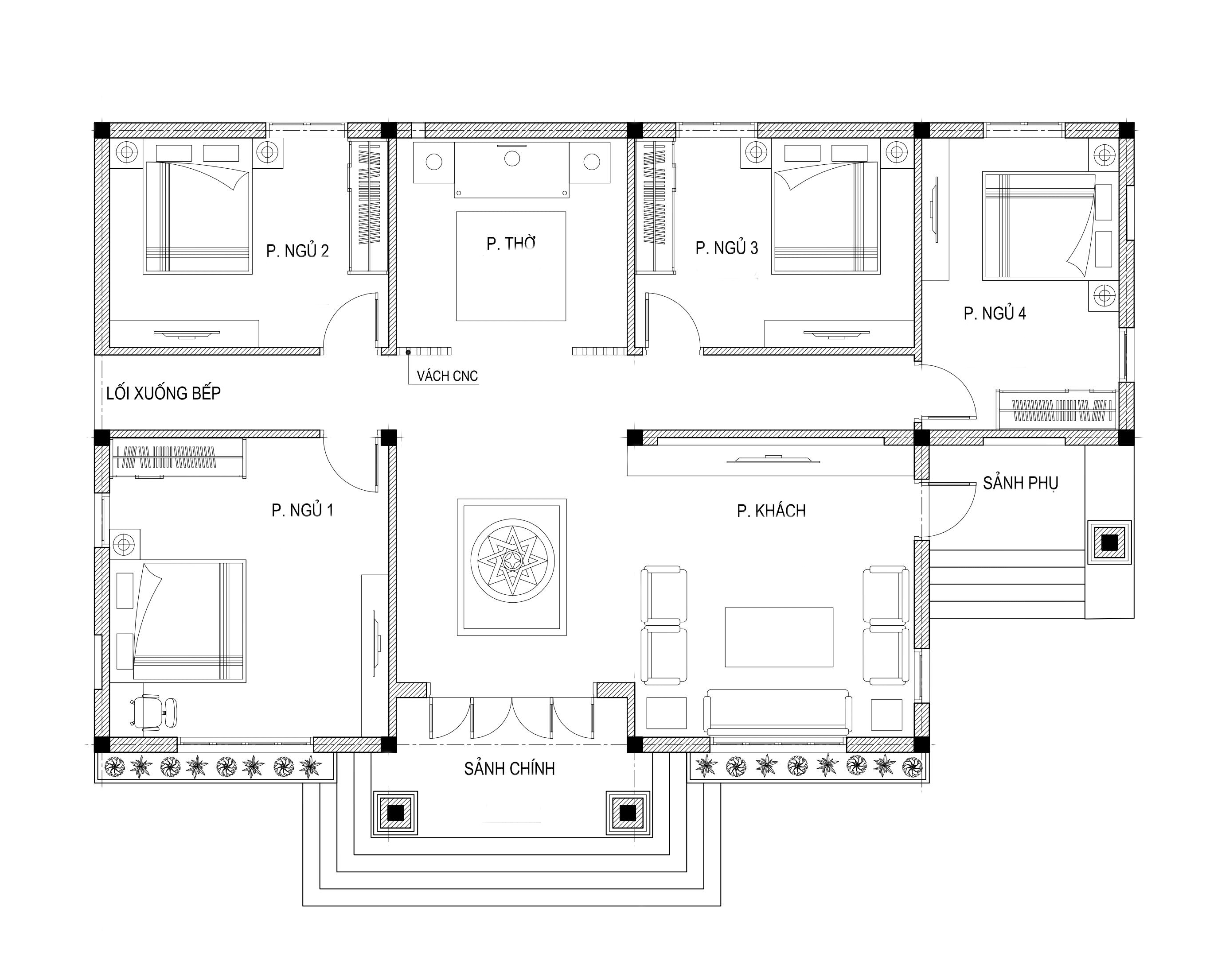
2. Bố trí công năng các tầng
Phòng khách + Phòng thờ + 4 Phòng ngủ

3. Hình ảnh thi công thực tế
3.1. Hình ảnh thi công sắt móng




3.2. Hình ảnh đổ sàn mái





Xây dựng trên khuôn viên rộng, anh Hồng lựa chọn phương án bố trí bếp và nhà vệ sinh bên ngoài nhà. Như vậy không gian bên trong không những rộng, thoáng mà còn tránh mùi nấu ăn vào bên trong.
Trên đây là mẫu nhà và bố trí bên trong nhà anh Hồng tạ Thái Nguyên. Mỗi gia chủ sẽ có nhu cầu xây dựng, khuôn đất và hướng phong phù hợp khác nhau. Bởi vậy, việc nghiên cứu và thiết kế nhà sao cho tương ứng là vô cùng quan trọng.
Nếu bạn đang có nhu cầu xây nhà, nhanh tay liên hệ với chúng tôi để nhận tư vấn phù hợp nhất.
