Khám phá mẫu biệt thự phố 2 tầng 1 tum mái Nhật đầy ấn tượng của chủ đầu tư anh Chiến tại Lai Châu
1. Phối cảnh 3D mặt tiền
- Chủ đầu tư: Anh Chiến
- Địa điểm xây dựng: Lai Châu
- Tên công trình: Biệt thự phố mái nhật
- Công năng sử dụng:
+ Tầng 1: Gara + Phòng khách + Phòng bếp ăn + 1 Phòng ngủ khép kín + 1 WC
+ Tầng 2: Phòng thờ + 2 Phòng ngủ + 1 Phòng ngủ khép kín + 1 WC
+ Tầng tum: Sân Thượng + Sân phơi

Căn biệt thự phố 2 tầng 1 tum mái Nhật nổi bật nhất khu vực với kiến trúc hiện đại, tinh tế và sang trọng, khẳng định sự đẳng cấp về thẩm mỹ vượt thời gian. Thiết kế hệ mái Nhật bên trên thanh thoát cùng với những hình khối vuông vức mang đến vẻ đẹp mạnh mẽ, khỏe khoắn và chắc chắn cho toàn bộ kết cấu của ngôi nhà. Ngôi nhà của gia đình anh Chiến sử dụng những tấm kính cường lực lớn giúp tận dụng tối đa ánh sáng tự nhiên, vừa tốt cho mắt, tiết kiệm điện mà lại tốt cho phong thủy. Bên cạnh đó, chất liệu kính khi được kết hợp với ánh sáng của đèn ngoại thất còn giúp ngôi nhà của bạn trở nên đẹp lung linh, quyến rũ.
Ban công tầng 2 và tầng tum đua ra rộng rãi, lan can được làm bằng kính cường lực vừa đảm bảo kết cấu chắc chắn, an toàn cho người sử dụng vừa giúp cho căn biệt thự phố mái Nhật 2 tầng 1 tum trở nên thoáng đãng, hiện đại. Nhìn vào tổng mặt bằng quy hoạch, ta có thể nhận thấy các KTS đã tận dụng không gian ban công để tăng thêm diện tích sử dụng cho công trình, biến ban công thành nơi sinh hoạt chung, ăn uống, ngắm cảnh thư giãn. Sân thượng không chỉ còn là nơi giặt giũ, phơi phóng mà còn là không gian giải trí, trải nghiệm, làm việc ngoài trời thú vị. Với khung cảnh đầy chất thơ như vậy hứa hẹn sẽ mang đến cho chủ đầu tư những góc view tuyệt vời nhất.
2. Bố trí công năng
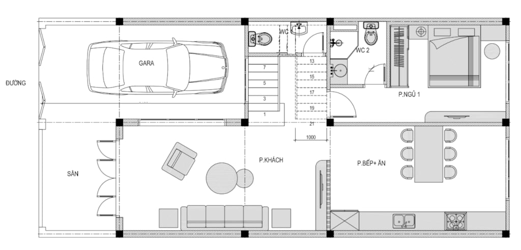
2.1. Tầng 1
+ Tầng 1: Gara + Phòng khách + Phòng bếp ăn + 1 Phòng ngủ khép kín + 1 WC
.png?312)
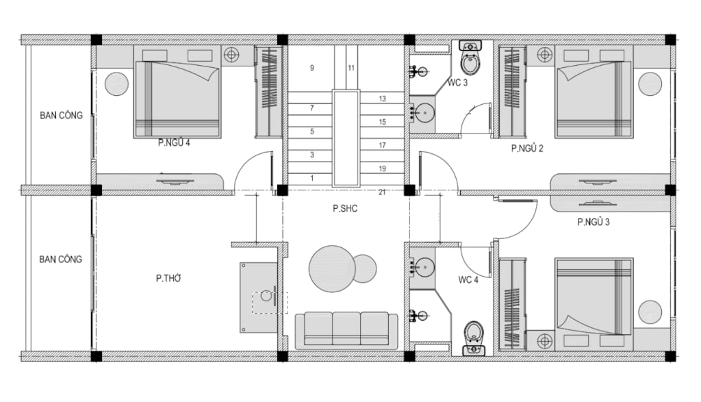
2.2. Tầng 2
+ Tầng 2: Phòng thờ + 2 Phòng ngủ + 1 Phòng ngủ khép kín + 1 WC
.png?388)
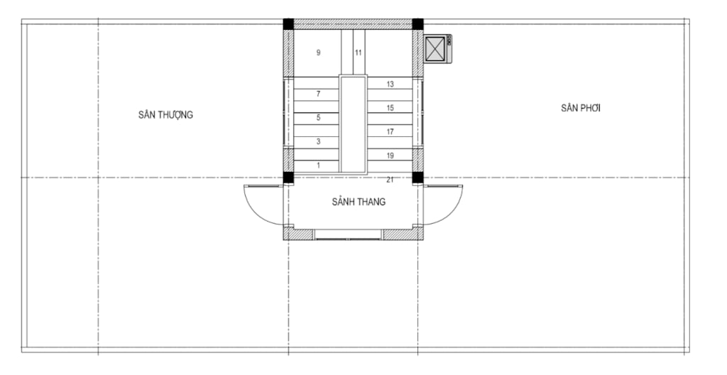
2.3. Tầng 3
+ Tầng tum: Sân Thượng + Sân phơi
.png?438)
