Khám phá mẫu nhà mái Nhật 1 tầng kết hợp tầng hầm độc đáo - Chủ đầu tư: Anh Nghĩa, Hòa Bình
1. Phối cảnh 3D mặt tiền
- Chủ đầu tư: Anh Nghĩa
- Địa điểm xây dựng: Hòa Bình
- Công năng sử dụng
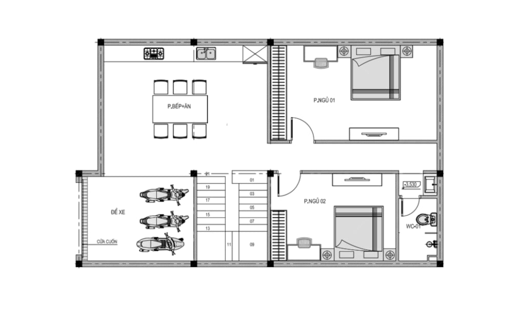
+ Tầng hầm: Hầm để xe + Phòng bếp + 2 Phòng ngủ + 1 WC
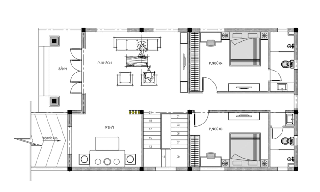
+ Tầng 1: Phòng khách + Phòng thờ + 1 Phòng ngủ khép kín + 1 Phòng ngủ thường + 1 WC

Mẫu nhà mái Nhật 1 tầng có tầng hầm dưới đây được thiết kế theo phong cách hiện đại, mang đến không gian sống tiện nghi và thẩm mỹ cao. Kiến trúc mái Nhật với độ dốc vừa phải không chỉ giúp thoát nước tốt trong điều kiện khí hậu Việt Nam mà còn tạo nên vẻ đẹp hài hòa, sang trọng.
Phần tầng hầm được bố trí thông minh, tận dụng tối đa diện tích sử dụng,vừa để xe vừa để phòng sinh hoạt. Bên cạnh đó, việc kết hợp giữa hình khối kiến trúc mạnh mẽ và vật liệu hiện đại như kính, gạch ốp tường ngoại thất, cùng màu sắc trang nhã giúp ngôi nhà nổi bật và bền vững theo thời gian.

Hệ thống chống thấm được thi công bằng các vật liệu chuyên dụng cao cấp, kết hợp với quy trình xử lý kỹ lưỡng từ lớp lót, màng chống thấm đến lớp bảo vệ bề mặt, đảm bảo hiệu quả bền vững theo thời gian. Nhờ đó, khách hàng hoàn toàn có thể yên tâm về độ an toàn, khô ráo và tính ổn định của khu vực này, ngay cả trong điều kiện thời tiết khắc nghiệt.
2. Bố trí công năng sử dụng
2.1. Tầng hầm
Hầm để xe + Phòng bếp + 2 Phòng ngủ + 1 WC
.png?348)
2.2. Tầng 1
Phòng khách + Phòng thờ + 1 Phòng ngủ khép kín + 1 Phòng ngủ thường + 1 WC
.png?620)
