Khám phá mẫu nhà hiện đại và tiện nghi 2 tầng 1 tum đầy ấn tượng của chủ đầu tư anh Cảnh tại Nam Định
1. Phối cảnh 3D mặt tiền
Chủ đầu tư: Anh Cảnh
- Địa điểm xây dựng: Nam Định
- Công năng sử dụng:
+ Tầng 1: Phòng khách + Phòng Bếp, ăn + Phòng ngủ + WC
+ Tầng 2: Phòng thờ + Phòng ngủ Master + 2 Phòng ngủ thường + WC
+ Tầng tum: Sân thượng

Mặt tiền ngôi nhà 2 tầng 1 tum mang một vẻ đẹp hiện đại, sắc nét và vô cùng cuốn hút ngay từ ánh nhìn đầu tiên nhờ sự phối hợp hài hòa giữa màu sắc, vật liệu và hình khối kiến trúc. Gam trắng tinh tế được sử dụng làm nền chủ đạo bao phủ toàn bộ công trình, như một lớp áo thanh thoát giúp làm nổi bật tất cả các chi tiết khác. Trên nền trắng ấy, hệ cửa kính khung nhôm đen trở thành điểm nhấn mạnh mẽ, tạo nên sự tương phản đầy tính nghệ thuật. Những khung cửa lớn được bố trí cân xứng, sắc cạnh, vừa tăng cường ánh sáng tự nhiên tràn vào bên trong vừa khiến mặt tiền trở nên sang trọng và hiện đại hơn. Bên trong, sắc vàng nhẹ từ hệ rèm phản chiếu qua lớp kính, lan tỏa một ánh sáng ấm áp, khiến ngôi nhà dù mang phong cách tối giản nhưng vẫn đầy cảm giác thân thiện và sang trọng như một không gian nghỉ dưỡng.
Tầng một gây ấn tượng đặc biệt với mảng đá ốp marble nâu vân tự nhiên, vân đá loang mềm mại ôm lấy cửa chính, tạo cảm giác vững chãi, bề thế nhưng không nặng nề. Sự kết hợp giữa đá nâu và màu trắng tạo nên sự chuyển đổi màu sắc tinh tế, dẫn mắt người nhìn từ nền móng lên các tầng trên một cách dễ chịu. Hệ lan can sắt mỹ thuật màu đen ở tầng 2 và tum được thiết kế họa tiết nhẹ nhàng, vừa kín đáo vừa duyên dáng, tạo điểm nhấn tinh tế mà không làm rối bố cục tổng thể.

Đặc biệt, những bồn cây xanh được bố trí trải dài theo viền ban công và trên tầng tum như những dải xanh mềm mại quấn quanh các cạnh vuông vức của ngôi nhà. Màu xanh nổi bật trên nền trắng khiến công trình trở nên sinh động, mang lại hơi thở thiên nhiên và giúp giảm bớt sự thô cứng của các mảng khối hiện đại. Những cây dáng thẳng, nhỏ nhắn được chọn lọc đặt trong các bồn cây vuông vức còn giúp mặt tiền tăng phần chiều cao và sự thanh lịch.
Phía trên cùng, hệ mái bằng hiện đại kết hợp trần lam gỗ chạy ngang tạo nên một lớp bóng đổ mềm mại, vừa trang trí vừa che nắng hiệu quả. Chi tiết lam gỗ với sắc nâu ấm nổi bật trên nền trắng và đen, khiến tổng thể mặt tiền hài hòa giữa sự ấm áp và hiện đại. Các đèn downlight âm trần bố trí đều dưới mái và ban công tạo nên hiệu ứng ánh sáng lung linh khi về đêm, tôn lên vẻ đẹp từng chi tiết của ngôi nhà.
Tất cả những đường nét, màu sắc và vật liệu ấy hòa quyện với nhau tạo nên một mặt tiền đầy tính thẩm mỹ, vừa mạnh mẽ, sang trọng, vừa mềm mại nhờ sự hiện diện của thiên nhiên – một mẫu nhà hiện đại mang vẻ đẹp bền vững theo thời gian.
2. Công năng sử dụng
2.1. Tầng 1
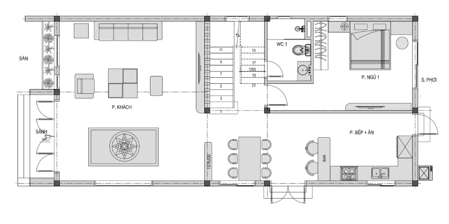
+ Tầng 1: Phòng khách + Phòng Bếp, ăn + Phòng ngủ + WC
.png?958)
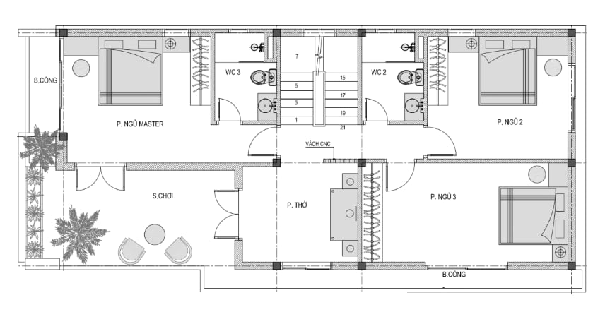
2.2. Tầng 2
+ Tầng 2: Phòng thờ + Phòng ngủ Master + 2 Phòng ngủ thường + WC
.png?931)
2.3. Tầng 3
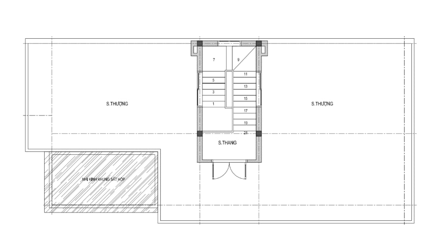
+ Tầng tum: Sân thượng
.png?965)
