Khám phá mẫu thiết kế nhà 3 tầng 1 tum đầy ấn tượng của chủ đầu tư anh Thọ tại Hà Nội
1. Phối cảnh 3D mặt tiền
Chủ đầu tư: Anh Thọ
- Địa điểm xây dựng: Đông Anh, Hà Nội
- Công năng sử dụng:
+ Tầng 1: Phòng khách + Bếp ăn + WC
+ Tầng 2: 2 Phòng ngủ + WC
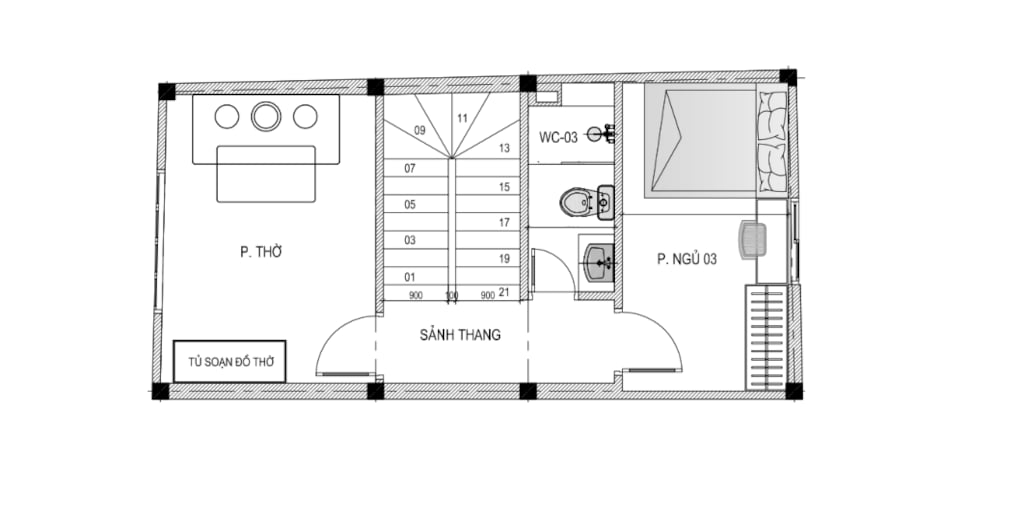
+ Tầng 3: Phòng thờ + phòng ngủ + WC
+ Tầng tum: Sân thượng + Sân phơi

Nhà được thiết kế nổi bật ấn tượng với phong cách hiện đại, trẻ trung, năng động. Không gian được thiết kế gần gũi với thiên nhiên với phần ban công trồng cây xanh, hoa,… tạo lá phổi cho căn nhà của bạn. Hay một khu vườn nhỏ trên tầng tum để thư giãn tổ chức BBQ cho cả gia đình. Tầng 1 được ốp gạch màu tối rất sang trọng. Trong khi tầng 2 và 3 lựa chọn sơn có sự tương đồng về tone màu nên khi nhìn vào người nhìn sẽ không có cảm giác bị mỏi hay chóe mắt. Mảng tường tầng 2 cũng rất thu hút với đường kẻ chỉ xung quanh rất nền nã, thanh lịch.
Một trong những ưu điểm lớn của mẫu nhà phố 3 tầng 1 tum chính là hệ thống cửa kính khung nhôm cao cấp. Nhờ đó mà ánh sáng tự nhiên và gió trời được tận dụng tối đa, mang lại không gian sống thoáng đãng và tiết kiệm năng lượng. Những tấm kính lớn còn giúp mặt tiền ngôi nhà phố trở nên hiện đại, phản chiếu ánh sáng lung linh, tạo cảm giác rộng rãi hơn cho công trình vốn có diện tích mặt tiền hạn chế. Khi đó, mọi ngóc ngách trong ngôi nhà nên thông thoáng, mát mẻ hơn.

2. Công năng sử dụng
2.1. Tầng 1
+ Tầng 1: Phòng khách + Bếp ăn + WC
.png?403)
2.2. Tầng 2
+ Tầng 2: 2 Phòng ngủ + WC
.png?543)
2.3. Tầng 3
+ Tầng 3: Phòng thờ + phòng ngủ + WC
.png?334)
2.4. Tầng 4
+ Tầng tum: Sân thượng + Sân phơi
.png?377)
