Khám phá nhà phố 2 tầng 1 tum hiện đại, tiện nghi, tinh tế - Chủ đầu tư Anh Thùy, Hải Phòng
Nhà phố hiện đại không chỉ đẹp về mặt thẩm mỹ mà còn rất tiện nghi, tạo ra một không gian sống thoải mái và phù hợp với nhu cầu của gia đình trong cuộc sống đô thị. Sự kết hợp giữa kiến trúc, không gian mở, nội thất hiện đại và các tiện ích thông minh sẽ giúp gia chủ tận hưởng một cuộc sống hiện đại và tiện nghi nhất.
1. Phối cảnh 3D mặt tiền
- Chủ đầu tư: Anh Thùy
- Kích Thước: 6mx17.040m
- Địa điểm xây dựng: Hải Phòng
- Công năng sử dụng:
+ Tầng 1: Phòng khách + Bếp ăn + phòng ngủ khép kín
+ Tầng 2: 1 Phòng ngủ kép kín + 2 Phòng ngủ + WC
+ Tầng tum: Phòng Thờ + Sân phơi + Sân Thượng

Ngôi nhà của gia đình anh Thùy điển hình cho sự kết hợp giữa phong cách tinh tế và hiện đại. Ngôi nhà sử dụng các gam màu trung tính giúp tạo cảm giác mở rộng không gian. Bố trí nhiều cửa sổ lớn để tối đa hóa ánh sáng tự nhiên. Cấu trúc của nhà được thiết kế một cách tinh tế, với các đường nét rõ ràng và không gian thoáng đãng. Khác biệt với phong cách truyền thống, thiết kế mặt tiền của ngôi nhà này nổi bật với những đường cong mềm mại, tạo ra một vẻ đẹp duyên dáng và quyến rũ. Kiến trúc đường cong mềm mại của ban công, bồn cây,… tạo sự đồng bộ và ấn tượng cho ngoại thất ngôi nhà. Bên trong nội thất mang phong cách hiện đai và tối giản và thoáng mát theo mong muốn của gia chủ.

Ban công ở tầng 2 và tầng tum được bố trí nhiều cây xanh, có thể là chậu cây cảnh nhỏ hoặc cây leo phủ mặt lan can. Hệ thống cây xanh này giúp mang lại không khí trong lành, đồng thời tạo điểm nhấn thiên nhiên cho không gian bên ngoài ngôi nhà. Ban công tầng 3 được thiết kế thêm các ghế ngồi thư giãn, bàn trà nhỏ, tạo không gian lý tưởng để gia đình hoặc khách mời có thể tận hưởng không khí trong lành từ cây xanh xung quanh.
2. Công năng sử dụng
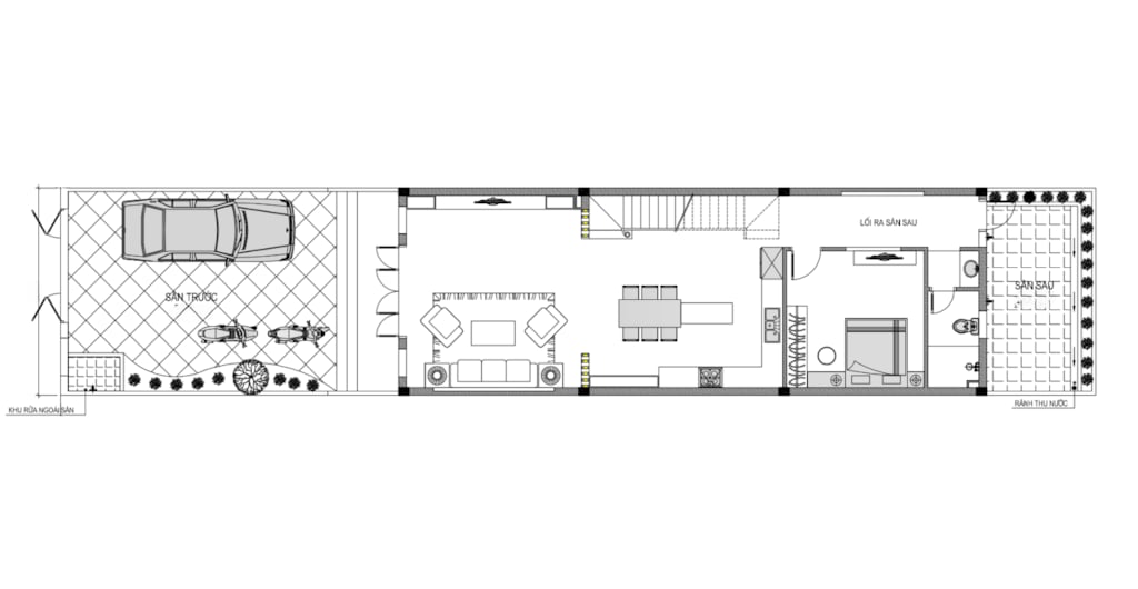
2.1 Mặt bằng tầng 1
+ Tầng 1: Phòng khách + Bếp ăn + phòng ngủ khép kín

.png?771)
2.2 Mặt bằng tầng 2
+ Tầng 2: 1 Phòng ngủ kép kín + 2 Phòng ngủ + WC
.png?829)
2.3 Mặt bằng tầng tum
+ Tầng tum: Phòng Thờ + Sân phơi + Sân Thượng

Liên hệ với chúng tôi ngay hôm nay để bắt đầu thiết kế ngôi nhà mơ ước của bạn – nơi phong cách và tiện nghi hòa quyện hoàn hảo!
