Không thể rời mắt trước mẫu biệt thự tân cổ điển sang trọng và đẳng cấp - Anh Hoàng Anh, Thanh Hóa
Biệt thự phố được thiết kế theo phong cách kiến trúc tân cổ điển mang đến vẻ đẹp nguy nga, tráng lệ hòa vào đó là những vẻ đẹp cổ kính và thanh lịch tạo nên một không gian sống, thư giãn lý tưởng cho gia đình của gia chủ. Biệt thự phố tân cổ điển tọa lạc tại Thanh Hóa của anh Hoàng Anh hội tụ đầy đủ các ưu điểm của kiến trúc cổ điển mang lại cho gia chủ nét đẹp thẩm mĩ và sự đẳng cấp tuyệt vời.
1. Chiêm ngưỡng phối cảnh 3D mặt tiền
Chủ đầu tư: Anh Hoàng Anh
Địa điểm xây dựng: Thanh Hóa
Tên công trình: Biệt thự phố tân cổ điển 3 tầng

Biệt thự khoác lên trên mình màu trắng thanh lịch cùng với màu vàng sang trọng tạo nên nét đẹp đẳng cấp mà chỉ có kiến trúc cổ điểm mới đem lại.
Đặc biệt, hệ ban công được các kiến trúc sư thiết kế, bố trí kiêm luôn vai trò tạo hình khối cho tổng thể lâu đài.
Hệ thống cửa sổ và cửa ban công chiếm tỉ lệ lớn trên mặt đứng và được kết thúc bằng cuốn vòm. Hệ ban công rộng giúp cho không gian sống trở nên thoáng đãng, chiếm chọn tầm nhìn ra không gian bao la của sân vườn. Lựa chọn cửa sổ kính lớn giúp ngôi nhà luôn có được ánh sáng tự nhiên vào ban ngày và huyền ảo, lộng lẫy về đêm.
2. Bố trí công năng các tầng
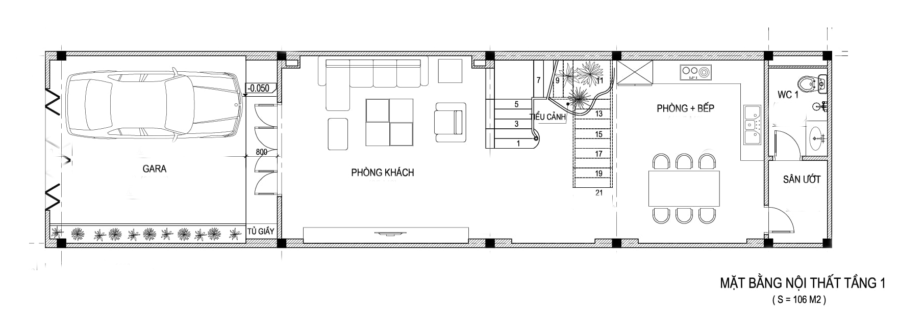
2.1. Bố trí công năng tầng 1
Gara + Phòng khách + Phòng bếp + 1 WC +| Sân ướt

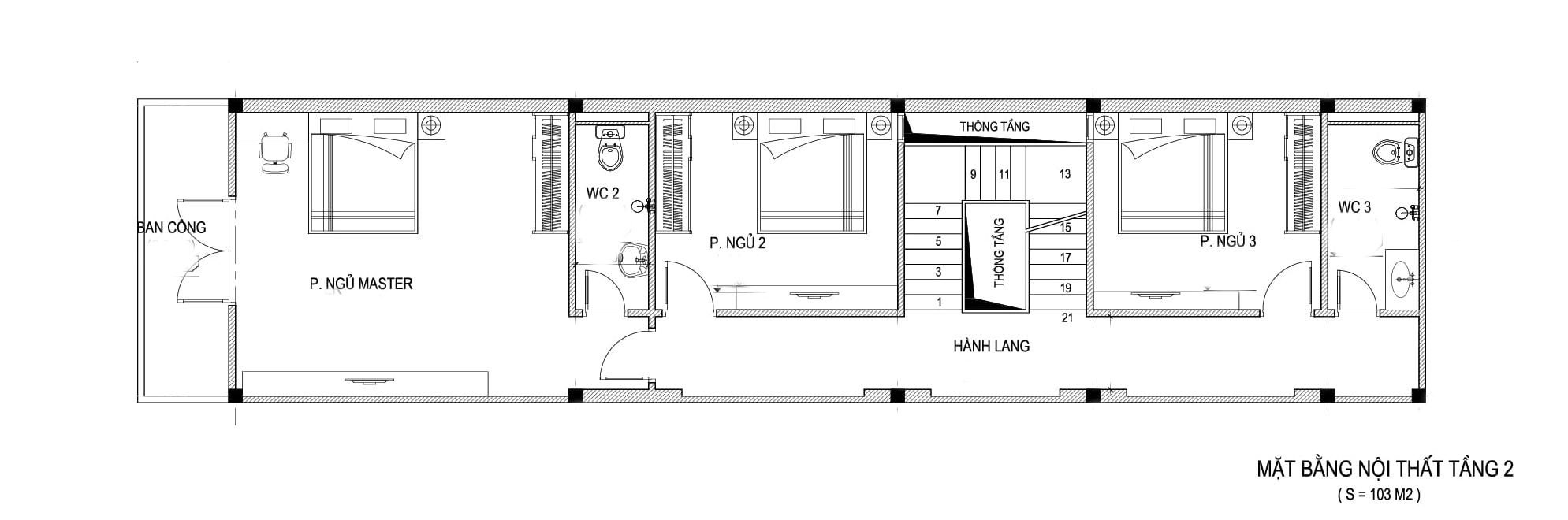
2.2. Bố trí công năng tầng 2
1 Phòng ngủ Master + 2 phòng ngủ thường + 1 WC

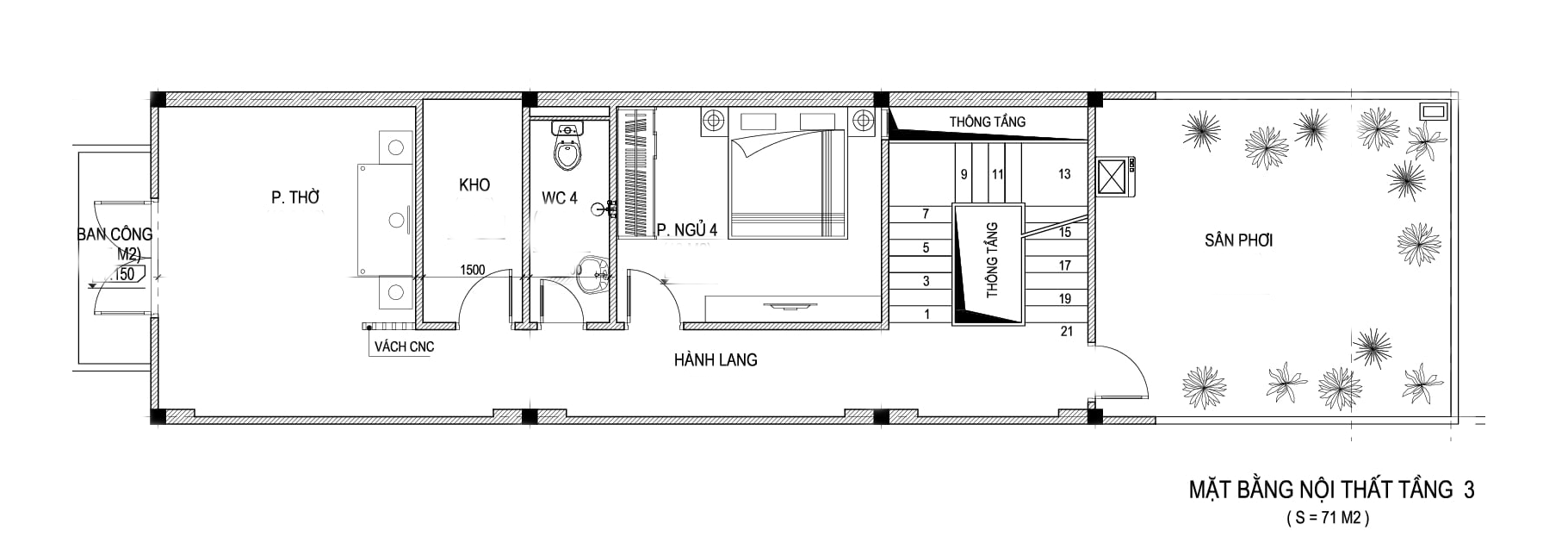
2.3. Bố trí công năng tầng 3
Phòng thờ + Phòng kho + 1 Phòng ngủ + 1 WC + Sân phơi

Quý vị hãy liên hệ ngay với chúng tôi để sở hữu cho mình những bản vẽ thiết kế lâu đài, biệt thự đẹp cùng dịch vụ xây nhà trọn gói chất lượng.
