Không thể rời mắt trước mẫu nhà phố 3 tầng đẹp mắt - Chủ đầu tư: Anh Đồi, Bắc Giang
1. Phối cảnh 3D mặt tiền
- Chủ đầu tư: Anh Đồi
- Địa điểm xây dựng: Bắc Giang
- Công năng sử dụng:
+ Tầng 1: Phòng khách + Phòng bếp + 1 WC
+ Tầng 2: 2 Phòng ngủ khép kín
+ Tầng 3: Phòng thờ + 1 Phòng ngủ + 1 WC

Ngôi nhà được KTS Việt Home thiết kế nổi bật với đường nét hình khối đều vuông vắn, mạch lạc rõ nét không sử dụng các họa tiết rườm rà, cầu kỳ mang đặc trưng của phong cách hiện đại, đem lại sự sang trọng cho ngôi nhà. Cách phối màu sắc tinh tế cùng sự kết hợp của các vật liệu trang trí mới giúp mang lại hiệu quả thẩm mỹ cao tạo nên một tổng thể đẹp cuốn hút mọi ánh nhìn.
Thiết kế nhà phố với không gian mở, tràn ngập không gian xanh luôn được các KTS chú trọng. Ở đây các KTS đã thiết kế các bồn hoa cây cảnh tại hệ thống ban công tầng 2 và tầng 3 để các thành viên trong gia đình có thể thư giãn, cùng nhau chăm sóc và ngắm nhìn vẻ đẹp của thiên nhiên.
Thiết kế với hình khối đơn giản, màu sắc mộc mạc, tận dụng ánh sáng, gió tự nhiên và không gian một cách tối đa. Các KTS đã thiết kế hài hòa các yếu tố trên mang tới một không gian sống hiện đại, thoải mái.

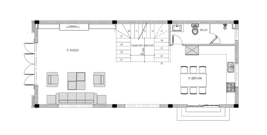
2. Công năng sử dụng
2.1. Tầng 1
Phòng khách + Phòng bếp + 1 WC

.png?433)
2.2. Tầng 2
2 Phòng ngủ khép kín
.png?508)
2.3. Tầng 3
Phòng thờ + 1 Phòng ngủ + 1 WC
.png?266)
Nếu các bác thích mẫu nhà phố như bên em vừa giới thiệu thì hãy nhắn tin hoặc gọi điện thoại trực tiếp cho Việt Home để được tư vấn nhé!
