Mãn nhãn với mẫu biệt thự vườn hiện đại - Anh Cương, Gia Lâm, Hà Nội
Mẫu nhà được Việt Home thiết kế tại Gia Lâm, Hà Nội gồm 2 tầng và 1 tum được thiết kế hiện đại trẻ trung và năng động. Từ kiến trúc ngoại thất đến nội thất ngôi biệt thự đều toát lên vẻ đẹp sang trọng, phóng khoáng và trẻ trung, thể hiện đậm nét tính cách chủ đầu tư.
Cùng chiêm ngưỡng hình ảnh và bố trí các tầng trong bài viết hôm nay.
1. Phối cảnh 3D mặt tiền
- Chủ đầu tư: Anh Cương
- Địa điểm xây dựng: Gia Lâm, Hà Nội
- Tên công trình: Biệt thự 3 tầng mái Nhật hiện đại

Mẫu biệt thự 3 tầng với diện tích 92 m2 tại Hà Nội, được các kiến trúc sư thiết kế với 2 tone là màu trắng là chủ đạo. Màu trắng tạo cảm giác sạch sẽ và rất tinh tế và mát mẻ cho người nhìn.

Không chỉ tạo dấu ấn bởi sự kết hợp màu sắc, mẫu biệt thự mang phong cách kiến trúc hiện đại còn tạo dấu ấn bởi hệ thống mái Nhật đồ sộ. Phần mái không chỉ có chức năng che nắng, che mưa mà còn tô điểm cho ngôi biệt thự thêm ấn tượng.
2. Bố trí công năng các tầng
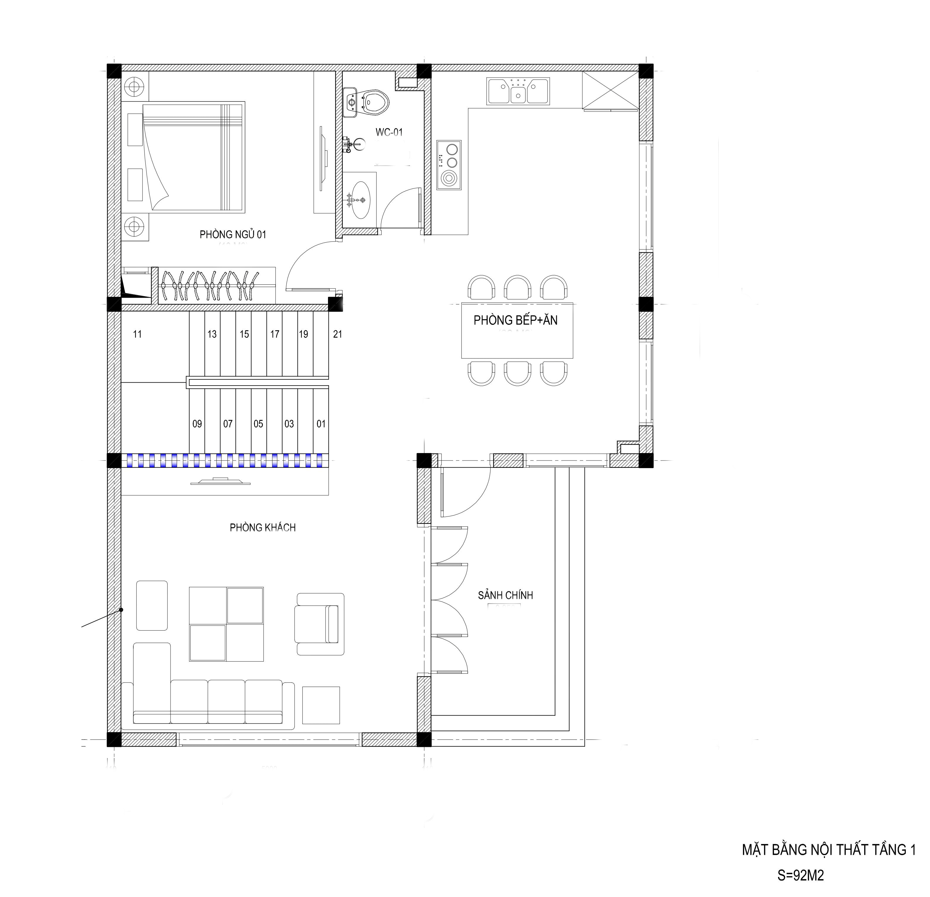
2.1. Bố trí công năng tầng 1
Phòng khách + Bếp + 1 Phòng ngủ + 1WC

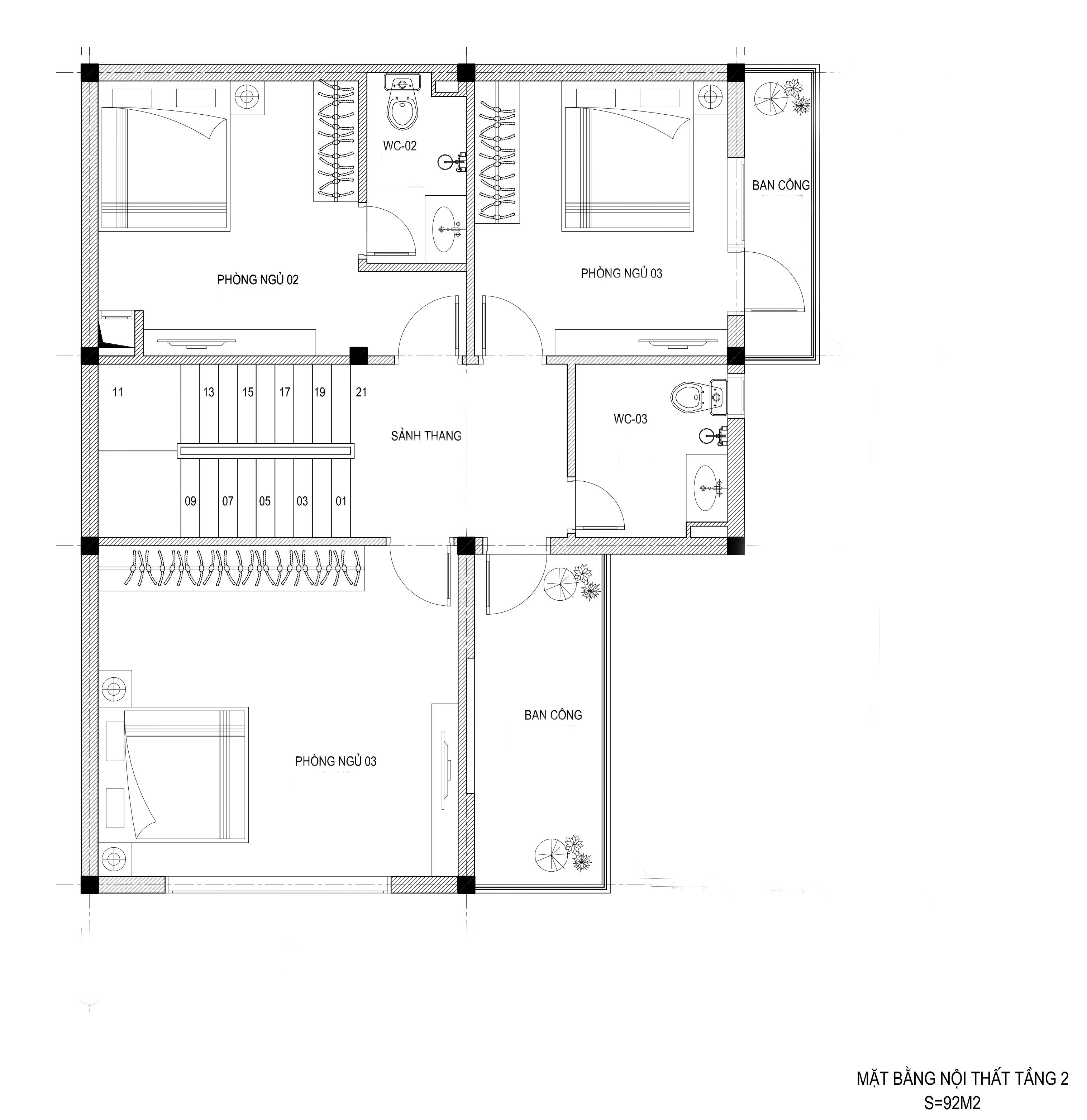
2.2. Bố trí công năng tầng 2
1 Phòng ngủ khép kín + 2 Phòng ngủ thường + 1 WC

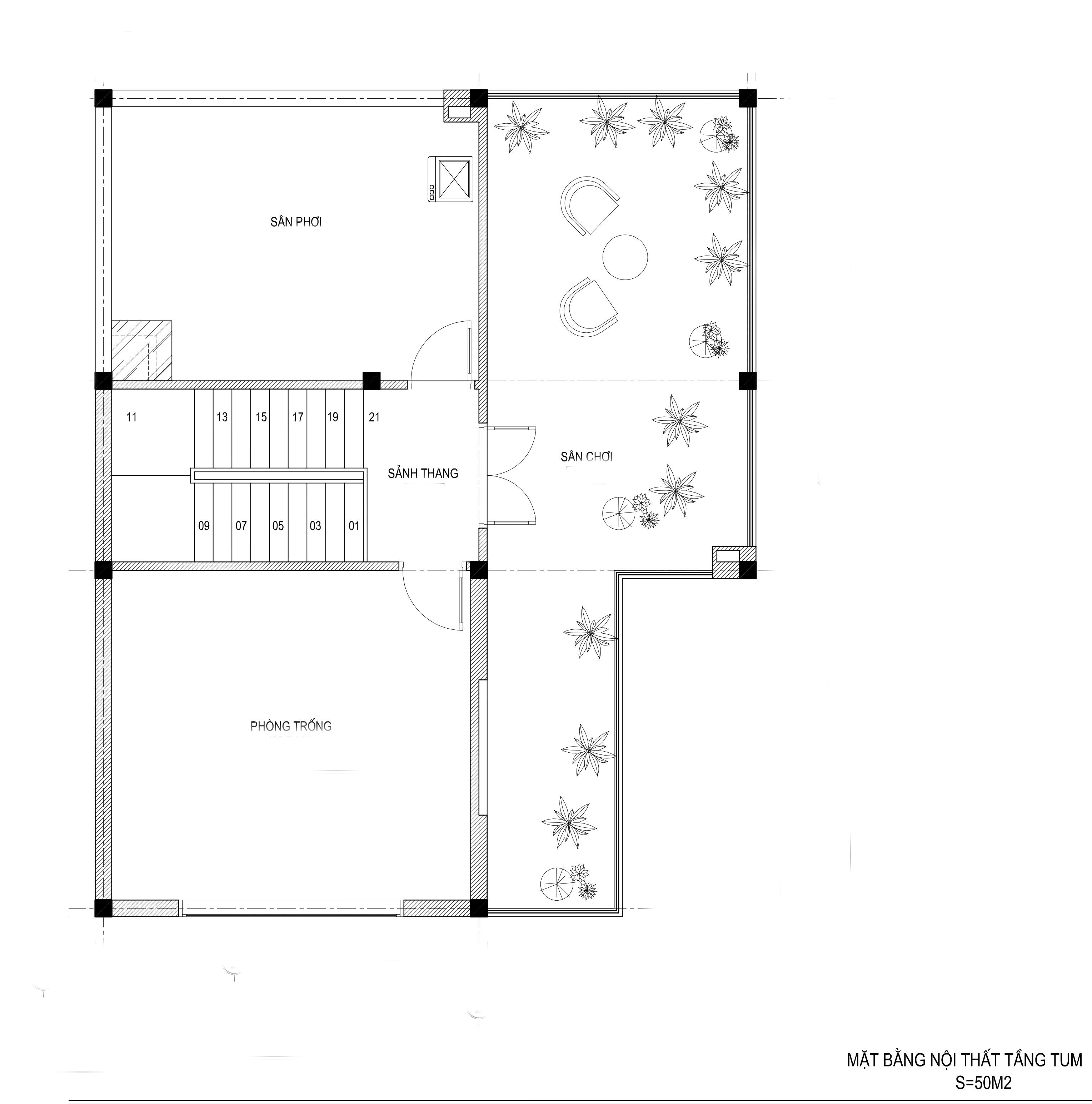
2.3. Bố trí công năng tầng tum
Phòng trống + Sân chơi

3. Hình ảnh thi công thực tế
3.1. Hình ảnh thi công móng




3.2. Hình ảnh thi công tầng 2





3.3. Hình ảnh thi công sắt móng sàn tầng 3


3.3. Hình ảnh thi công sắt móng sàn mái





Bạn đang cần tư vấn xây thiết kế và thi công nhà ở? Vui lòng liên hệ hotline: 0912 30 11 85 để được kiến trúc sư Việt Home tư vấn phương án phù hợp nhất.
