Mẫu biệt thự 2 tầng hiện đại - Chủ đầu tư: Anh Thắng, Hà Nội
Sở lưu mảnh đất khá rộng rãi, thay vì chọn một phong cách kiến trúc cầu kỳ và hoành tráng, anh Thắng và gia đình đã lựa chọn xây dựng tổ ấm của mình theo phong cách hiện đại, tối giản.
Tiếp nhận ý tưởng trên, kts Việt Home đã thiết kế cho gia đình mẫu nhà với vẻ đẹp tinh tế nhưng không kém phần sang trọng và đẳng cấp, mang đậm dấu ấn cá nhân.

1. Phối cảnh 3D mặt tiền
- Chủ đầu tư: Anh Thắng
- Địa điểm xây dựng: Phú Xuyên, Hà Nội
- Tên công trình: Biệt thự 2 tầng hiện đại mái bằng
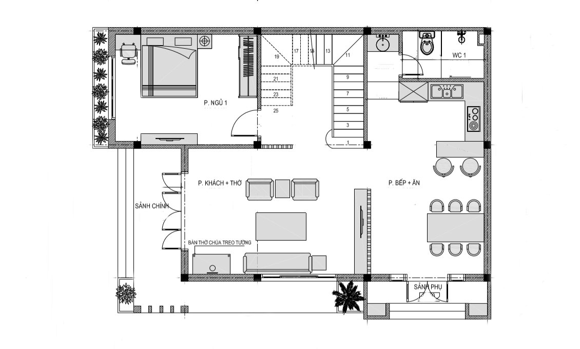
+ Tầng 1: Phòng khách và phòng thờ + Phòng bếp + 1 Phòng ngủ + 1 WC
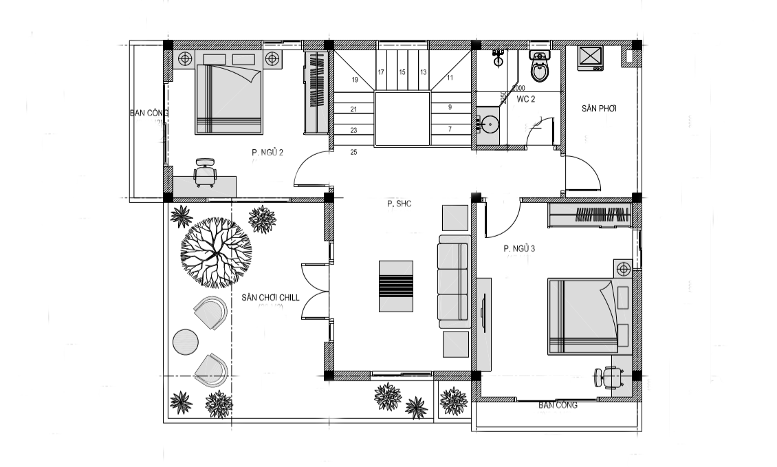
+ Tầng 2: Sân chơi + Phòng SHC + 2 Phòng ngủ +1 WC
Căn biệt thự được thiết kế vô cùng phá cách, mới mẻ và hiện đại. Nhìn tổng thể ngôi nhà, chúng ta có thể nhận thấy sự vững chắc, khỏe khoắn của ngôi nhà sừng sững trước gió mưa của thời tiết.

Sảnh chính của biệt thự được thiết kế đẹp mắt với bậc tam cấp dẫn lên từ phía sân trước. Tông màu trắng ghi trang nhã và tinh tế khiến mẫu biệt thự hiện lên đúng với tinh thần hiện đại và tinh giản, nhưng vẫn đủ sang trọng.
Căn biệt thự 2 tầng được thiết kế độc đáo với những mảng hình khối được bố trí hài hòa, có chiều sâu, không hề mang lại cảm giác khô cứng.
Với mẫu thiết kế biệt thự kính, không gian xung quanh được nâng tầm hiệu quả. Đặc biệt, vách kính còn giúp tạo ảo giác diện tích sàn thêm rộng rãi, thoáng đãng.
2. Hình ảnh bố trí công năng
2.1. Tầng 1

2.2. Tầng 2

3. Hình ảnh giám sát thi công




Có thể thấy, mẫu biệt thự hiện đại là hiện thân hoàn hảo cho một thiết kế mang dấu ấn của phong cách hiện đại với vẻ đẹp trang nhã và hợp thời. Nếu đang ấp ủ cho mình một ý tưởng, đừng ngần ngại liên lạc với chúng tôi.
