Mẫu Biệt Thự 2 Tầng Mái Nhật Tân Cổ Điển Sang Trọng - Chủ đầu tư: Anh Thuấn, Bắc Giang
1. Phối cảnh 3D mặt tiền
- Chủ đầu tư: Anh Thuấn
- Địa điểm xây dựng: Bắc Giang
- Công năng sử dụng:
Tầng 1: Phòng khách + Phòng thờ + 1 Phòng ngủ master + 1 Phòng ngủ thường + Phòng bếp + WC
Tầng 2: Phòng SHC + 1 Phòng ngủ master + 2 Phòng ngủ thường + WC

Mặt tiền ngôi nhà sử dụng gam trắng chủ đạo, kết hợp cùng hệ cửa gỗ và cửa kính khung nhôm cao cấp, tạo nên sự tương phản tinh tế và nổi bật. Cửa chính gỗ tự nhiên chạm khắc hoa văn tròn mang ý nghĩa phong thủy tốt lành, tượng trưng cho sự viên mãn và thịnh vượng.
Hệ cột trụ khỏe khoắn, các chi tiết phào chỉ nhẹ nhàng kết hợp cùng ban công uốn cong mềm mại tạo nên tổng thể kiến trúc thanh lịch, phù hợp với cả khu vực nông thôn lẫn đô thị hiện đại.
Ban công tầng 2 được thiết kế rộng rãi, lan can sắt mỹ thuật sơn tĩnh điện, vừa đảm bảo an toàn vừa tăng giá trị thẩm mỹ cho tổng thể công trình.

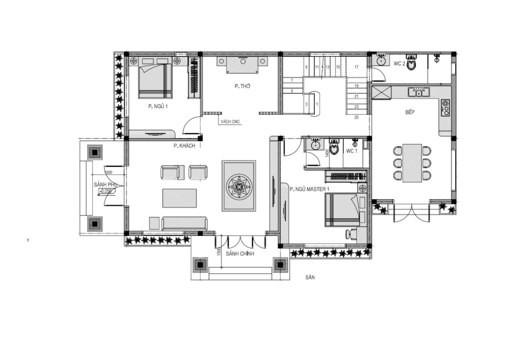
2. Hình ảnh bố trí công năng
2.1. Tầng 1
Phòng khách + Phòng thờ + 1 Phòng ngủ master + 1 Phòng ngủ thường + Phòng bếp + WC
.png?701)
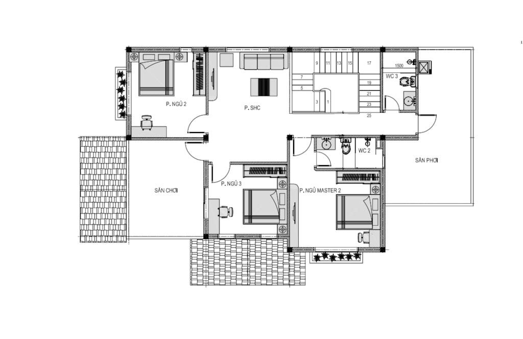
2.2. Tầng 2
Phòng SHC + 1 Phòng ngủ master + 2 Phòng ngủ thường + WC
.png?587)
Mẫu biệt thự 2 tầng mái Nhật tân cổ điển do Việt Home thiết kế không chỉ đáp ứng nhu cầu thẩm mỹ mà còn đảm bảo công năng sử dụng, độ bền và giá trị lâu dài. Đây là lựa chọn lý tưởng cho những gia chủ yêu thích sự sang trọng, tinh tế nhưng vẫn gần gũi và phù hợp với điều kiện sống tại Việt Nam.
Liên hệ Việt Home ngay hôm nay để được tư vấn phương án thiết kế biệt thự đẹp – tiết kiệm – chuẩn phong thủy cho gia đình bạn!
