Mẫu biệt thự vườn mái thái 1 tầng thu hút mọi ánh nhìn - Anh Tuấn, Thái Nguyên
Mẫu nhà vườn đang được nhiều gia chủ tại khu vực nông thôn và ngoại thành yêu thích lựa chọn bởi vẻ đẹp hài hòa với thiên nhiên. Trong bài viết hôm nay, Việt Home trân trọng giới thiệu mẫu nhà vườn mái thái đang được nhiều bạn đọc quan tâm. Mẫu nhà anh Tuấn tại Đồng Hỷ, Thái Nguyên.
1, Phối cảnh 3D mặt tiền
- Chủ đầu tư: Anh Tuấn
- Địa điểm xây dựng: Đồng Hỷ - Thái Nguyên
- Tên công trình: Nhà vườn 1 tầng mái thái

Mẫu nhà cấp 4 với mặt tiền được thiết kế toát lên vẻ đẹp sang trọng và lịch lãm. Hai cột trụ khỏe khoắn hai bên cùng với những bậc tam cấp tạo nên sự bề thế cho công trình.
Hệ thống mái thái với độ dốc cao, độ đua vừa phải tạo cho mặt tiền độ thoáng, rộng. Phần chân tường được ốp gạch đảm bảo sự bền vững của công trình theo thời gian vừa tăng tính thẩm mỹ.

Biệt thự 1 tầng đẹp với gam màu trắng trang nhã, tinh khôi kết hợp với màu xanh tinh tế của biệt thự mái Thái tạo nên một vẻ đẹp thật lịch lãm. Kết hợp với đỏ là hệ thống cửa chính, cửa sổ bằng kính làm cho ngôi nhà bừng sáng và đầy sức sống.

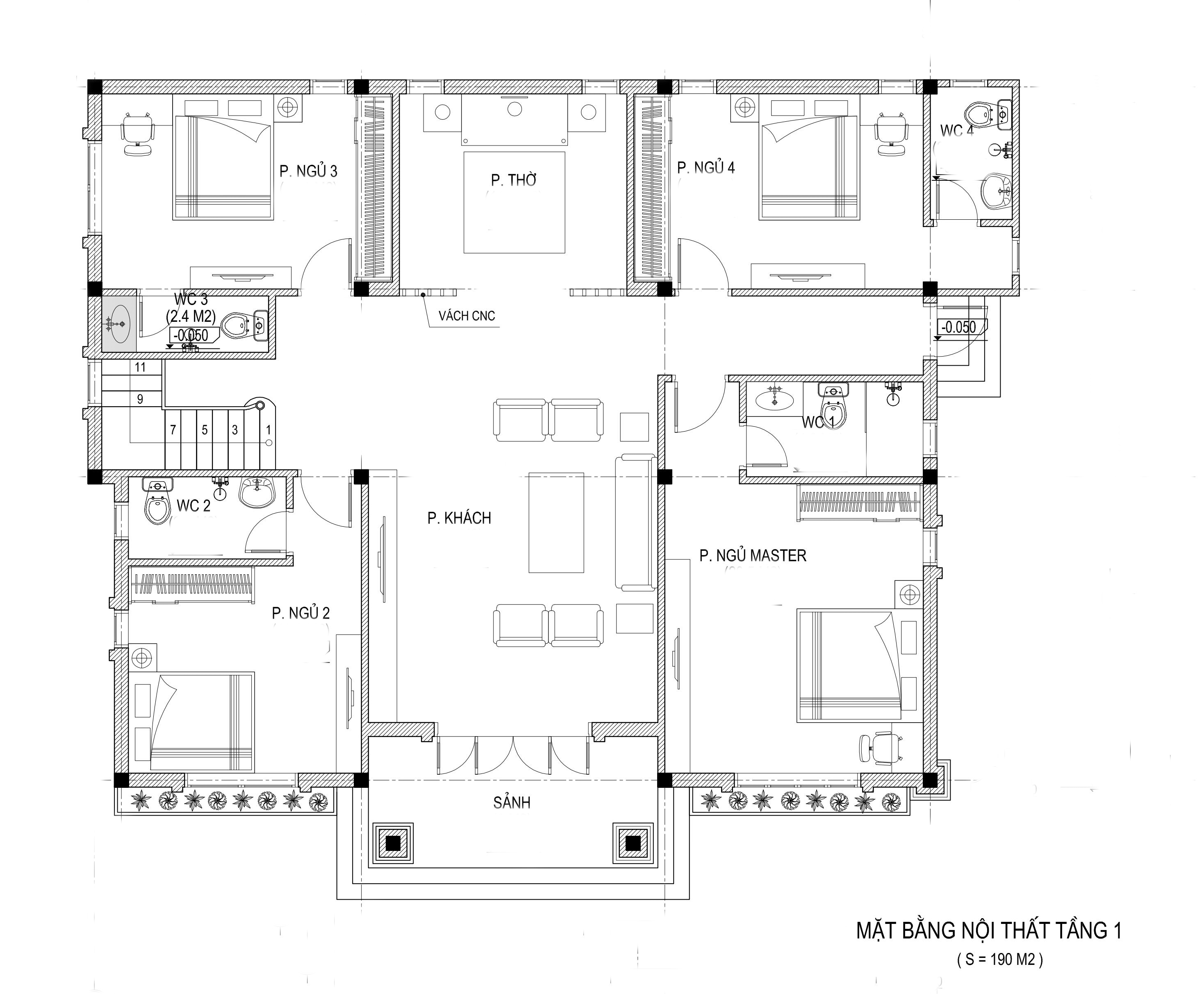
2. Bố trí công năng sử dụng
Phòng khách + Phòng thờ + 3 Phòng ngủ khép kín + 1 Phòng ngủ thường + 1 WC


Mỗi căn nhà khi xây dựng, bố cục sắp xếp các phòng, hướng phục thuộc vào tuổi tác các thành viên trong gia đình cũng như hướng đất. Việc bố trí công năng phù hợp vô cùng quan trọng khi sinh hoạt và trong phong thủy làm ăn, sức khỏe hay hạnh phúc của gia chủ. Bởi vậy, nếu bạn đang có dự định xây nhà, đừng làm theo bản vẽ có sẵn trên mạng mà hãy liên hệ với Việt Home để được tư vấn bố trí và phong thủy sao cho phù hợp nhất.
