Mẫu nhà 1 tầng mái nhật đẹp mắt tại Thái Bình không thể bỏ qua - Chủ đầu tư: Anh Cảnh
1. Phối cảnh 3D
- Chủ đầu tư: Anh Cảnh
- Địa điểm xây dựng: Thái Bình
- Tên công trình: Nhà 1 tầng mái Nhật
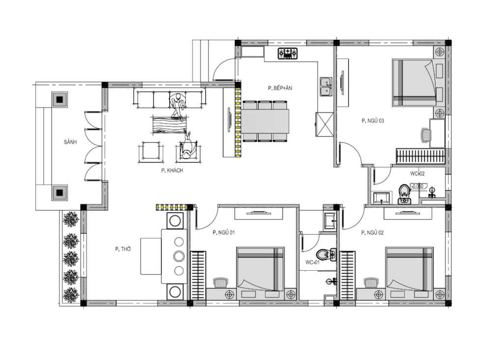
- Công năng sử dụng: Phòng khách + Phòng thờ + Bếp + 1 Phòng ngủ khép kín + 2 Phòng ngủ thường + 1 WC

Nhìn tổng thể, mẫu nhà vườn 1 tầng mái Nhật gây ấn tượng bởi hình khối cân xứng, các chi tiết phào chỉ nổi bật trên nền tường trắng của ngôi nhà và có điểm nhấn với màu ghi đen của sơn giả đá. Ở vị trí chân tường được ốp đá thẻ lịch lãm, sang trọng.
Cột trụ ở sảnh chính và sảnh phụ được thiết kế vuông vắn, chắc chắn, nâng đỡ hệ mái sảnh bên trên. Cột được trang trí bằng những đường kẻ tinh tế. Với thiết kế bậc tam cấp đã giúp đôn cao được phần chân công trình, giúp hạn chế tình trạng khi mặt đường được đôn lên cao, ngôi nhà sẽ không bị quá thấp.

Màu trắng là màu sắc chủ đạo được các kiến trúc sư Việt Home đánh giá cao bởi khả năng truyền tải những thông điệp tuyệt vời. Màu trắng trong kiến trúc xây dựng tượng trưng cho sự đơn giản và sự khởi đầu mới. Tông màu trắng nhẹ nhàng, trong trẻo luôn mang đến cho người nhìn cảm giác thoải mái, an toàn. Đây là điều mà bất cứ một gia chủ nào đều mong muốn có trong ngôi nhà của mình.
2. Bố trí công năng sử dụng
Phòng khách + Phòng thờ + Bếp + 1 Phòng ngủ khép kín + 2 Phòng ngủ thường + 1 WC
.png?570)
Để lại thông tin liên hệ ngay để được tư vấn miễn phí
