Mẫu nhà 2 tầng hiện đại đẹp tại Hà Nội - Chủ đầu tư: Anh Viễn
1. Phối cảnh 3D mặt tiền
Chủ đầu tư: Anh Viễn
- Địa điểm xây dựng: Hà Nội
- Công năng sử dụng:
+ Tầng 1: Phòng khách , Phòng Bếp + Ăn, 1 Phòng ngủ , 1 WC.
+ Tầng 2: Phòng thờ + 1 Phòng ngủ khép kín + 2 phòng ngủ + WC

Mặt tiền ngôi nhà nổi bật với phong cách kiến trúc hiện đại, sử dụng các hình khối vuông vức và đường nét dứt khoát tạo nên diện mạo trẻ trung, sang trọng.
Tông màu trắng – xám kết hợp nâu gỗ được phối hài hòa, vừa tối giản vừa cuốn hút. Hệ cửa nhôm kính khổ lớn giúp không gian bên trong luôn tràn ngập ánh sáng tự nhiên, đồng thời tăng tính kết nối với cảnh quan bên ngoài.
Ban công tầng 2 được thiết kế rộng rãi, điểm tô bằng những dải cây xanh tạo cảm giác mềm mại và đầy sức sống cho tổng thể mặt tiền. Tất cả các yếu tố được kết hợp khéo léo, mang đến một mặt tiền hiện đại, hài hòa và đầy cá tính.
2. Công năng sử dụng
2.1. Tầng 1
Phòng khách , Phòng Bếp + Ăn, 1 Phòng ngủ , 1 WC.
.png?304)
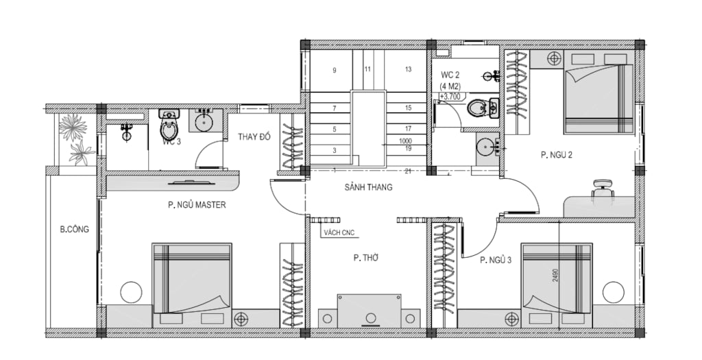
2.2. Tầng 2
Phòng thờ + 1 Phòng ngủ khép kín + 2 phòng ngủ + WC
.png?824)
