Mẫu Nhà 2 Tầng Hiện Đại Kết Hợp Kinh Doanh - Xu Hướng Thiết Kế 2026 - CĐT Mr Hải _ Bắc Ninh
1. Phối cảnh 3D mặt tiền
Chủ đầu tư: Anh Hải
Địa điểm xây dựng: Bắc Ninh
Công năng sử dụng:
+ Tầng 1: Gara + Phòng khách + 1 Phòng ngủ master + 1 Phòng ngủ thường + wc + Để xe cho thuê
+ Tầng 2: 7 Phòng khép kín cho thuê

Mặt tiền của ngôi nhà gây ấn tượng mạnh ngay từ ánh nhìn đầu tiên nhờ sự kết hợp hài hòa giữa đường nét kiến trúc hiện đại và cảm giác mềm mại, gần gũi thiên nhiên. Tổng thể được tạo hình với những khối vuông vức nhưng được bo cong tinh tế ở các góc, giúp công trình trở nên thanh thoát và khác biệt so với những thiết kế nhà phố truyền thống. Gam màu trắng chủ đạo mang lại vẻ đẹp tinh khôi, sang trọng, đồng thời làm nổi bật các mảng ốp gỗ ấm áp ở khu vực ban công và tường mặt tiền, tạo nên sự tương phản đầy cuốn hút. Hệ cửa kính lớn được bố trí khéo léo không chỉ giúp mở rộng tầm nhìn mà còn tận dụng tối đa ánh sáng tự nhiên, khiến không gian bên trong luôn tràn ngập sự thông thoáng.
Ban công tầng hai được thiết kế rộng rãi, phủ đầy cây xanh và hoa, như một khu vườn treo nhỏ mang lại sức sống tươi mới và cảm giác thư giãn. Phía trên, sân thượng tiếp tục được bao phủ bởi thảm thực vật xanh mát, góp phần làm dịu đi cái nắng và tăng tính sinh thái cho ngôi nhà. Vào buổi tối, hệ đèn âm trần được lắp đặt tinh tế dưới các khối đua tạo nên hiệu ứng ánh sáng ấm áp, tôn lên từng đường nét kiến trúc và khiến ngôi nhà trở nên nổi bật, lung linh giữa không gian xung quanh. Tất cả những yếu tố này hòa quyện lại, tạo nên một mặt tiền không chỉ đẹp về thẩm mỹ mà còn thể hiện rõ phong cách sống hiện đại, tinh tế và gần gũi với thiên nhiên.

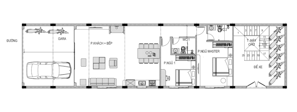
2. Hình ảnh bố trí công năng
2.1. Tầng 1
+ Tầng 1: Gara + Phòng khách + 1 Phòng ngủ master + 1 Phòng ngủ thường + wc + Để xe cho thuê
.png?436)
2.2. Tầng 2
+ Tầng 2: 7 Phòng khép kín cho thuê
.png?513)
