Mẫu Nhà 2 Tầng Hiện Đại Mái Nhật Đẹp - Giải Pháp Nhà Ở Lý Tưởng Cho Gia Đình Việt - CĐT: Mr Bính - Hưng Yên
1. Phối cảnh 3D mặt tiền
- Chủ đầu tư: Anh Bính
- Địa điểm xây dựng: Hưng Yên
- Tên công trình: Nhà mái Nhật 2 tầng
- Công năng sử dụng:
+ Tầng 1: Phòng khách + Bếp ăn+ Phòng ngủ + 1 WC
+ Tầng 2: PhòngSHC+ 2 Phòng ngủ + WC + Sân phơi

Mặt tiền ngôi nhà được thiết kế với sự chăm chút tỉ mỉ trong từng đường nét, thể hiện rõ tinh thần kiến trúc hiện đại, sang trọng nhưng vẫn rất hài hòa và tinh tế. Tổng thể công trình nổi bật với bố cục hình khối vuông vắn, khỏe khoắn, được sắp xếp khéo léo theo chiều cao và chiều ngang để tạo cảm giác cân đối, bề thế mà không hề nặng nề. Gam màu trắng sáng chủ đạo bao phủ toàn bộ mặt tiền giúp ngôi nhà trở nên thanh thoát, nổi bật giữa không gian xung quanh, đồng thời kết hợp hài hòa với các mảng tường ốp đá xám và những chi tiết trang trí tinh giản, tạo chiều sâu thị giác và tăng tính thẩm mỹ. Hệ mái Nhật màu sẫm với độ dốc nhẹ được thiết kế cân xứng, không chỉ mang lại vẻ đẹp cao ráo, sang trọng cho tổng thể công trình mà còn giúp thoát nước nhanh, chống nóng hiệu quả, đảm bảo sự bền vững lâu dài trước tác động của thời tiết.

Khu vực ban công tầng hai là điểm nhấn quan trọng của mặt tiền, được thiết kế rộng rãi, thông thoáng, sử dụng lan can kính cường lực trong suốt kết hợp khung kim loại chắc chắn, vừa đảm bảo an toàn vừa tạo cảm giác mở, giúp kết nối không gian trong nhà với cảnh quan bên ngoài. Bộ cửa kính lớn sát trần với khung nhôm tối màu được bố trí khoa học, giúp ánh sáng tự nhiên tràn ngập không gian nội thất, đồng thời làm tăng vẻ hiện đại, sang trọng cho mặt tiền. Hệ đèn chiếu sáng ngoại thất được lắp đặt tinh tế tại các mảng tường và ban công, khi về đêm tạo nên hiệu ứng ánh sáng mềm mại, tôn lên các đường nét kiến trúc và mang lại cảm giác ấm cúng, đẳng cấp. Phía dưới, cổng và hàng rào được thiết kế đồng bộ với kiến trúc chung, sử dụng những thanh kim loại thẳng đứng kết hợp mảng tường đặc, vừa đảm bảo tính riêng tư, an ninh vừa góp phần hoàn thiện vẻ đẹp chỉnh chu, sang trọng cho toàn bộ mặt tiền ngôi nhà.
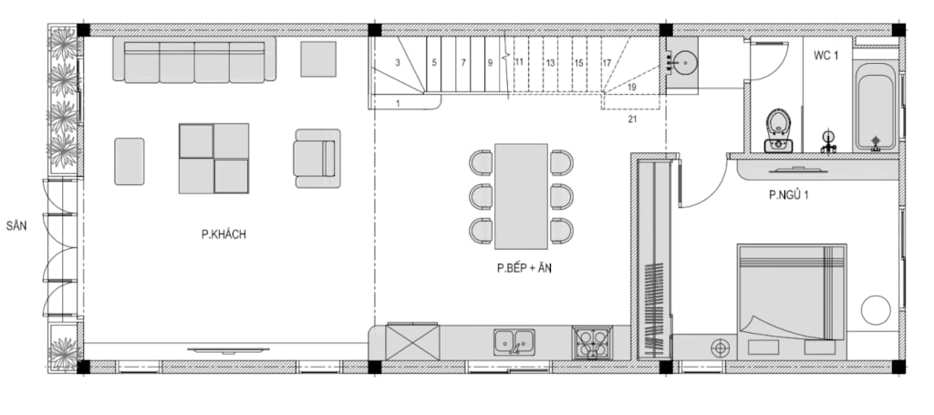
2. Hình ảnh bố trí công năng
2.1. Tầng 1
+ Tầng 1: Phòng khách + Bếp ăn+ Phòng ngủ + 1 WC
.png?397)
2.2. Tầng 2
+ Tầng 2: PhòngSHC+ 2 Phòng ngủ + WC + Sân phơi
.png?174)
