Mẫu nhà 2 tầng mái Nhật đẹp tại Ninh Bình - Chủ đầu tư: Anh Hưng
1. Phối cảnh 3D mặt tiền
- Chủ đầu tư: Anh Hưng
- Địa điểm xây dựng: Ninh Bình
- Tên công trình: Nhà 2 tầng mái nhật
- Công năng sử dụng:
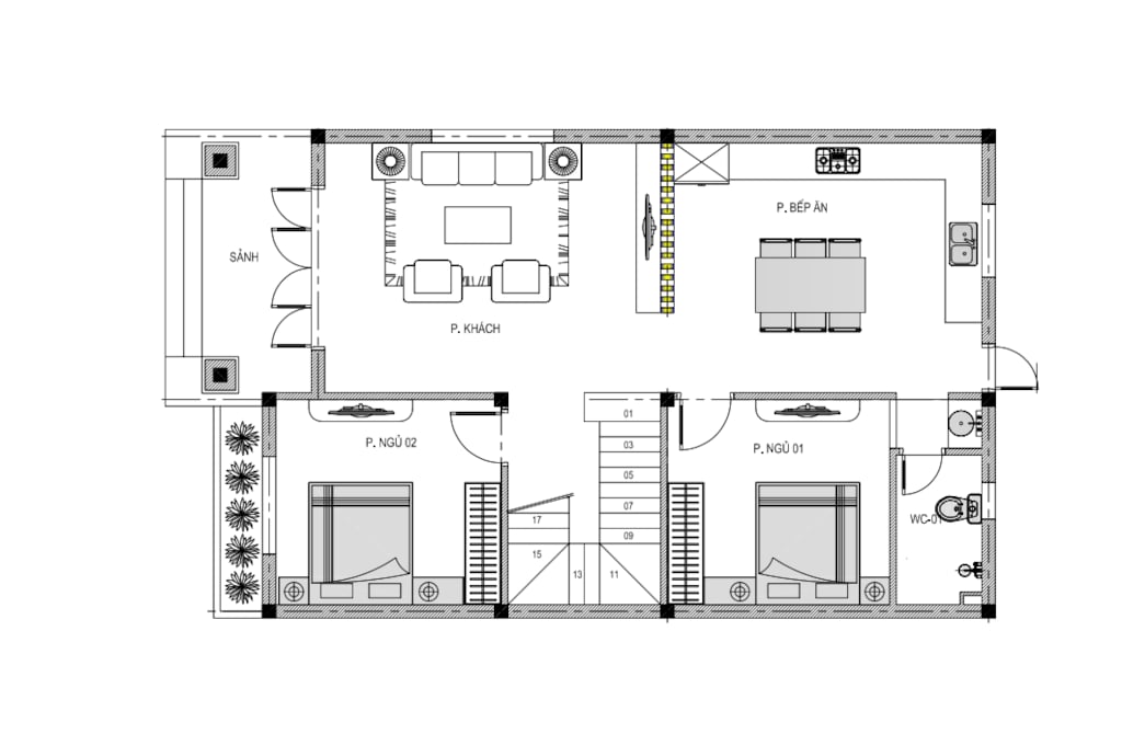
+ Tầng 1: Phòng khách + Bếp ăn+ 2 Phòng ngủ + 1 WC
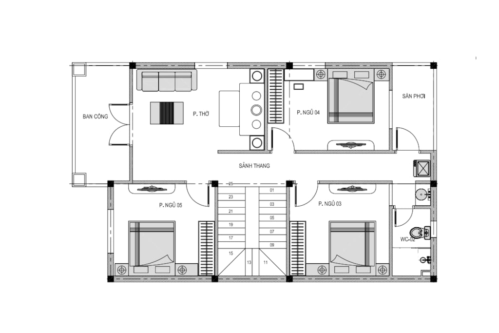
+ Tầng 2: Phòng thờ + 3 Phòng ngủ + 1 WC + Sân phơi

Mẫu nhà 2 tầng mái Nhật của gia đình anh Hưng là sự kết hợp hài hòa giữa vẻ đẹp sang trọng và công năng tối ưu, đang trở thành xu hướng được nhiều gia đình lựa chọn hiện nay. Với gam màu trắng – be chủ đạo, ngôi nhà toát lên sự tinh tế và thanh lịch, nổi bật nhờ thiết kế mặt tiền cân đối cùng hệ cột trụ vững chắc và các chi tiết phào chỉ nhẹ nhàng.
Không gian phía trước được bố trí sân vườn xanh mát, kết hợp tiểu cảnh tạo điểm nhấn thẩm mỹ và tăng yếu tố phong thủy cho ngôi nhà.
Hệ cửa kính lớn giúp tận dụng tối đa ánh sáng tự nhiên, mang lại không gian sống thoáng đãng và tiết kiệm năng lượng. Với chi phí xây dựng hợp lý, phù hợp nhiều diện tích đất và dễ thi công, mẫu nhà này là lựa chọn lý tưởng cho những gia chủ mong muốn một không gian sống vừa đẹp, vừa tiện nghi và bền vững theo thời gian.

2. Hình ảnh bố trí công năng
2.1. Tầng 1
Phòng khách + Bếp ăn+ 2 Phòng ngủ + 1 WC
.png?214)
2.2. Tầng 2
Phòng thờ + 3 Phòng ngủ + 1 WC + Sân phơi
.png?543)
