Mẫu nhà 2 tầng mái Nhật hiện đại, tinh tế theo thời gian - Chủ đầu tư: Anh Cường, Thanh Hóa
1. Phối cảnh 3D mặt tiền
- Chủ đầu tư: Anh Cường
- Địa điểm xây dựng: Thanh Hóa
- Tên công trình: Biệt thự 2 tầng mái nhật
- Công năng sử dụng:
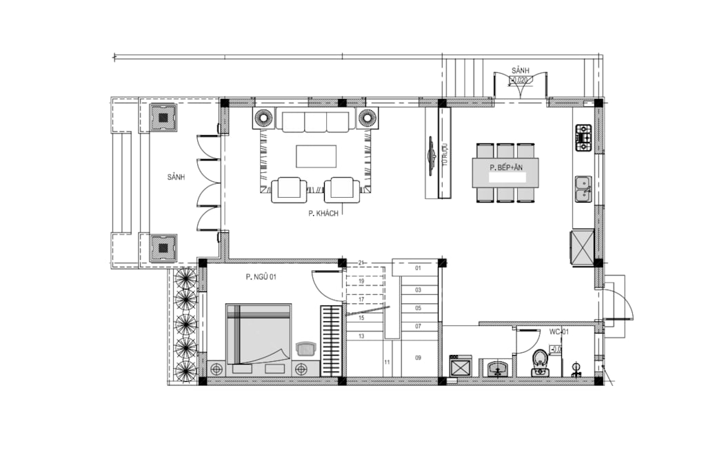
+ Tầng 1: Phòng khách + Bếp ăn+ Phòng ngủ + 1 WC
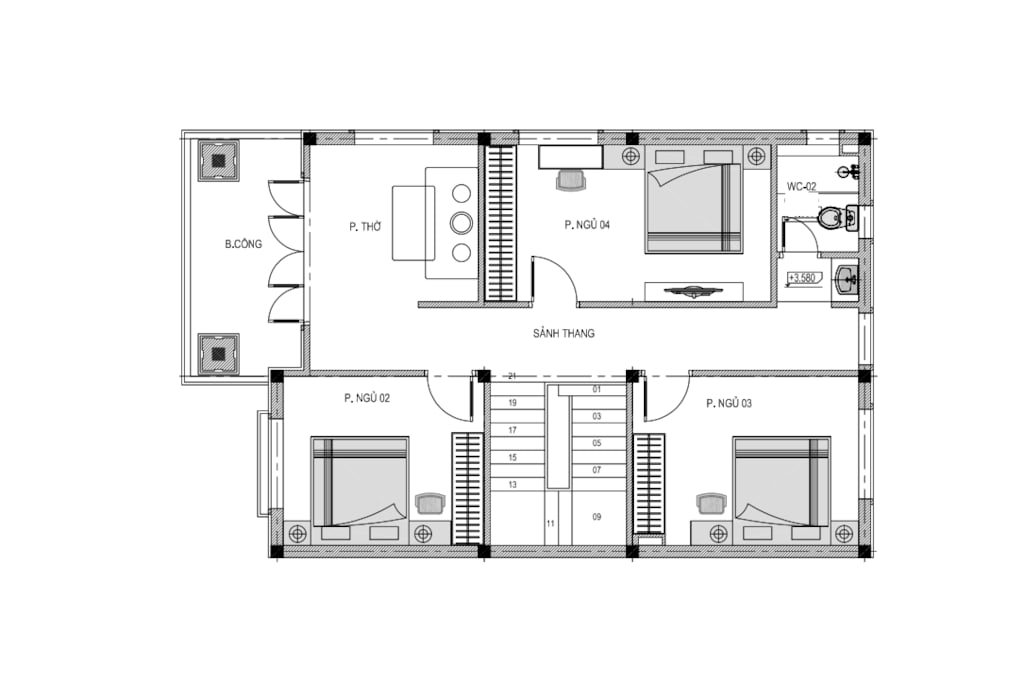
+ Tầng 2: Phòng thờ + 3 Phòng ngủ + 1 WC + Sân phơi

Mẫu nhà 2 tầng mái Nhật hiện đại trong hình là một giải pháp nhà ở hoàn hảo dành cho các gia đình yêu thích sự tinh tế, bền vững và tiện nghi trong không gian sống. Công trình do Kiến Trúc Việt Home thiết kế cho chủ đầu tư anh Cường tại Thanh Hóa, nổi bật với kiến trúc gọn gàng, cân đối và mang đậm hơi thở hiện đại.
Hệ mái Nhật xanh đậm có độ dốc vừa phải không chỉ giúp thoát nước nhanh, chống nóng hiệu quả mà còn tạo nên vẻ đẹp thanh lịch, khác biệt so với các mẫu mái truyền thống.
Mặt tiền ngôi nhà được thiết kế theo bố cục đối xứng, sử dụng hệ cột vuông khỏe khoắn kết hợp cùng ban công tầng 2 rộng rãi, lan can kính cường lực giúp mở rộng tầm nhìn và tăng khả năng lấy sáng tự nhiên. Gam màu chủ đạo trắng – xanh ghi – vân đá tối được phối hợp hài hòa, mang lại cảm giác sang trọng, sạch sẽ và không lỗi thời theo thời gian.

2. Hình ảnh bố trí công năng
2.1. Tầng 1
Phòng khách + Bếp ăn+ Phòng ngủ + 1 WC
.png?192)
2.2. Tầng 2
Phòng thờ + 3 Phòng ngủ + 1 WC + Sân phơi
.png?583)
Bạn đang dự định xây nhà. Liên hệ ngay Việt Home để được tư vấn nhé!
