Mẫu Nhà 2 Tầng Mái Nhật Hiện Đại - Xu Hướng Thiết Kế Được Ưa Chuộng 2026 - CĐT: Mr Thắng - Thanh Hóa
1. Phối cảnh 3D mặt tiền
- Chủ đầu tư: Anh Thắng
- Địa điểm xây dựng: Thanh Hóa
- Tên công trình: Nhà 2 tầng mái nhật
- Công năng sử dụng:
+ Tầng 1: Phòng khách + Bếp ăn+ Quầy Bar + Phòng ngủ + 1 WC
+ Tầng 2: Phòng thờ + Phòng SHC+ 3 Phòng ngủ + 1 WC + Sân phơi

Mặt tiền rộng 8m của mẫu nhà 2 tầng mái Nhật này gây ấn tượng ngay từ cái nhìn đầu tiên bởi sự cân đối hoàn hảo giữa hình khối kiến trúc và đường nét trang trí tinh tế. Toàn bộ ngôi nhà được phủ gam màu trắng thanh lịch, làm nền tôn lên hệ mái Nhật màu tối sang trọng, tạo nên sự tương phản đầy cuốn hút. Khu vực sảnh chính nổi bật với hệ cột trụ vuông vững chãi, kết hợp mái che đua rộng vừa tăng tính thẩm mỹ vừa tạo cảm giác bề thế cho ngôi nhà. Cửa chính bằng gỗ tự nhiên kích thước lớn, chạm khắc tinh xảo, kết hợp tay nắm kim loại sáng bóng mang lại vẻ đẹp đẳng cấp và ấm cúng. Bên cạnh đó, hệ cửa sổ và cửa ban công sử dụng kính trong suốt khung tối màu giúp mặt tiền trở nên thoáng đãng, đón trọn ánh sáng tự nhiên và mở rộng không gian thị giác.
Ban công tầng hai được thiết kế mềm mại với lan can sắt uốn nghệ thuật, điểm xuyết chậu cây xanh tạo nên nét duyên dáng và gần gũi. Phần mái hiên với các thanh lam ngang mang hơi hướng hiện đại, vừa có tác dụng che nắng vừa tạo điểm nhấn kiến trúc độc đáo. Tất cả hòa quyện cùng mảng xanh sân vườn phía trước, tạo nên một tổng thể hài hòa, sang trọng và đầy sức sống, khiến mặt tiền 8m không chỉ rộng rãi mà còn toát lên khí chất của một không gian sống đẳng cấp và tinh tế.
2. Hình ảnh bố trí công năng
2.1. Tầng 1
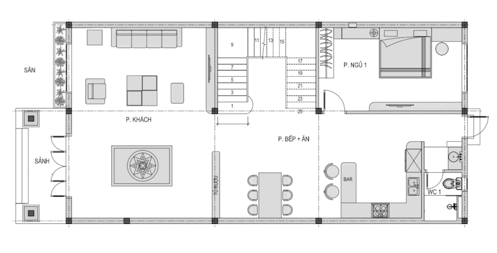
+ Tầng 1: Phòng khách + Bếp ăn+ Quầy Bar + Phòng ngủ + 1 WC
.png?798)
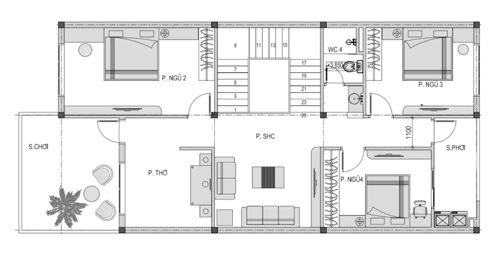
2.2. Tầng 2
+ Tầng 2: Phòng thờ + Phòng SHC+ 3 Phòng ngủ + 1 WC + Sân phơi
.png?664)
