Mẫu nhà 2 tầng Tân Cổ Điển sang trọng – Điểm nhấn đẳng cấp của chủ đầu tư anh Huấn Tại Hưng Yên!
1. Phối cảnh 3D mặt tiền
- Chủ đầu tư: Anh Huấn
- Địa điểm xây dựng: Hưng Yên
- Tên công trình: Biệt thự 2 tầng mái Nhật
- Công năng sử dụng:
+ Tầng 1: Phòng khách + Bếp ăn + Phòng ngủ + WC
+ Tầng 2: Phòng thờ + 3 Phòng ngủ + WC

Mặt tiền ngôi nhà tỏa ra vẻ đẹp sang trọng đầy khí chất, được kiến tạo từ những đường nét tinh xảo và bảng màu đẳng cấp. Tông trắng tinh khiết chủ đạo phủ lên toàn bộ kiến trúc một cảm giác thanh lịch, như lớp nền hoàn hảo để làm nổi bật các chi tiết trang trí cầu kỳ. Hệ cột trụ lớn vươn cao ở cả hai tầng được thiết kế chuẩn mực theo tỉ lệ vàng, thân cột mềm mại với những đường gờ nhẹ nhàng nhưng dứt khoát, toát lên sự quyền quý mà không phô trương. Ngay phía dưới, chân tường và bậc tam cấp được ốp đá đen vân mây cao cấp, tạo nên sự tương phản mạnh mẽ nhưng đầy tinh tế, khiến mặt tiền mang vẻ uy nghi của những biệt thự cao cấp châu Âu.
Ban công tầng hai chính là điểm nhấn rực rỡ của tổng thể, với lan can sắt nghệ thuật mạ vàng được gia công tỉ mỉ. Ánh vàng óng ả phản chiếu trước ánh sáng tự nhiên khiến mặt tiền trông lộng lẫy như một tuyệt tác hoàn thiện. Tiếp nối là hệ mái Nhật màu xanh ghi sang trọng, được thiết kế cân đối và sắc nét, từng đường mái đổ xuống mềm mại nhưng đầy chuẩn xác, mang lại cảm giác hài hòa và bề thế cho toàn bộ ngôi nhà. Những khung cửa kính tối màu xen kẽ càng khiến kiến trúc thêm phần hiện đại và quý phái, tạo nên sự kết hợp tinh tế giữa vẻ đẹp cổ điển và phong thái đương đại. Tất cả hòa quyện, tạo nên mặt tiền không chỉ sang trọng mà còn thể hiện trọn vẹn đẳng cấp và gu thẩm mỹ tinh tế của gia chủ.

2. Hình ảnh bố trí công năng
2.1. Tầng 1
+ Tầng 1: Phòng khách + Bếp ăn + Phòng ngủ + WC
.png?816)
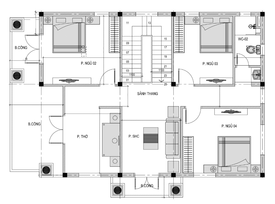
2.2. Tầng 2
+ Tầng 2: Phòng thờ + 3 Phòng ngủ + WC
.png?214)
