Mẫu Nhà 3 Tầng 1 Tum Tân Cổ Điển – Kiến Trúc Sang Trọng, Đẳng Cấp Chuẩn Biệt Thự Phố của chủ đầu tư anh Sơn - Hà Nội
1. Phối cảnh 3D mặt tiền
Chủ đầu tư: Anh Sơn
Địa điểm xây dựng: Chương Mỹ, Hà Nội.
Công năng sử dụng:
+ Tầng 1: Gara + Bếp ăn + 1 WC
+ Tầng 2: Phòng khách + Phòng ngủ + WC
+ Tầng 3: 3 Phòng ngủ + WC
+ Tầng tum: Phòng thờ+ Sân phơi

Công trình gây ấn tượng ngay từ cái nhìn đầu tiên với hình khối mạnh mẽ, mặt tiền đối xứng và màu trắng chủ đạo. Thiết kế 3 tầng kết hợp 1 tum giúp tối đa hóa diện tích sử dụng, đồng thời tăng chiều cao, mang lại cảm giác thanh thoát, sang trọng giữa dãy phố.Ngoại thất mẫu nhà 3 tầng 1 tum mang phong cách tân cổ điển nổi bật với tông màu trắng kem chủ đạo, tạo cảm giác sang trọng, thanh thoát và làm nền hoàn hảo để tôn lên hệ phào chỉ tinh tế chạy dọc mặt tiền. Những đường gờ nổi, phào chỉ bo quanh cửa sổ và phù điêu hoa văn đặt giữa tầng 2 được thiết kế sắc nét, mềm mại, thể hiện rõ nét đẹp đặc trưng của kiến trúc châu Âu.
Hệ cửa kính khung thép màu đen tạo điểm nhấn mạnh mẽ nhờ độ tương phản cao với màu tường, đồng thời mang đến khả năng lấy sáng tối đa cho không gian nội thất. Đặc biệt, cửa vòm lớn ở tầng 2 giúp mặt tiền trở nên mềm mại, lôi cuốn và tạo nét riêng biệt cho công trình. Bên cạnh đó, hệ trụ cột tròn theo thức Ionic chạy xuyên từ tầng 2 lên tầng 3 mang lại sự bề thế, vững chãi và tạo tỷ lệ kiến trúc hài hòa cho tổng thể ngôi nhà. Ở tầng tum, lan can sắt nghệ thuật màu đen uốn lượn tinh xảo kết hợp ban công rộng thoáng tạo điểm nhấn mềm mại, giúp tổng thể công trình vừa đẳng cấp vừa hiện đại. Tất cả các chi tiết được hòa quyện một cách khéo léo, mang đến diện mạo hoàn thiện, sang trọng và cuốn hút cho mẫu nhà 3 tầng 1 tum này.
2. Hình ảnh bố trí công năng
2.1. Tầng 1
+ Tầng 1: Gara + Bếp ăn + 1 WC
.png?176)
2.2. Tầng 2
+ Tầng 2: Phòng khách + Phòng ngủ + WC
.png?392)
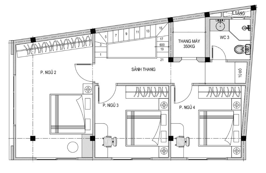
2.3. Tầng 3
+ Tầng 3: 3 Phòng ngủ + WC
.png?436)
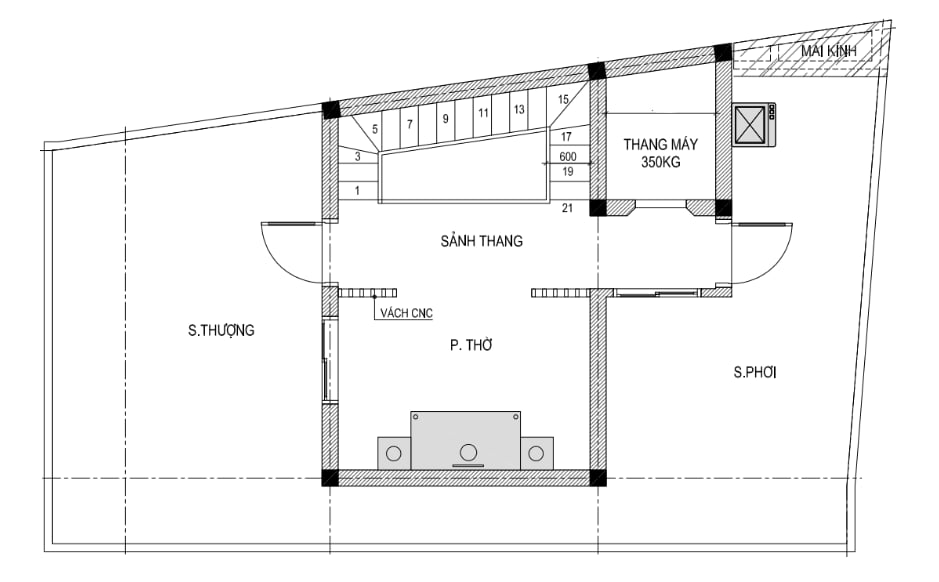
2.4. Tầng tum
+ Tầng tum: Phòng thờ+ Sân phơi
.png?405)
3. Hình ảnh thi công




