Mẫu nhà 4 tầng 1 tum hiện đại - Giải pháp hoàn hảo cho nhà phố diện tích nh- CĐT: Mr Kiên - Phú Xuyên, Hà Nội
1. Phối cảnh 3D mặt tiền
Chủ đầu tư: Anh Kiên
Địa điểm xây dựng: Phú Xuyên, Hà Nội
Công năng sử dụng:
+ Tầng 1: Phòng khách + Bếp ăn + WC
+ Tầng 2: 2 Phòng ngủ khép kín
+ Tầng 3: Phòng dạy học + Phòng ngủ + WC
+ Tầng 4: Phòng thờ + Phòng ngủ + WC
+ Tầng tum: Sân thượng, sân phơi + Kho
.jpg?165)
Mặt tiền của mẫu nhà 4 tầng 1 tum này gây ấn tượng ngay từ cái nhìn đầu tiên bởi sự kết hợp hài hòa giữa nét hiện đại và những chi tiết mềm mại mang hơi hướng nghệ thuật. Tổng thể công trình sử dụng gam màu trắng chủ đạo, tạo cảm giác thanh lịch, sạch sẽ và làm nổi bật các đường nét kiến trúc vuông vức, gọn gàng. Các khối ban công được thiết kế nhô ra hợp lý, kết hợp lan can sắt sơn đen uốn hoa văn tinh tế, vừa đảm bảo an toàn vừa tăng tính thẩm mỹ, tạo chiều sâu cho mặt đứng. Hệ cửa kính lớn trải dài ở mỗi tầng không chỉ giúp ngôi nhà trở nên sang trọng hơn mà còn tối ưu khả năng đón ánh sáng tự nhiên, khiến không gian bên trong luôn thông thoáng và tràn đầy sức sống.
Phần trần ban công ốp gỗ kết hợp hệ đèn âm trần ánh vàng mang lại cảm giác ấm cúng vào buổi tối, tạo nên hiệu ứng ánh sáng rất cuốn hút khi nhìn từ bên ngoài. Điểm nhấn đặc biệt nằm ở tầng tum với mái vòm sắt nghệ thuật uốn cong duyên dáng, kết hợp mảng xanh từ cây cảnh tạo nên một khu vườn trên cao đầy thư giãn, vừa phá vỡ sự cứng nhắc của các khối hình học, vừa mang lại hơi thở thiên nhiên cho toàn bộ công trình. Tầng trệt được ốp đá sang trọng cùng hệ cửa chính chắc chắn, thiết kế hiện đại với chi tiết kim loại ánh vàng, góp phần nâng tầm đẳng cấp cho ngôi nhà. Tất cả các yếu tố từ màu sắc, vật liệu đến bố cục đều được xử lý tinh tế, giúp mặt tiền không chỉ đẹp mắt mà còn thể hiện rõ phong cách sống hiện đại, tinh tế và đầy gu thẩm mỹ của gia chủ.

2. Hình ảnh bố trí công năng
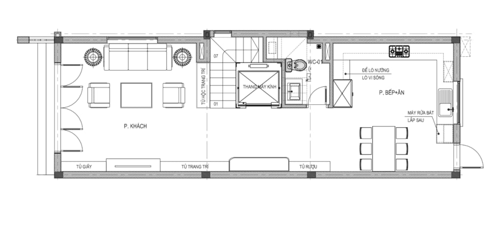
2.1. Tầng 1
+ Tầng 1: Phòng khách + Bếp ăn + WC
.png?423)
2.2. Tầng 2
+ Tầng 2: 2 Phòng ngủ khép kín
.png?597)
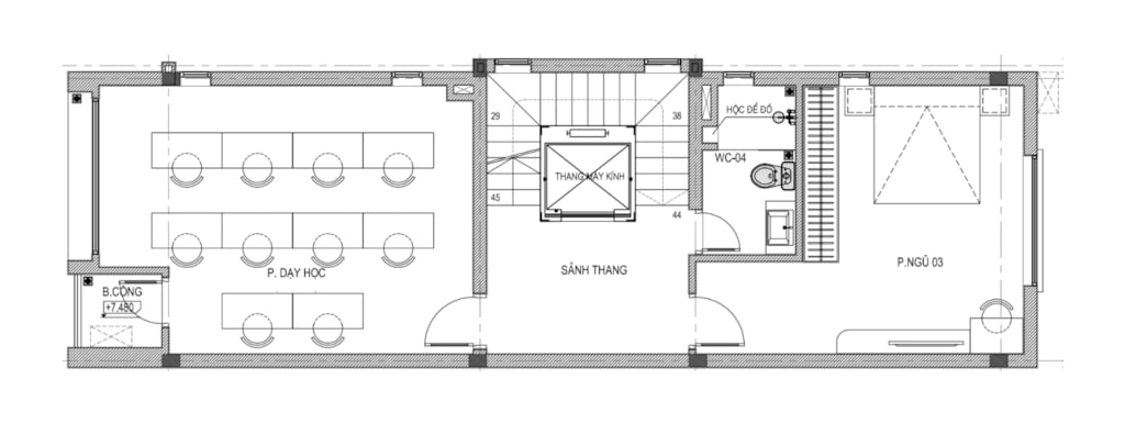
2.3. Tầng 3
+ Tầng 3: Phòng dạy học + Phòng ngủ + WC
.png?0)
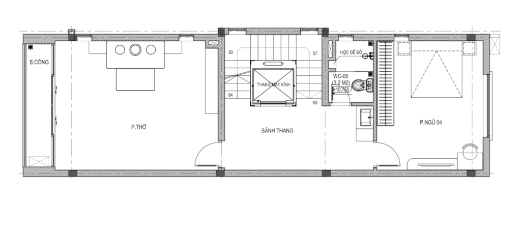
2.4. Tầng 4
+ Tầng 4: Phòng thờ + Phòng ngủ + WC
.png?12)
2.5. Tầng tum
+ Tầng tum: Sân thượng, sân phơi + Kho
.png?562)
3. Hình ảnh thi công
.png?96)
.png?499)
.png?349)
