Mẫu Nhà 5 Tầng 1 Lửng 1 Tum Hiện Đại - Giải Pháp Nhà Phố Tối Ưu Diện Tích - CĐT: Mr Thoại Anh - Hà Nội
1. Phối cảnh 3D mặt tiền
Chủ đầu tư: Mr. Thoại Anh
Địa điểm xây dựng: Hà Nội
Công năng sử dụng:
+ Tầng 1: Để xe + Bếp ăn + WC
+Tầng Lửng: Phòng khách
+ Tầng 2 - 4: Phòng ngủ khép kín
+ Tầng 5: Phòng thờ + Phòng giặt + Sân phơi
+ Tầng tum: Sân thượng

Mặt tiền của mẫu nhà 5 tầng 1 lửng 1 tum gây ấn tượng mạnh với phong cách kiến trúc hiện đại, thanh thoát và đầy tính thẩm mỹ, phù hợp hoàn hảo với đặc trưng nhà phố đô thị. Tổng thể công trình được tạo hình theo khối đứng cao ráo, các mảng tường vuông vức kết hợp bố cục giật cấp khéo léo giúp giảm cảm giác cao và hẹp thường thấy ở nhà nhiều tầng. Gam màu trắng chủ đạo mang lại vẻ trẻ trung, sạch sẽ, được nhấn nhá bằng các mảng ốp đá xám và vật liệu giả gỗ chạy dọc thân nhà, vừa tạo chiều sâu thị giác vừa tăng sự sang trọng cho mặt đứng. Hệ ban công các tầng sử dụng lan can kính cường lực trong suốt, giúp mở rộng tầm nhìn, đón ánh sáng tự nhiên tối đa và làm mặt tiền trở nên nhẹ nhàng, thoáng đãng hơn.
Cửa đi và cửa sổ lớn bằng kính khung nhôm cao cấp được bố trí khoa học, đảm bảo khả năng lấy sáng – thông gió hiệu quả, đồng thời tạo sự kết nối hài hòa giữa không gian bên trong và bên ngoài. Hệ đèn âm trần bố trí tinh tế tại các ban công và tầng lửng giúp mặt tiền nổi bật vào ban đêm, tôn lên các đường nét kiến trúc hiện đại. Điểm nhấn ở tầng tum là mảng xanh cây cảnh được bố trí gọn gàng, vừa tăng tính thẩm mỹ vừa góp phần điều hòa vi khí hậu, mang đến cảm giác gần gũi với thiên nhiên. Tất cả các chi tiết kết hợp hài hòa tạo nên một mặt tiền nhà phố cao tầng vừa hiện đại, sang trọng, vừa bền vững theo thời gian.

2. Hình ảnh bố trí công năng
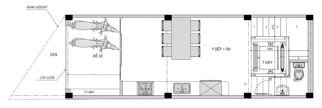
2.1. Tầng 1
+ Tầng 1: Để xe + Bếp ăn + WC
.png?482)
2.2. Tầng 2
+Tầng Lửng: Phòng khách
.png?801)
2.3. Tầng 3
+ Tầng 2 - 4: Phòng ngủ khép kín
.png?534)
2.4. Tầng 4
+ Tầng 5: Phòng thờ + Phòng giặt + Sân phơi
.png?411)
2.5. Tầng 5
+ Tầng tum: Sân thượng
.png?167)
