Mẫu Nhà Biệt Thự 2 Tầng Mái Nhật Hiện Đại Đẹp Sang Trọng - Xu Hướng Nhà Đẹp 2026 - CĐT: Mr Công - Bắc Ninh
1. Phối cảnh 3D mặt tiền
- Chủ đầu tư: Anh Công
- Địa điểm xây dựng: Bắc Ninh
- Tên công trình: Nhà 2 tầng mái nhật
- Công năng sử dụng:
+ Tầng 1: Phòng thờ + Phòng khách + Bếp ăn+ Phòng ngủ khép kín + 1 WC
+ Tầng 2: Phòng SHC + Phòng ngủ Master + 2 Phòng ngủ + WC + Sân phơi

Mặt tiền của ngôi nhà gây ấn tượng mạnh với phong cách kiến trúc sang trọng, hài hòa giữa nét hiện đại và tân cổ điển nhẹ nhàng. Tổng thể công trình được thiết kế cân đối với gam màu trắng chủ đạo, mang lại cảm giác tinh tế, thanh lịch và nổi bật giữa không gian sân vườn xanh mát. Phần mái Nhật nhiều lớp với độ dốc vừa phải tạo nên vẻ bề thế và giúp công trình trở nên cao ráo, thanh thoát hơn. Ở tầng hai, khu vực ban công được thiết kế rộng rãi với lan can sắt nghệ thuật màu đen tinh xảo, kết hợp bồn hoa trồng cây xanh và hoa trang trí tạo nên điểm nhấn mềm mại cho toàn bộ mặt tiền. Bên trái ngôi nhà là khối ban công hình bán nguyệt độc đáo cùng cửa vòm lớn, mang hơi hướng tân cổ điển giúp công trình thêm phần duyên dáng và khác biệt. Hệ cột vuông lớn được bố trí đối xứng từ tầng một lên tầng hai, không chỉ tạo cảm giác chắc chắn, bề thế mà còn làm nổi bật nét kiến trúc sang trọng của căn biệt thự.

Tầng một sử dụng hệ cửa kính khung nhôm màu tối kích thước lớn, giúp không gian bên trong đón được nhiều ánh sáng tự nhiên, đồng thời tạo sự kết nối hài hòa giữa nội thất và cảnh quan bên ngoài. Khu vực sảnh chính được thiết kế rộng với bậc tam cấp dẫn lên cửa chính, hai bên đặt chậu cây cảnh giúp tăng thêm sự gần gũi với thiên nhiên. Hệ đèn tường trang trí được bố trí dọc theo các cột và ban công, khi bật vào buổi tối sẽ làm nổi bật toàn bộ kiến trúc, tạo nên vẻ đẹp ấm cúng và sang trọng cho ngôi nhà. Phía trước là khoảng sân rộng lát đá sạch sẽ, vừa thuận tiện cho việc di chuyển vừa làm nổi bật vẻ đẹp bề thế của toàn bộ công trình, khiến mặt tiền ngôi nhà trở nên cuốn hút, hiện đại nhưng vẫn giữ được nét tinh tế và đẳng cấp của một căn biệt thự 2 tầng.

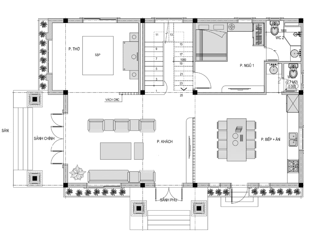
2. Hình ảnh bố trí công năng
2.1. Tầng 1
+ Tầng 1: Phòng thờ + Phòng khách + Bếp ăn+ Phòng ngủ khép kín + 1 WC
.png?591)
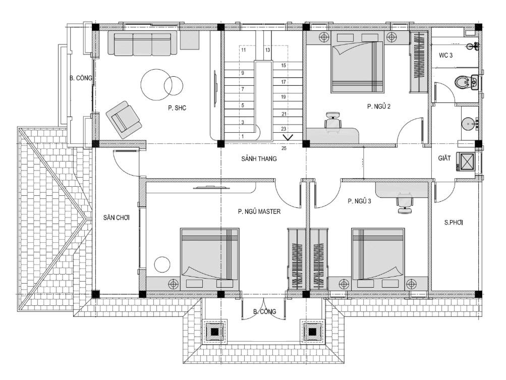
2.2. Tầng 2
+ Tầng 2: Phòng SHC + Phòng ngủ Master + 2 Phòng ngủ + WC + Sân phơi
.png?211)
3. Hình ảnh thi công
.png?871)
.png?567)
.png?20)
.png?183)
