Mẫu Nhà Phố 2 Tầng 1 tum Đẹp - Thiết Kế Hiện Đại Kết Hợp Không Gian Xanh - CĐT: Mr Thành - Phú Thọ
1. Phối cảnh 3D mặt tiền
Chủ đầu tư: Anh Thành
Địa điểm xây dựng: Phú Thọ
Công năng sử dụng:
+ Tầng 1: Phòng khách + Phòng bếp ăn + Phòng ngủ + wc
+ Tầng 2: Phòng ngủ master + 2 Phòng ngủ + 1 WC
+ Tầng tum: Phòng thờ + sân phơi

Mặt tiền của ngôi nhà mang một vẻ đẹp hiện đại đầy cuốn hút, nổi bật giữa không gian xung quanh nhờ sự kết hợp hài hòa giữa vật liệu, màu sắc và bố cục kiến trúc tinh tế. Tầng một được ốp đá vân xám cao cấp, tạo cảm giác vững chãi, sang trọng và có chiều sâu, đồng thời làm nền hoàn hảo để tôn lên hệ cửa kính khung kim loại đen mạnh mẽ, sắc nét. Bước lên tầng hai, không gian như “mở ra” với ban công rộng sử dụng lan can kính trong suốt, giúp ánh sáng tự nhiên tràn ngập và mang lại cảm giác thoáng đãng. Những chậu cây xanh được bố trí khéo léo hai bên ban công không chỉ làm mềm các đường nét kiến trúc mà còn tạo nên một khu vườn nhỏ treo lơ lửng, đem lại sức sống và sự thư giãn.
Điểm nhấn đặc biệt nhất nằm ở khu vực sân thượng, nơi được thiết kế như một khu nghỉ dưỡng thu nhỏ với hệ mái che nghệ thuật bằng khung kim loại uốn cong độc đáo, vừa có tính thẩm mỹ cao vừa tạo bóng mát hiệu quả. Dải cây xanh và hoa được trồng dọc theo lan can sân thượng kết hợp cùng cây dừa cảnh vươn cao tạo nên một tầng sinh thái xanh mát, nổi bật trên nền trời. Khi chiều buông, ánh sáng vàng ấm từ hệ đèn âm trần và đèn trang trí bắt đầu lan tỏa, phản chiếu nhẹ trên bề mặt kính và đá, làm nổi bật từng chi tiết kiến trúc và mang đến vẻ đẹp lung linh, sang trọng. Đặc biệt trong khung cảnh trời mưa, những giọt nước rơi lấp lánh dưới ánh đèn càng làm mặt tiền trở nên sống động, tạo nên một tổng thể vừa hiện đại, tinh tế vừa đầy chất thơ giữa phố thị.

2. Hình ảnh bố trí công năng
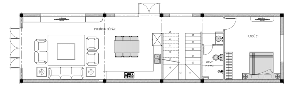
2.1. Tầng 1
+ Tầng 1: Phòng khách + Phòng bếp ăn + Phòng ngủ + wc
.png?580)
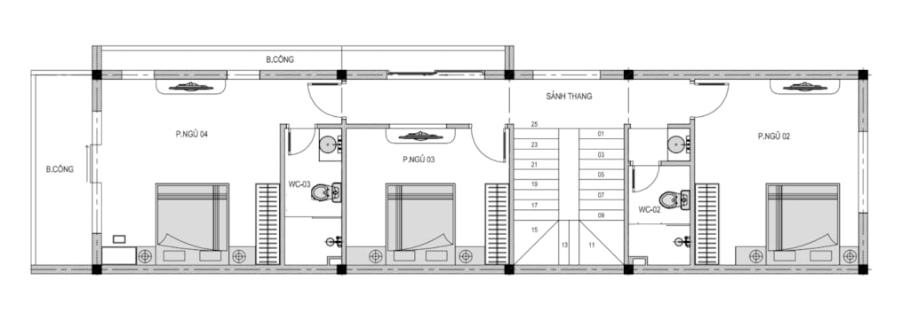
2.2. Tầng 2
+ Tầng 2: Phòng ngủ master + 2 Phòng ngủ + 1 WC
.png?199)
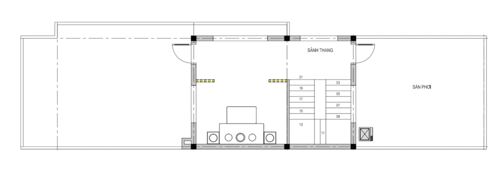
2.3. Tầng 3
+ Tầng tum: Phòng thờ + sân phơi
.png?344)
