Mẫu nhà phố 2 tầng 1 tum hiện đại đẹp lung linh - Chủ đầu tư: Anh Tình, Nam Định
Những mẫu thiết kế nhà ống đẹp 2 tầng 1 tum tầng luôn là sự lựa chọn được ưa thích nhất của phần đông gia đình. Góp phần tô điểm thêm sự đa dạng trong thiết kế kiến trúc, nét riêng cho từng ngôi nhà của mỗi gia đình là thiết kế mặt tiền đẹp, đơn giản nhưng đầy sang trọng.
Mẫu nhà này là một trong những lựa chọn rất phù hợp cho những gia đình trẻ có ít thành viên. Không chỉ đáp ứng tốt về nhu cầu nhà ở cho người dân mà kiểu nhà này còn giúp tiết kiệm chi phí xây dựng một cách tối đa.
Hôm nay Việt Home xin giới thiệu đến mọi người căn biệt thự phố 2 tầng 1 tum tầng ở Nam Định.
1. Phối cảnh 3D mặt tiền
- Chủ đầu tư: Anh Tình
- Địa điểm xây dựng: Nam Định
- Tên công trình: Biệt thự phố2 tầng 1 tum hiện đại
- Công năng sử dụng:
+ Tầng 1: Sân để xe + Phòng khách + Phòng bếp và ăn + 1 Phòng ngủ + 1 WC
+ Tầng 2: Phòng sinh hoạt chung + 2 Phòng ngủ master
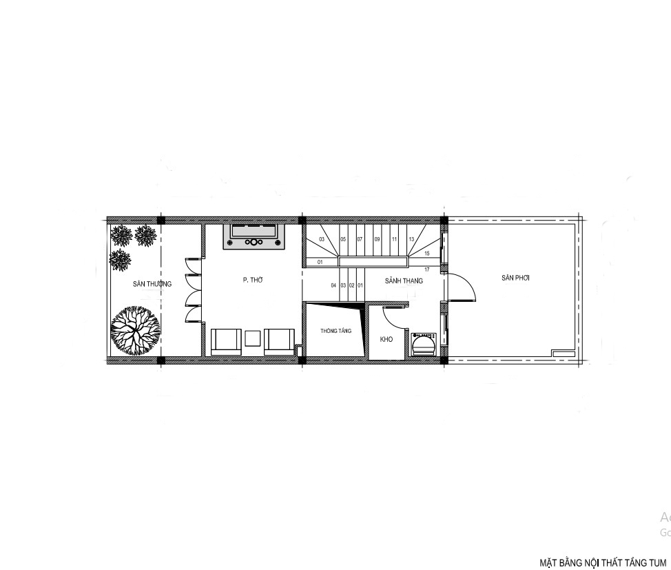
+ Tầng tum: Phòng thờ + Phòng kho + Sân phơi


2. Bố trí công năng sử dụng
2.1. Mặt bằng tổng thể

2.2. Tầng 1 và tầng 2
+ Tầng 1: Sân để xe + Phòng khách + Phòng bếp và ăn + 1 Phòng ngủ + 1 WC
+ Tầng 2: Phòng sinh hoạt chung + 2 Phòng ngủ master

2.3. Tầng tum
+ Tầng tum: Phòng thờ + Sân thượng + Phòng kho + Sân phơi

3. Hình ảnh giám sát thi công




