Mẫu nhà phố 2 tầng 1 tum hiện đại - Giải pháp sống xanh giữa đô thị - CĐT: Mr Văn , Thái Nguyên
1. Phối cảnh 3D mặt tiền
Chủ đầu tư: Anh Văn
- Địa điểm xây dựng: Thái Nguyên
- Công năng sử dụng:
+ Tầng 1: Gara + Phòng khách + Phòng Bếp, ăn +Phòng ngủ + WC
+ Tầng 2: Phòng ngủ Master + 2 Phòng ngủ thường + WC
+ Tầng tum: Phòng thờ + Sân phơi+ Sân thượng
Mặt tiền của mẫu nhà phố 2 tầng 1 tum này được chăm chút kỹ lưỡng theo ngôn ngữ kiến trúc hiện đại, thể hiện rõ qua cách tổ chức hình khối mạch lạc, tỷ lệ cân đối và sự phối hợp vật liệu tinh tế. Tổng thể công trình mang dáng vẻ cao ráo, thanh thoát với các mảng khối vuông vức xếp chồng lên nhau, tạo chiều sâu thị giác và cảm giác vững chãi ngay từ cái nhìn đầu tiên. Tầng trệt đóng vai trò như phần đế, được xử lý nổi bật bằng lớp ốp đá vân mây màu be sáng có bề mặt bóng nhẹ, vừa giúp chống bám bẩn vừa tạo hiệu ứng sang trọng, phản chiếu ánh sáng tự nhiên. Trung tâm là hệ cổng sắt hộp sơn tĩnh điện màu đen, thiết kế dạng nan dọc đều nhau, kết hợp các khe hở hợp lý để đón gió và ánh sáng, đồng thời đảm bảo sự riêng tư cần thiết. Hai bên cổng được bố trí đèn tường ánh vàng ấm, khi đêm xuống sẽ tạo nên những vệt sáng hắt lên bề mặt đá, làm nổi bật kết cấu vật liệu và tăng chiều sâu cho mặt tiền.

Bước lên tầng hai, không gian trở nên nhẹ nhàng và mở hơn với ban công rộng chạy ngang mặt tiền, sử dụng lan can kính cường lực trong suốt kết hợp tay vịn kim loại tối màu, giúp mở rộng tầm nhìn và tạo cảm giác thoáng đãng. Sàn ban công được tận dụng như một khu vườn nhỏ với các chậu cây xanh, cây bụi và cây treo bố trí đan xen, vừa tạo điểm nhấn sinh động vừa giúp điều hòa vi khí hậu, giảm bức xạ nhiệt cho không gian bên trong. Phía sau lớp kính là hệ cửa trượt lớn khung nhôm, sử dụng kính trong giúp tối ưu hóa việc lấy sáng tự nhiên, đồng thời tạo sự liên kết liền mạch giữa nội thất và ngoại thất. Bao quanh khu vực cửa là một khung kiến trúc dạng hộp giật cấp, sơn trắng tinh khôi, đóng vai trò như một “khung tranh” làm nổi bật khu vực sinh hoạt chính và tạo điểm nhấn thị giác mạnh mẽ.
Điểm đặc biệt của mặt tiền nằm ở sự kết hợp hài hòa giữa các vật liệu hiện đại và yếu tố thiên nhiên. Mảng tường ốp lam gỗ nhựa hoặc gỗ công nghiệp màu nâu ấm được bố trí lệch về một bên, tạo sự phá cách so với bố cục đối xứng truyền thống, đồng thời mang lại cảm giác gần gũi và cân bằng lại sự lạnh của kính và kim loại. Những mảng xanh được đưa vào một cách có chủ đích, không chỉ ở ban công mà còn len lỏi ở các vị trí như bồn cây, giàn treo, góp phần “mềm hóa” tổng thể kiến trúc và mang lại cảm giác thư giãn.

Lên đến tầng tum, mặt tiền tiếp tục gây ấn tượng với thiết kế mở, đóng vai trò như một không gian thư giãn ngoài trời. Khu vực này được che phủ bởi hệ mái lam ngang kết hợp kính lấy sáng, vừa giúp che nắng mưa vừa đảm bảo ánh sáng tự nhiên xuyên xuống các tầng dưới. Trần mái sử dụng vật liệu giả gỗ với các đường nan chạy song song, kết hợp hệ đèn âm trần ánh sáng vàng được bố trí đều, tạo nên không gian ấm cúng vào buổi tối. Phía trước tum là một dải bồn cây xanh kéo dài, trồng các loại cây thấp và cây rủ, tạo hiệu ứng “vườn treo” mềm mại, giúp công trình trở nên sinh động hơn khi nhìn từ xa.
Ngoài ra, toàn bộ mặt tiền còn được tính toán kỹ về ánh sáng và thông gió tự nhiên. Các khoảng hở, cửa kính lớn và ban công đều được bố trí hợp lý để đón gió và ánh sáng, giúp ngôi nhà luôn thông thoáng, giảm phụ thuộc vào thiết bị điện. Sự kết hợp giữa màu trắng chủ đạo, màu nâu gỗ ấm áp, màu đen của kim loại và sắc xanh của cây cối tạo nên một bảng màu hài hòa, hiện đại nhưng không khô cứng. Tất cả những yếu tố này hòa quyện lại, tạo nên một mặt tiền không chỉ đẹp về thẩm mỹ mà còn tối ưu về công năng, thể hiện rõ phong cách sống tinh tế, hiện đại và gần gũi với thiên nhiên của gia chủ.
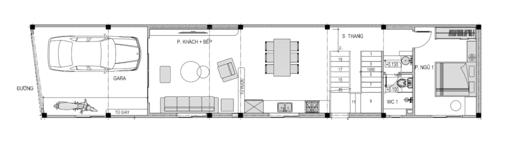
2. Công năng sử dụng
2.1. Tầng 1
+ Tầng 1: Gara + Phòng khách + Phòng Bếp, ăn +Phòng ngủ + WC
.png?195)
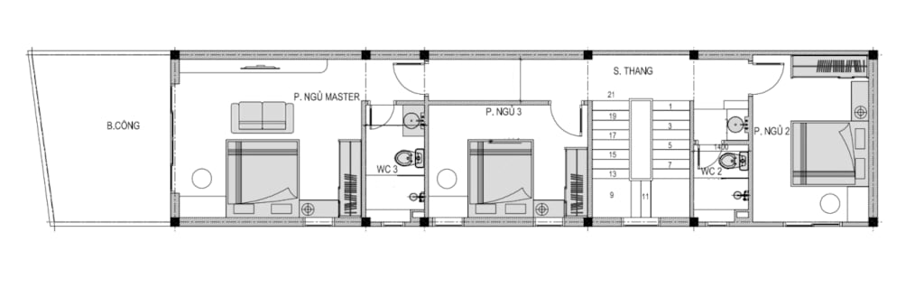
2.2. Tầng 2
+ Tầng 2: Phòng ngủ Master + 2 Phòng ngủ thường + WC
.png?984)
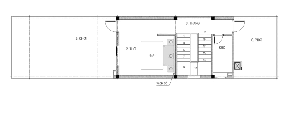
2.3. Tầng tum
+ Tầng tum: Phòng thờ + Sân phơi+ Sân thượng
.png?594)
