Mẫu Nhà Phố 2 Tầng Hiện Đại Mặt Tiền Đẹp - Chủ Đầu Tư: Anh Châu, Nam Định
1. Phối cảnh 3D mặt tiền
Chủ đầu tư: Anh Châu
Địa điểm xây dựng: Nam Định
Công năng sử dụng:
+ Tầng 1: Phòng khách và thờ + Phòng bếp ăn + Phòng ngủ khép kín + wc
+ Tầng 2: 1 Phòng ngủ master + 2 Phòng ngủ + 1 WC
.png?378)
Mẫu nhà phố 2 tầng mang phong cách hiện đại nổi bật với thiết kế tối giản nhưng đầy tinh tế, phù hợp với xu hướng kiến trúc đô thị hiện nay. Mặt tiền được tạo hình cân đối với các đường nét vuông vức kết hợp bo cong mềm mại, sử dụng tông màu trắng chủ đạo cùng vật liệu kính và gỗ giúp tổng thể trở nên sang trọng và ấm cúng.
Điểm nhấn ấn tượng nằm ở hệ cửa chính gỗ lớn kết hợp hoa văn tinh xảo, cùng ban công kính thoáng đãng giúp mở rộng không gian và đón ánh sáng tự nhiên tối đa. Khu vực tầng thượng được bố trí linh hoạt, có thể tận dụng làm nơi thư giãn, uống trà hoặc tổ chức tiệc BBQ ngoài trời, mang đến trải nghiệm sống tiện nghi và gần gũi thiên nhiên.
Với cách bố trí công năng hợp lý, mẫu nhà không chỉ đáp ứng đầy đủ nhu cầu sinh hoạt mà còn thể hiện gu thẩm mỹ hiện đại, là lựa chọn lý tưởng cho các gia đình trẻ đang tìm kiếm một không gian sống vừa đẹp vừa tiện nghi.
.png?476)
2. Hình ảnh bố trí công năng
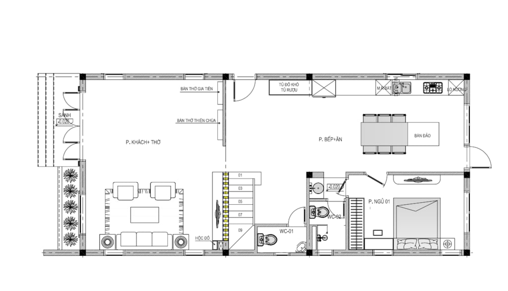
2.1. Tầng 1
Phòng khách và thờ + Phòng bếp ăn + Phòng ngủ khép kín + wc
.png?33)
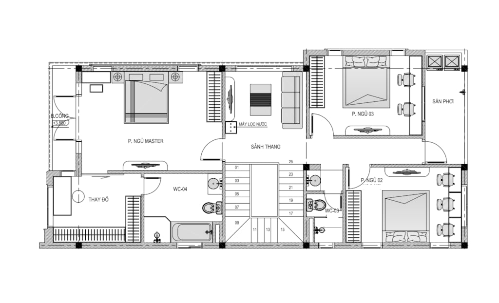
2.2. Tầng 2
1 Phòng ngủ master + 2 Phòng ngủ + 1 WC
.png?308)
3. Hình ảnh thi công thực tế
.png?524)
.png?192)
.png?551)
.png?907)
Mẫu nhà phố 2 tầng hiện đại không chỉ đáp ứng nhu cầu sinh hoạt mà còn mang lại giá trị thẩm mỹ và phong cách sống cho gia chủ. Đây chắc chắn là lựa chọn đáng cân nhắc cho những ai đang có kế hoạch xây dựng tổ ấm trong tương lai.
