Mẫu nhà phố 3 tầng đẹp, tiện nghi - Chủ đầu tư: Anh Việt, Hải Dương
Mẫu nhà phố 3 tầng hiện đại phù hợp cho những gia đình đang sinh sống ở những thành phố đông đúc, chật hẹp. Kiểu thiết kế này đề cao tính thẩm mỹ, tối ưu công năng, phục vụ cho nhu cầu sinh hoạt thoải mái của các gia đình từ 5 đến 7 thành viên.
Việt Home xin giới thiệu đến các bác mẫu nhà phố 3 tầng của gia đình Anh Việt tại Hải Dương.
1. Phối cảnh 3D mặt tiền
Chủ đầu tư: Anh Việt
- Địa điểm xây dựng: Hải Dương
- Công năng sử dụng:
+ Tầng 1: Phòng khách, Phòng Bếp + Ăn, 1 WC + Sân để xe.
+ Tầng 2: 3 Phòng ngủ, 1 WC.
+ Tầng 3: Phòng thờ, 1 Phòng ngủ, Sân giặt phơi.

Mẫu nhà này thường được rất nhiều gia đình trẻ yêu thích và lựa chọn. Phong cách thiết kế tối giản nhưng khá bắt mắt và hiện đại tạo được ấn tượng ngay từ cái nhìn đầu tiên. Tuy không có nhiều họa tiết bên ngoài nhưng vẫn đảm bảo giá trị thẩm mỹ độc đáo cho ngôi nhà.
Thiết kế mẫu nhà này là sự nổi bật của nét sang trọng khi có sự kết hợp hài hòa hợp lí giữa những màu sắc có phần đối lập nhau. Thông thường màu trắng và màu xanh đen là những gam màu đối nghịch nhau. Nhưng khi kết hợp với nhau sẽ tạo nên sự tương phản màu sắc độc đáo. Khiến kiến trúc ngôi nhà càng trở nên thu hút, đẳng cấp hơn.
Toàn bộ cây xanh trong và ngoài nhà được bố trí dày đặc, góp thêm vào không khí mát mẻ, thông thoáng và dễ chịu.
2. Công năng sử dụng
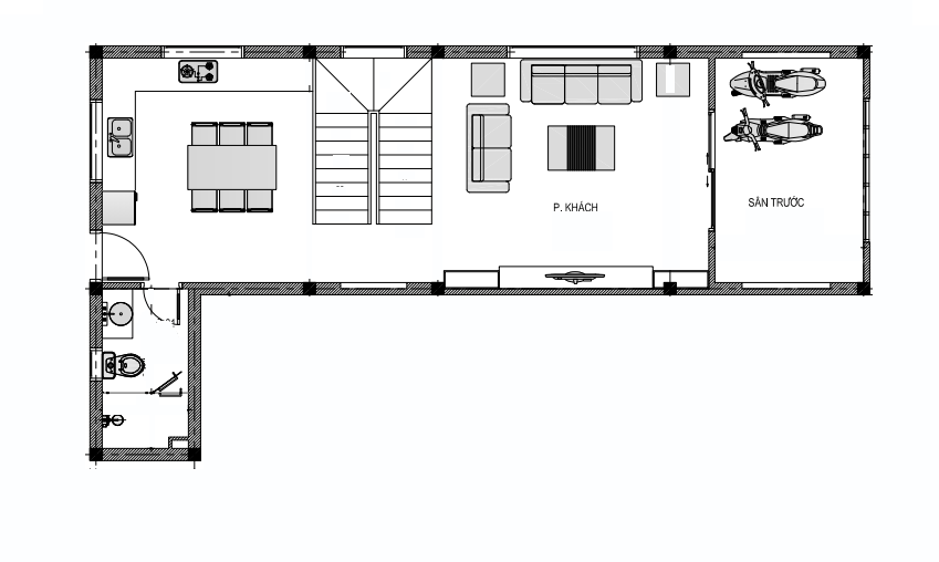
2.1. Tầng 1
Tầng 1: Phòng khách, Phòng Bếp + Ăn, 1 WC + Sân để xe.

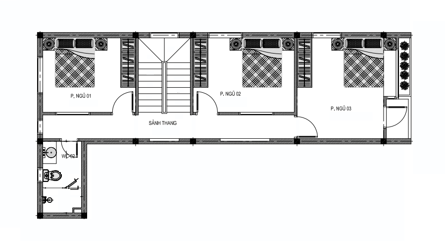
2.2. Tầng 2
Tầng 2: 3 Phòng ngủ, 1 WC.

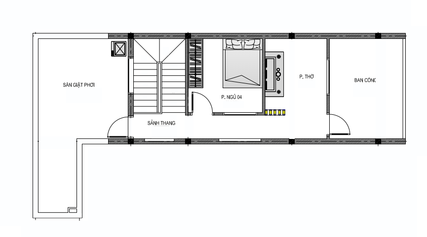
2.3. Tầng 3
Tầng 3: Phòng thờ, 1 Phòng ngủ, Sân giặt phơi.

3. Hình ảnh thi công thực tế
Mẫu nhà phố 3 tầng của gia đình anh Việt đang được thi công:




Tiến độ thi công được cập nhật đến ngày 4/7/2023:



Các bác đang có nhu cầu thiết kế, thi công và xây dựng nhà ở, thì đừng ngần ngại liên hệ cho Việt Home nhé!
