Mẫu nhà phố 3 tầng hiện đại - CĐT: Anh Trung, Hà Nội
1. Phối cảnh 3D mặt tiền
- Chủ đầu tư: Anh Trung
- Địa điểm xây dựng: Mê Linh, Hà Nội
- Công năng sử dụng
+ Tầng 1: Khách + Bếp , 1 Ngủ, 1 WC
+ Tầng 2: 1 Phòng ngủ master + 2 Ngủ thường + 1 WC
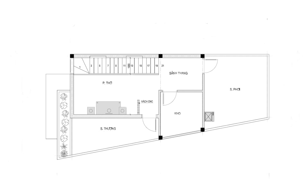
+ Tầng 3: Phòng thờ + Sân phơi

Sau khi thống nhất được công năng, đội ngũ kiến trúc sư tiến hành hoàn thiện chi tiết công trình để triển khai thi công mẫu thiết kế nhà ống 3 tầng đẹp. Chiêm ngưỡng phối cảnh 3D ngoại thất, có thể thấy rõ hình thức kiến trúc cân đối và vững chắc. Tầng 2 được bố trí ban công rộng, điều này cho phép đón ánh sáng và thoáng hơn cho căn nhà.
Sự kết hợp giữa diện tường trắng và các chi tiết kính tạo nên vẻ trang nhã, sang trọng và mở rộng không gian. Điểm nhấn đặc biệt là sự kết hợp giữa các khối hình kiến trúc hiện đại và màu sắc tinh tế tạo nên sự mạnh mẽ, trẻ trung.
Cửa kính lớn sử dụng cho toàn bộ không gian mặt tiền ngôi nhà thay thế những bức tường bê tông bí bách không chỉ đón ánh sáng mà còn mang lại sự thông thoáng và gần gũi với thiên nhiên.
2. Bố trí công năng sử dụng
2.1. Tầng 1
Khách + Bếp , 1 Ngủ, 1 WC

2.2. Tầng 2
1 Phòng ngủ master + 2 Ngủ thường + 1 WC

2.3. Tầng 3
Phòng thờ + Sân phơi

Sản phẩm của Việt Home được thiết kế theo định hướng công năng sử dụng, thẩm mỹ và chất lượng cao.
Đến với Việt Home, quý khách hàng luôn có được những sản phẩm và dịch vụ với chất lượng tốt nhất. Việt Home cam kết:
- Chất lượng sản phẩm ổn định nhất
- Giá thành hợp lý nhất
- Dịch vụ đầy đủ nhất
Việt Home tin rằng việc tạo dựng uy tín thông qua chất lượng sản phẩm, dịch vụ, đáp ứng được nhu cầu của khách hàng sẽ là nền tảng vững chắc cho sự phát triển của thương hiệu của mình.
Hãy đến với Việt Home để có được một không gian sống tuyệt vời nhất. Chúng tôi luôn sẵn sàng đáp ứng nhu cầu của bạn.
