Mẫu Nhà Phố 3 Tầng Hiện Đại - Giải Pháp Hoàn Hảo Cho Đô Thị - CĐT: MR Thiết - Lạng Sơn
1. Phối cảnh 3D mặt tiền
Chủ đầu tư: Anh Thiết
Địa điểm xây dựng: Lạng Sơn
Công năng sử dụng:
+ Tầng 1: Sân+ Phòng khách + Bếp + Phòng ngủ + WC
+ Tầng 2: Phòng ngủ master + 2 Phòng ngủ + WC
+ Tầng 3: Phòng thờ + Phòng ngủ + WC + Sân phơi
Mặt tiền của mẫu nhà phố 3 tầng này gây ấn tượng mạnh ngay từ cái nhìn đầu tiên nhờ sự kết hợp hài hòa giữa đường nét kiến trúc hiện đại và cách xử lý vật liệu tinh tế. Tổng thể công trình được thiết kế theo dạng hình khối vuông vức, vươn cao theo chiều đứng, giúp tối ưu diện tích mặt tiền hẹp đặc trưng của nhà phố nhưng vẫn tạo cảm giác bề thế và sang trọng.

Gam màu trắng chủ đạo mang lại sự thanh lịch, được nhấn nhá bằng mảng ốp đá xám chạy dọc từ tầng 1 lên tầng 3, tạo điểm nhấn mạnh mẽ và tăng chiều sâu cho công trình. Ở tầng trệt, khu vực gara được thiết kế rộng rãi với cửa cuốn kim loại hiện đại, phía trên là mái che phẳng vừa có tác dụng bảo vệ vừa tạo lớp chuyển tiếp mềm mại giữa các tầng. Lên đến tầng 2, hệ cửa kính lớn kết hợp khung nhôm tối màu giúp không gian bên trong luôn ngập tràn ánh sáng tự nhiên, đồng thời mở rộng tầm nhìn ra bên ngoài.
Ban công được thiết kế đơn giản với lan can kính trong suốt, điểm xuyết bồn cây xanh mang lại sự mềm mại, cân bằng với các đường nét cứng cáp của kiến trúc. Điểm đặc biệt nổi bật nằm ở khu vực trung tâm tầng 2 và tầng 3 với chi tiết vòm cong nhẹ nhàng, kết hợp cùng hệ đèn tường ánh sáng vàng tạo nên cảm giác ấm cúng và sang trọng vào ban đêm. Tầng 3 tiếp tục duy trì ngôn ngữ thiết kế đồng nhất với phần trần ốp gỗ, đèn âm trần và khoảng ban công rộng rãi, vừa là nơi thư giãn vừa giúp công trình “thoáng thở” hơn. Hai bên mặt tiền được bố trí cây xanh và khoảng lùi hợp lý, kết hợp với cảnh quan xung quanh tạo nên một tổng thể hài hòa, hiện đại nhưng vẫn gần gũi với thiên nhiên, mang lại giá trị thẩm mỹ cao và thể hiện rõ gu thẩm mỹ tinh tế của gia chủ.
2. Hình ảnh bố trí công năng
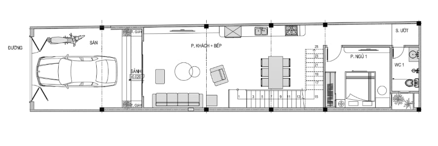
2.1. Tầng 1
+ Tầng 1: Sân+ Phòng khách + Bếp + Phòng ngủ + WC
.png?309)
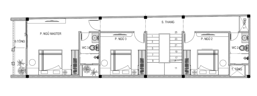
2.2. Tầng 2
+ Tầng 2: Phòng ngủ master + 2 Phòng ngủ + WC
.png?196)
2.3. Tầng 3
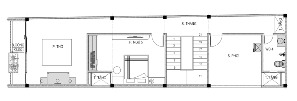
+ Tầng 3: Phòng thờ + Phòng ngủ + WC + Sân phơi
.png?557)
