Mẫu nhà phố 3 tầng hiện đại, sang trọng - Chủ đầu tư: Anh Nam, Hà Nội
Yêu thích một mẫu nhà phố 3 tầng hiện đại, phóng khoáng nên anh Nam, tại Hà Nội đã tìm đến các KTS của Việt Home để biến ước mơ thành hiện thực. Công trình của gia đình anh Nam là sự tổng hòa hoàn hảo giữa yếu tố thẩm mỹ, phong cách và sự tiện nghi.
1. Phối cảnh 3D mặt tiền
- Chủ đầu tư: Anh Nam
- Địa điểm xây dựng: Phúc Thọ, Hà Nội
- Tên công trình: Nhà phố 3 tầng hiện đại
- Diện tích: 4,1x21,5m
- Công năng sử dụng:
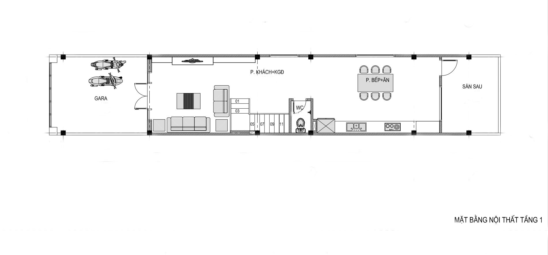
+ Tầng 1: Gara + Phòng khách + Phòng bếp + Sân sau
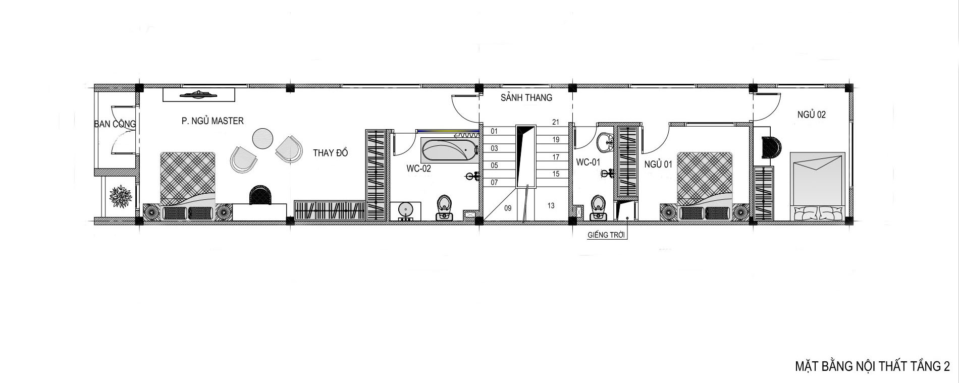
+ Tầng 2: Phòng ngủ master + 2 Phòng ngủ thường + 1WC + Ban công
+ Tầng 3: Phòng thờ + Phòng Karaoke + Sân thượng

Mẫu nhà phố 3 tầng hiện đại được các KTS của chúng tôi thiết kế theo lối kiến trúc khoáng đạt, cởi mở. Đây cũng chính là điểm nhấn khác biệt của dự án này so với những mô hình nhà phố khác.
Hướng đến một mẫu nhà phố 3 tầng hiện đại sang trọng, nhưng không vì thế mà làm cho công trình bị đơn điệu. Ngược lại, dù nhìn ở bất cứ góc độ nào, bạn cũng sẽ cảm nhận được sự nhẹ nhàng, bình dị, lại khá gần gũi.
Đó là vì các kiến trúc sư đã tận dụng nhiều yếu tố tự nhiên vào chính công trình này. Điển hình như, không gian căn nhà phố được phân bổ với sự hài hòa giữa ánh sáng, gió trời, cây cối, tiểu cảnh,…
Ngoài ra, các màu sắc được ứng dụng cũng mang đặc trưng của phong cách hiện đại. Cụ thể là những gam màu nhẹ nhàng, không quá khoa trương như sắc đen, sắc trắng, vàng nâu. Tuy nhiên, sự kết hợp này lại đủ để làm nổi bật, khiến cho mẫu nhà phố 3 tầng hiện đại trông đẹp mắt hơn rất nhiều.

Cách phân chia bố cục, lắp đặt nội thất hay tận dụng ánh sáng, không khí đều đảm bảo nâng cao chất lượng cuộc sống. Đây còn là yếu tố cốt lõi để tạo nên sự bền vững của công trình theo thời gian.
Tận dụng lợi thế vị trí đẹp và cảnh quan xung quanh rộng thoáng, chúng tôi đã chọn lựa hướng xây dựng phù hợp cho mẫu nhà phố 3 tầng hiện đại.
Mặt chính diện của công trình được thi công xây dựng không quá cầu kỳ. Thay vào đó, các kiến trúc sư tập trung vào các yếu tố đón nắng, thông gió. Ý đồ này giúp cho không gian nhà luôn được thoáng đãng, mát mẻ, kể cả trong những ngày hè oi bức.
Tại hành lang mỗi tầng, chúng tôi bố trí cây cảnh ở những góc phù hợp. Điều này nhằm tăng thêm sức sống, sự tươi mát cho căn nhà. Cây xanh giúp cân bằng đối lưu khí trong ngôi nhà, tạo cảm giác dễ chịu khi vào mùa khô nóng.
2. Hình ảnh bố trí công năng
2.1. Tầng 1

2.2. Tầng 2

2.3. Tầng 3

Nếu bạn mong muốn được tư vấn, hỗ trợ thêm về thiết kế công trình kiến trúc cũng như thiết kế nội thất cho công trình, vui lòng liên hệ với Việt Home. Chúng tôi tự tin mang đến cho gia đình bạn những mẫu nhà đẹp nhất.
