Mẫu nhà phố 3 tầng hiện đại tại Hưng Yên - Chủ đầu tư: Chị Nữ
1. Phối cảnh 3D mặt tiền
Chủ đầu tư: Chị Nữ
Địa điểm xây dựng: Hưng Yên
Công năng sử dụng:
+ Tầng 1: Phòng khách + 1 Phòng ngủ
+ Tầng 2: 2 Phòng ngủ + WC
+ Tầng 3: Phòng thờ + 1 Phòng ngủ + Sân Phơi + WC

Ngôi nhà gây ấn tượng ngay từ cái nhìn đầu tiên với bố cục hình khối vuông vức, mạnh mẽ. Gam màu trắng chủ đạo kết hợp cùng các mảng ốp gỗ và hệ kính cường lực tạo nên tổng thể hài hòa, hiện đại. Thiết kế ban công rộng ở các tầng không chỉ giúp mở rộng không gian mà còn tạo điểm nhấn thẩm mỹ rõ nét cho mặt tiền.
Một trong những điểm nổi bật của mẫu nhà này chính là việc bố trí cây xanh khéo léo ở các khu vực ban công và sân thượng. Những mảng xanh này giúp điều hòa không khí, giảm nhiệt và mang lại cảm giác thư giãn, gần gũi thiên nhiên. Đây là xu hướng thiết kế nhà ở được ưa chuộng trong những năm gần đây, đặc biệt tại các khu vực đô thị đông đúc.
Bên cạnh yếu tố thẩm mỹ, ngôi nhà còn được tối ưu về ánh sáng và thông gió tự nhiên. Hệ cửa kính lớn giúp ánh sáng dễ dàng lan tỏa khắp không gian bên trong, tạo cảm giác rộng rãi và thoáng đãng. Thiết kế mở giữa các khu vực chức năng giúp không khí lưu thông tốt, mang lại môi trường sống dễ chịu cho gia đình.

2. Hình ảnh bố trí công năng
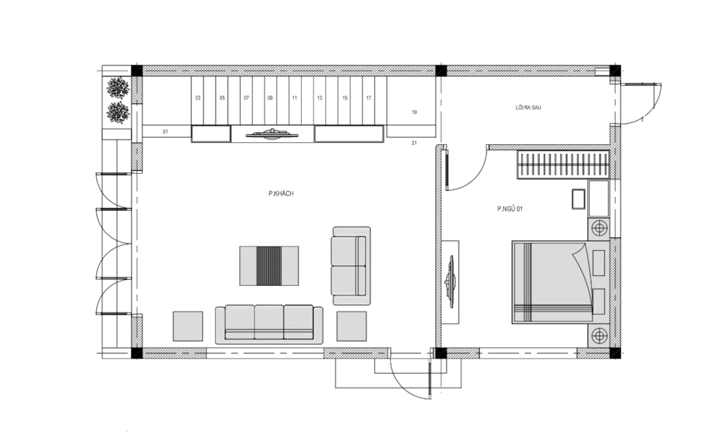
2.1. Tầng 1
Phòng khách + 1 Phòng ngủ
.png?677)
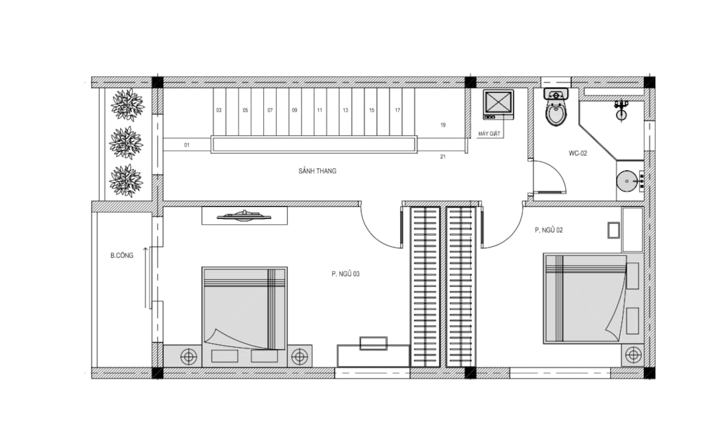
2.2. Tầng 2
2 Phòng ngủ + WC
.png?589)
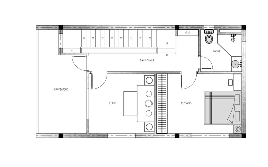
2.3. Tầng 3
Phòng thờ + 1 Phòng ngủ + Sân Phơi + WC
.png?26)
Tổng thể, mẫu nhà 3 tầng hiện đại là lựa chọn lý tưởng cho những ai yêu thích phong cách sống tối giản nhưng vẫn đề cao tính thẩm mỹ và tiện nghi. Sự kết hợp giữa kiến trúc hiện đại và không gian xanh mang lại một môi trường sống lý tưởng, bền vững theo thời gian.
