Mẫu nhà phố 3 tầng lệch hiện đại, sang trọng - Chủ đầu tư: Anh Xuyên, Bắc Ninh
Thời gian gần đây, thiết kế nhà phố 3 tầng lệch với phong cách hiện đại, sang trọng đang nhận được đánh giá cao của nhiều gia đình. Ngoại thất được xử lý linh hoạt bởi lối kiến trúc đơn giản nhưng vẫn tạo được hiệu ứng thẩm mỹ cao. Tận dụng tối đa các khoảng trống trên mặt tiền giúp cân bằng ánh sáng cho tổng thể không gian nội nhất góp phần tạo được ấn tượng ngay từ cái nhìn đầu tiên cho người đối diện. Lối kiến trúc thiết kế nhà tầng lệch tạo cho ngôi nhà phố hiện đại này một không gian sống linh hoạt, tiện nghi mà vô cùng nổi bật.
1. Phối cảnh 3D mặt tiền
- Chủ đầu tư: Anh Xuyên
- Địa điểm xây dựng: Bắc Ninh
- Tên công trình: Nhà phố 3 tầng lệch hiện đại
- Diện tích: 4,9X19,5M
- Công năng sử dụng:
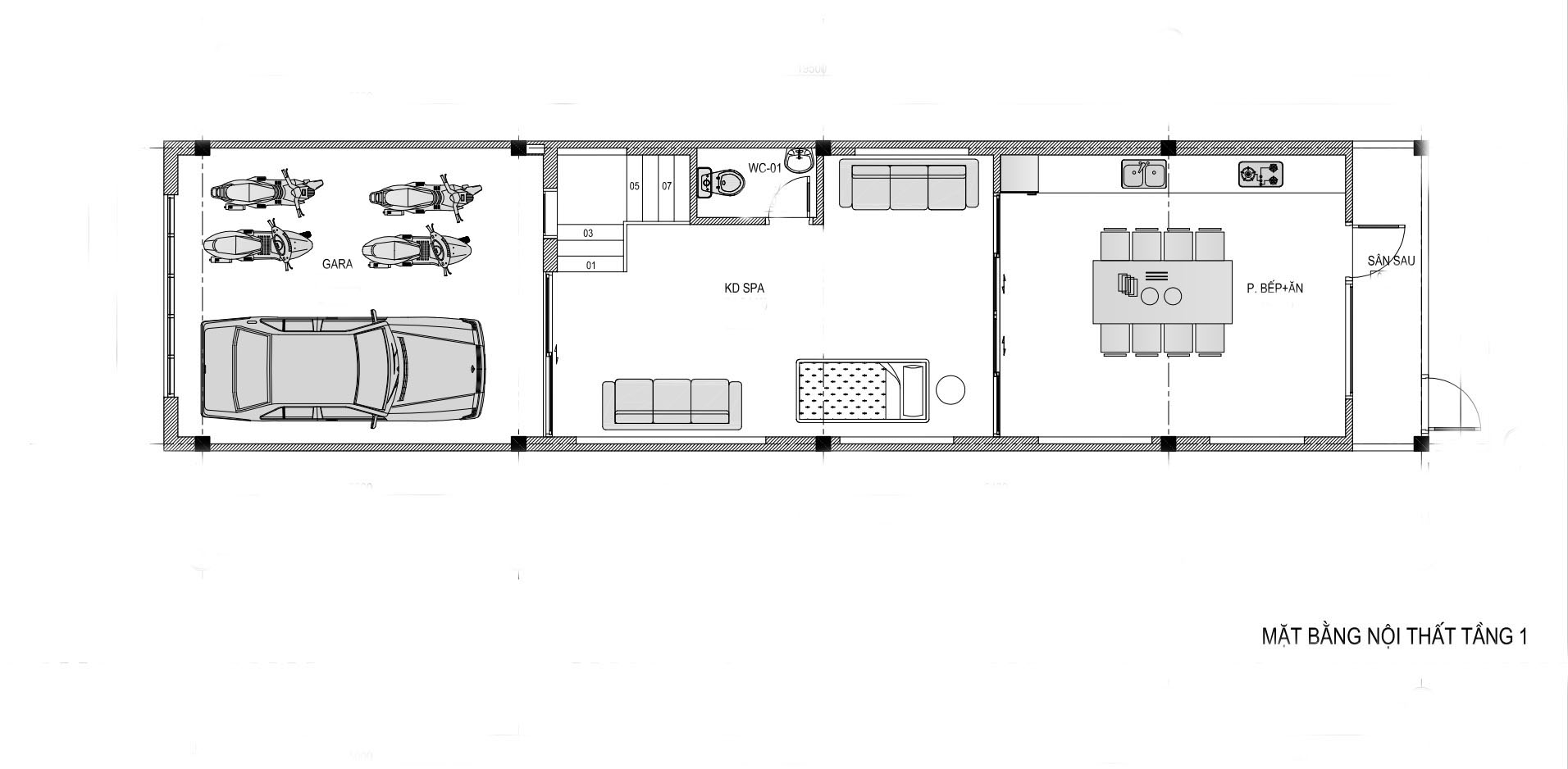
+ Tầng 1: Gara + Kinh doanh + Phòng bếp ăn + 1WC + Sân sau
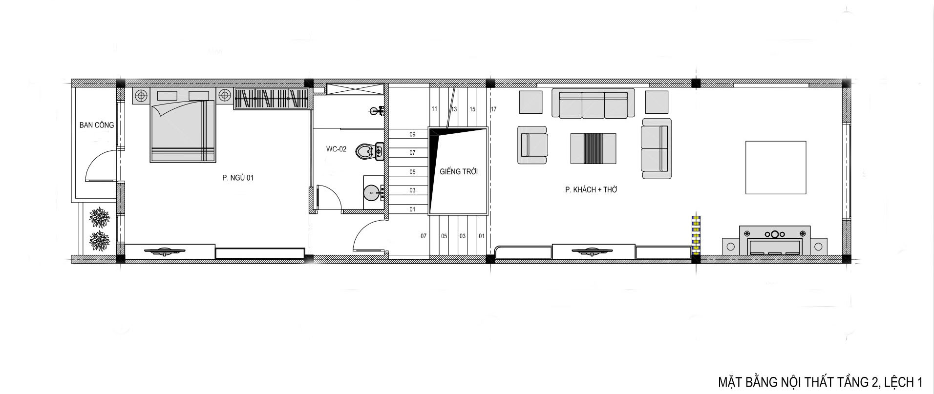
+ Tầng lệch 1 + Tầng 2: Phòng khách và thờ + 1 Phòng ngủ khép kín
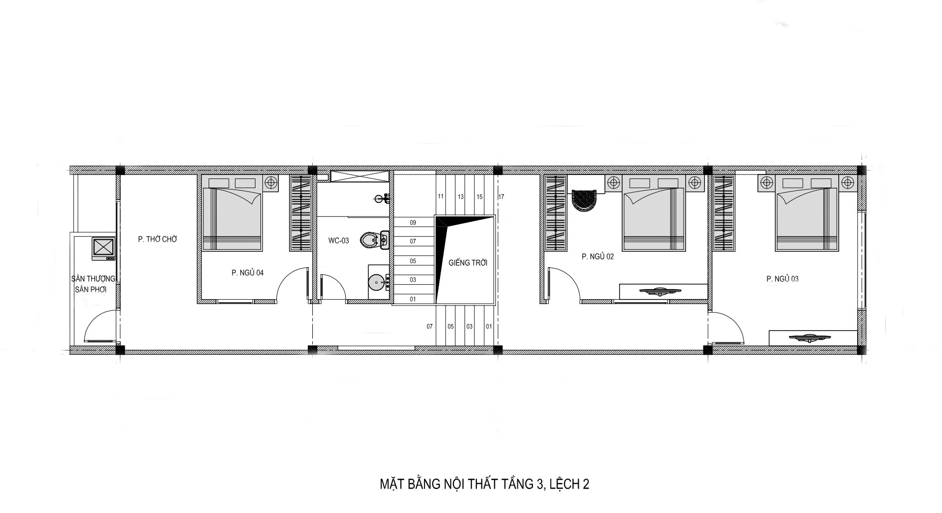
+ Tầng lệch 2 + Tầng 3: 3 Phòng ngủ + Phòng thờ chờ + 1WC

Với nhu cầu nhà ở kết hợp kinh doanh Spa của gia đình anh Xuyên tại Bắc Ninh, KTS của Việt Home đưa ra phương án thiết kế nhà tầng lệch là phù hợp nhất với công năng sử dụng của gia đình.
Mẫu nhà phố lệch 3 tầng được xem là một trong những mẫu thiết kế được ưa chuộng hàng đầu hiện nay. Không chỉ là bước phát triển mới, mang nhiều đột phá của kiến trúc mà còn rất phù hợp với những gia đình hiện đại, sinh sống tại các thành phố lớn hạn chế về mặt diện tích.Thiết kế nhà phố lệch tầng mang đến một không gian thoáng đãng, tận dụng tối đa ánh sáng tự nhiên vào mọi ngóc ngách trong nhà. Với một người tư duy cao, yêu thích sự tự do và lãng mạn như anh Xuyên thì mẫu thiết kế này được xem là hoàn hảo hơn cả.

Một không gian rộng rãi, thông thoáng dù diện tích đất khiêm tốn là những điều bất cứ ai cũng có thể cảm nhận được về ngôi nhà phố này. Ngoại thất nổi bật với gạch ốp đá sang trọng và hệ thống cửa kính cường lực chắc chắn. Việc tận dụng ánh sáng tự nhiên vào nhà giúp không gian trở nên đẹp và hiện đại hơn rất nhiều.
Từ xa nhìn lại, ngôi nhà phố 3 tầng của anh Xuyên hiện lên thật nguy nga, diễm lệ với sắc trắng tinh khôi. Dù bất cứ ở vị trí nào, người nhìn cũng thấy sự khác lạ mà không gian mang tới. Giúp ngôi nhà trở nên rộng hơn, những khe thoát cửa tạo nên sự gần gũi với thiên nhiên.
2. Hình ảnh bố trí công năng
2.1. Tầng 1

2.2. Tầng lệch 1 và tầng 2

2.3. Tầng lệch 2 và tầng 3

Cần tư vấn thiết kế và xây dựng hãy liên hệ với chúng tôi ngay nhé!!!
