Mẫu nhà phố 3 tầng tân cổ điển đẹp, hiện đại - Chủ đầu tư: Anh Tùng, Hải Phòng
Thiết kế nhà phố 3 tầng mặt tiền 5m tân cổ điển đẹp sang trọng mang đến cho phố phường một làn gió mới. Ngôi nhà phố 3 tầng nổi bật trên nền trắng trang nhã, thể hiện rõ nét những chi tiết hoa văn - phào chỉ một cách tinh tế. Bên cạnh đó: mẫu thiết kế nhà còn mang vẻ đẹp hoài cổ, kết hợp giữa kiến trúc cổ và nét trẻ trung, tươi mới của kiến trúc hiện đại, cho ngôi nhà mang nét đẹp truyền thống mà tiện nghi, bền vững theo thời gian .
Dưới đây là mẫu nhà của gia đình anh Tùng tại Hải Phòng, các bác hãy cùng Việt Home ngắm nhìn ngôi nhà nhé!
1. Phối cảnh 3D mặt tiền
Chủ đầu tư: Anh Tùng
- Địa điểm xây dựng: Hải Phòng.
- Công năng sử dụng:
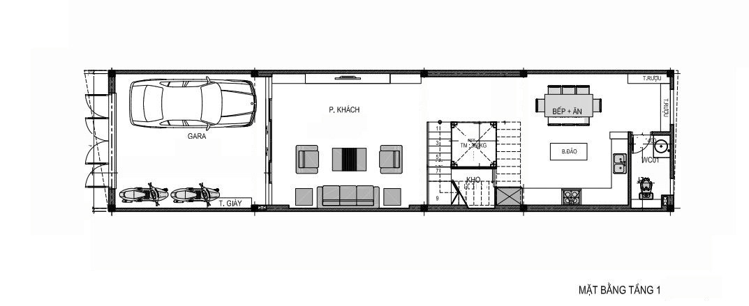
+ Tầng 1: Gara, Phòng khách, Phòng Bếp + Ăn, Kho, WC.
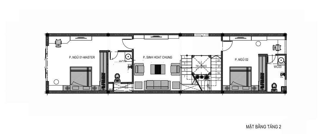
+ Tầng 2: Phòng ngủ Master, Phòng ngủ khép kín, Phòng SHC.
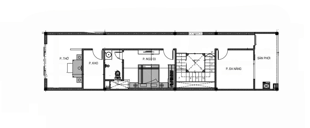
+ Tầng 3: Phòng Thờ, Phòng ngủ khép kín, Phòng đa năng, Kho, Sân phơi.

Phong cách tân cổ điển ra đời từ giữa thế kỷ 18, là sự kết hợp, hòa trộn những tinh hoa của phong cách cổ điển và phong cách hiện đại. Với vẻ bề ngoài vẫn giữ được những giá trị tinh hoa vốn có của phong cách cổ điển cộng thêm sự cách tân, lược bỏ những chi tiết hoa văn cầu kỳ, mang đến sự thanh thoát vừa hiện đại vừa cổ kính.
Trong khi đó, nhà ống luôn là sự lựa chọn ưu tiên cho những căn nhà phố với mặt tiền hẹp. Những căn nhà ống tân cổ điển luôn là một điểm nổi bật bởi vẻ bề ngoài khác lạ, sang trọng trong từng thiết kế. Nhà ống tân cổ điển 3 tầng được các gia chủ lựa chọn xây dựng rất nhiều không chỉ vì độ cao vừa phải mà còn bởi sự nổi bật của vẻ bề ngoài luôn được cải tiến theo thời gian.

Nhà ống 3 tầng phong cách tân cổ điển thường sử dụng những vật liệu cao cấp khi thi công xây dựng. Bên cạnh những loại vật liệu như xi măng, sắt, thép, cát, đá thông thường, khi trang trí cho ngoại thất thường là lựa chọn các loại gạch men, đá granite cao cấp.
Mẫu nhà ống không quá cầu kì nhưng để lại ấn tượng bởi sự tối giản và tinh tế. Thiết kế phù hợp với những gia đình thích phong cách tân cổ điển nhưng không muốn có nhiều họa tiết rườm rà cho căn nhà của mình. Sự nhẹ nhàng cùng những đường cong đơn giản, những chi tiết khắc điệu tinh xảo đầy gợi cảm của tay vịn ban công.
Mang vẻ ngoài nổi bật với tông màu trắng thanh lịch và sang trọng, chú trọng vào các chi tiết mái và phần ban công đậm phong cách châu Âu. Mẫu thiết kế được chăm chút tỉ mỉ và hoàn toàn đảm bảo mọi yêu cầu trong phong thủy để hoàn thành 1 tổ ấm an toàn và hòa hợp nhất cho chủ nhà.
2. Công năng sử dụng
2.1. Tầng 1
Tầng 1: Gara, Phòng khách, Phòng Bếp + Ăn, Kho, WC.

2.2. Tầng 2
Tầng 2: Phòng ngủ Master, Phòng ngủ khép kín, Phòng SHC.

2.3. Tầng 3
Tầng 3: Phòng Thờ, Phòng ngủ khép kín, Phòng đa năng, Kho, Sân phơi.

3. Hình ảnh giám sát công trình thực tế



Nếu các bác thích mẫu nhà phố như bên em vừa giới thiệu thì hãy nhắn tin hoặc gọi điện thoại trực tiếp cho Việt Home để được tư vấn nhé!
