Mẫu nhà phố 3 tầng tân cổ điển đẹp sang trọng tại Bắc Ninh - CĐT: Anh Trọng
1. Phối cảnh 3D mặt tiền
- Chủ đầu tư: Anh Trọng
- Địa điểm xây dựng: Bắc Ninh
- Công năng sử dụng:
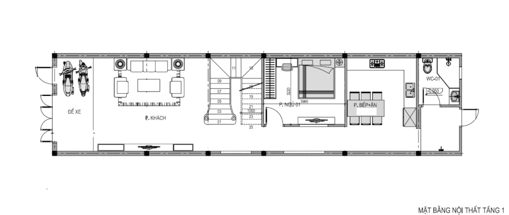
+ Tầng 1: Sân để xe + Phòng khách + 1 Phòng ngủ + Phòng bếp + WC
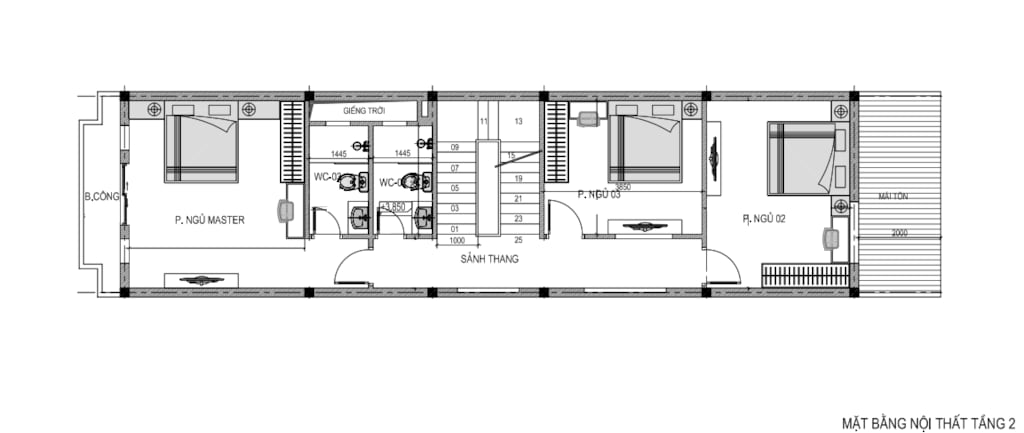
+ Tầng 2: 1 Phòng ngủ master + 2 Phòng ngủ thường + 1 WC
+ Tầng 3: Phòng thờ + sân phơi

Ngôi nhà sở hữu mặt tiền cân đối, bề thế với các đường phào chỉ nhẹ nhàng, tinh tế – đặc trưng của phong cách tân cổ điển. Gam màu trắng chủ đạo giúp công trình luôn nổi bật, tạo cảm giác thanh lịch, sang trọng nhưng không quá cầu kỳ.
Các tầng trên được bố trí ban công rộng rãi, sử dụng lan can sắt nghệ thuật sơn đen cao cấp, tạo điểm nhấn tương phản tinh tế với màu sơn trắng. Gia chủ tận dụng ban công để trồng cây xanh, giúp không gian sống trở nên gần gũi thiên nhiên, tăng khả năng thông gió và lấy sáng tự nhiên.
Tầng 1 được thiết kế nổi bật với hệ cửa lớn khung kim loại kết hợp kính, mang lại sự chắc chắn và an toàn. Phần ốp đá tự nhiên màu vàng kem giúp mặt tiền thêm phần sang trọng.

2. Công năng sử dụng
2.1. Tầng 1
Sân để xe + Phòng khách + 1 Phòng ngủ + Phòng bếp + WC
.png?136)
2.2. Tầng 2
1 Phòng ngủ master + 2 Phòng ngủ thường + 1 WC
.png?306)
2.3. Tầng 3
Phòng thờ + sân phơi
.png?435)
