Mẫu Nhà Phố 3 Tầng Tân Cổ Điển Sang Trọng - Vẻ Đẹp Đẳng Cấp Giữa Lòng Đô Thị - CĐT: Mr Tiến - Phú Thọ
1. Phối cảnh 3D mặt tiền
- Chủ đầu tư: Anh Tiến
- Địa điểm xây dựng: Hưng Yên
- Công năng sử dụng:
+ Tầng 1: Sân để xe + Phòng khách + Phòng bếp + WC
+ Tầng 2: 2 Phòng ngủ thường + 1 WC
+ Tầng 3: Phòng thờ + 2 Phòng ngủ thường + 1 WC
+ Tầng tum: Sân thượng + Sân phơi

Mặt tiền của mẫu nhà phố 3 tầng tân cổ điển này toát lên vẻ đẹp sang trọng và bề thế ngay từ cái nhìn đầu tiên, nhờ sự kết hợp hài hòa giữa tỷ lệ kiến trúc chuẩn mực và các chi tiết trang trí tinh xảo. Toàn bộ công trình sử dụng gam màu trắng chủ đạo, tạo cảm giác thanh lịch, tinh khiết và làm nổi bật các đường nét phào chỉ được đắp nổi công phu. Điểm nhấn ấn tượng nhất là hệ cột trụ lớn chạy dọc từ tầng hai lên tầng ba, được thiết kế theo dạng cột Ionic với các rãnh sọc đều đặn, mang lại cảm giác vững chãi và cao ráo cho ngôi nhà. Phía trên là phần mái trang trí với hoa văn phù điêu tinh tế, tạo nên một “vương miện” kiến trúc đậm chất châu Âu cổ điển. Các ban công được bố trí cân đối ở từng tầng, sử dụng lan can sắt sơn đen với họa tiết đơn giản nhưng sắc nét, vừa đảm bảo an toàn vừa tăng tính thẩm mỹ.
Hệ cửa kính lớn kết hợp khung tối màu giúp tận dụng tối đa ánh sáng tự nhiên, đồng thời tạo sự tương phản nhẹ nhàng với nền trắng chủ đạo. Tầng trệt được ốp đá tối màu, mang lại cảm giác chắc chắn và sạch sẽ, kết hợp cùng cửa cổng sắt thiết kế kín đáo nhưng hiện đại, đảm bảo tính riêng tư và an ninh. Đặc biệt, khu vực sân thượng được thiết kế mở với mái kính và khung kim loại, tạo nên không gian thư giãn thoáng đãng, có thể bố trí cây xanh và tiểu cảnh, vừa tăng giá trị sử dụng vừa làm mềm mại tổng thể kiến trúc. Dưới ánh sáng vàng ấm áp từ bên trong hắt ra qua lớp kính, ngôi nhà trở nên nổi bật giữa khung cảnh xung quanh, mang lại cảm giác ấm cúng, đẳng cấp và thể hiện rõ gu thẩm mỹ tinh tế của gia chủ.

2. Công năng sử dụng
2.1. Tầng 1
+ Tầng 1: Sân để xe + Phòng khách + Phòng bếp + WC
.png?915)
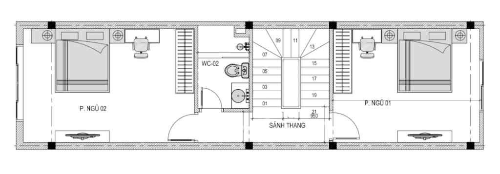
2.2. Tầng 2
+ Tầng 2: 2 Phòng ngủ thường + 1 WC
.png?951)
2.3. Tầng 3
+ Tầng 3: Phòng thờ + 2 Phòng ngủ thường + 1 WC
.png?940)
2.4. Tầng tum
+ Tầng tum: Sân thượng + Sân phơi
.png?454)
