Mẫu nhà phố 3 tầng tiện nghi cho gia đình trẻ
Hiện nay, nhiều gia đình lựa chọn mua đất và sân nhà tại thành phố, tỉnh để thuận tiện trong công việc. Bởi vậy, việc sở hữu nhiều lô đất mặt tiền 4 - 5 mét là vô cùng nhiều nên nhu cầu thiết kế nhà phố lớn.
1. Mặt tiền nhà phố 3 tầng hiện đại
Nhà phố 3 tầng với sự phá vỡ những nguyên tắc thiết kế cân đối và chuẩn mực của kiến trúc truyền thống, với những nét vẽ lôi cuốn và tự do phù hợp với tính cách và sở thích của những người trẻ tuổi.

Khối ban công tầng 2 lệch ra ngoài so với tầng 1 và tầng 3 mang đến sự khác biệt, khiến khách qua đường dù đứng gần hay xa vẫn cảm thấy bị thu hút. gần 1.5m. Cửa gỗ lá sách cùng với tiểu cảnh xanh mát, tạo nên hiệu ứng cuốn hút, tinh tế và đầy sức hút cho mẫu thiết kế công trình.
Để thuận thiện cho việc sử dụng, kiến trúc sư thiết kế nhà phố 3 tầng lắp đặt hệ thống cửa cuốn điện tử ở cổng, tiếp đến là lớp cửa gỗ vừa đảm bảo tính thẩm mĩ, vừa đảm bảo công năng sử dụng.
Thay vì để trống, bên dưới mái ban công các tầng, kiến trúc sư đều sử dụng lam gỗ, đồng bộ với màu sắc của cửa gỗ, đem đến sức cuốn hút mạnh mẽ cho không gian thiết kế.
Ngoại thất được ưu tiên sử dụng gam màu sáng, nhấn nhá bằng các loại đèn tường, cây xanh tạo chiều sâu nhưng vẫn không thiếu sự tươi mới, trẻ trung khiến chủ đầu tư hết sức hài lòng.
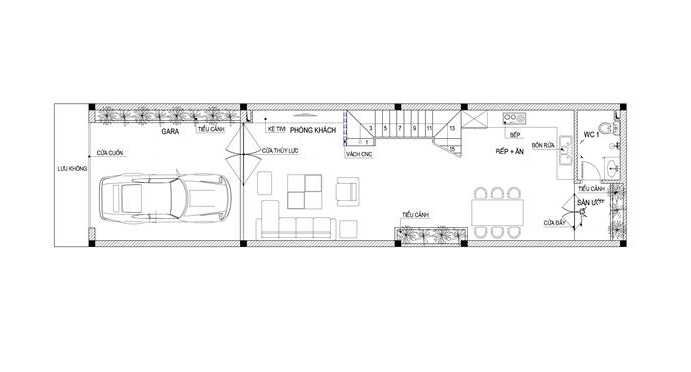
2. Bố trí công năng các tầng
Khoảng mặt tiền công trình thiết kế khá hiện đại nhưng vẫn có điểm nhấn với chiều sâu và sức hút lớn. Bên cạnh đó thiết kế nhà phố hiện đại còn ghi điểm nhờ cách sắp xếp mặt bằng công năng tiện nghi, phù hợp với lối sống của những gia đình trẻ bận rộn.

Phòng khách, nhà bếp và phòng ăn sắp xếp khoa học. Tiểu cảnh và nhà tắm đặt bên ngoài nhằm tránh mùi uế khí.

Ở khu vực tầng 2 kiến trúc sư sắp xếp một phòng ngủ master rộng dành cho vợ chồng gia chủ. Phòng ngủ của hai con đặt bên cạnh để bố mẹ tiện chăm sóc các bé. Đồng thời bên trong mỗi phòng cũng có nhà vệ sinh và phòng tắm riêng nhằm để các bé tập đức tính tự lập.

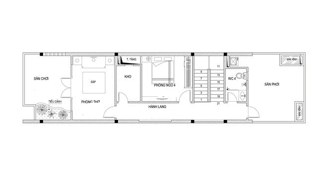
Tầng 3 gồm một phòng thờ rộng, nhà kho và phòng ngủ nhỏ dành cho khách đến nghỉ lại. Những lúc không có khách, căn phòng này trở thành sân chơi dành cho các bé.
3. Thiết kế nội thất nhà phố 3 tầng
Kiến trúc sư đã căn cứ trên tổng thể nhu cầu, điều kiện thực tế và điều kiện đầu tư để đưa ra phương án thiết kế nhà để xe hợp lý.
Vì gia đình có con nhỏ nên việc tính toán các khoảng cách, cự ly cũng như các chi tiết xuất hiện như bàn, ghế sofa, kệ tivi, kệ trang trí, được tính toán một cách chi tiết và cẩn thận.


Không gian nhà chạy dọc dài theo hình chữ nhật, việc cân bằng và làm tổng thể căn phòng trở nên đẹp mắt hơn không chỉ phụ thuộc vào kiểu dáng nội thất, nó còn phụ thuộc vào màu sắc và vị trí bài trí đồ đạc.

Phòng ngủ cậu con trai được sắp xếp theo sở thích của bé, qua đó cũng cho thấy sự đầu tư bài bản của bậc làm cha làm mẹ.

Phòng ngủ cô con gái nương theo sắc hồng dễ thương cùng với màn che làm từ vương miện công chúa.

Nhà vệ sinh hiện đại, thông thoáng

Mỗi gia đình sẽ có diện tích và nhu cầu sử dụng khác nhau. Bởi vậy, để có tổ ấm hoàn hảo nhất, bạn nên chuẩn bị kỹ lưỡng phần thiết kế. Trong quá trình thiết kế, kiến trúc sư sẽ trao đổi và đưa ra những ý tưởng phù hợp nhất để ngôi nhà trở nên hiện đại, sang trọng và tiết kiệm.
