Mẫu nhà phố 4 tầng hiện đại - Chủ đầu tư: Anh Phách, Hà Nội
1. Phối cảnh 3D mặt tiền
Chủ đầu tư: Anh Phách
- Địa điểm xây dựng: Hoài Đức, Hà Nội
- Công năng sử dụng:
+ Tầng 1: Sân để xe + Phòng khách + Phòng bếp + WC
+ Tầng 2: 2 Phòng ngủ + WC
+ Tầng 3: Phòng thờ + 1 Phòng ngủ
+ Tầng 4: Sân chơi + Sân phơi
.jpg?513)
Ngay từ ánh nhìn đầu tiên, công trình đã gây ấn tượng mạnh nhờ sự kết hợp khéo léo giữa hình khối vuông vắn, đường nét kiến trúc mạch lạc cùng bảng màu trang nhã.
Một trong những điểm nhấn ấn tượng của ngôi nhà là hệ thống cửa kính lớn được bố trí xuyên suốt các tầng. Những tấm kính cường lực kết hợp khung nhôm sơn tĩnh điện màu đen không chỉ mang lại khả năng lấy sáng tối đa, giúp không gian nội thất luôn tràn ngập ánh sáng tự nhiên, mà còn mở rộng tầm nhìn ra bên ngoài, tạo sự kết nối hài hòa giữa trong và ngoài nhà.

Nhờ lối thiết kế mở, ánh sáng tự nhiên và gió trời dễ dàng lưu thông, lan tỏa đến từng ngóc ngách, mang đến sự thoáng đãng và nguồn năng lượng tích cực cho không gian sống. Đồng thời, giải pháp này còn giúp tiết kiệm điện năng, góp phần xây dựng lối sống xanh, thân thiện với môi trường.
2. Công năng sử dụng
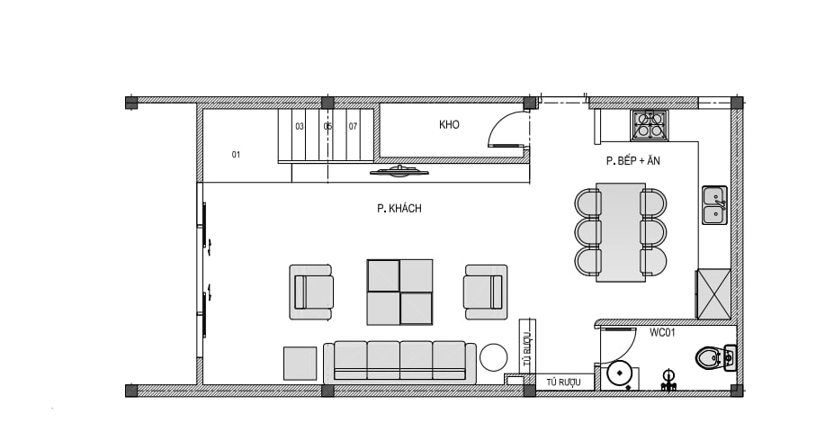
2.1. Tầng 1
Sân để xe + Phòng khách + Phòng bếp + WC
.png?525)
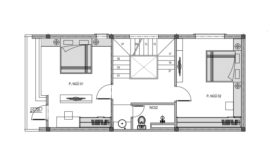
2.2. Tầng 2
2 Phòng ngủ + WC
.png?98)
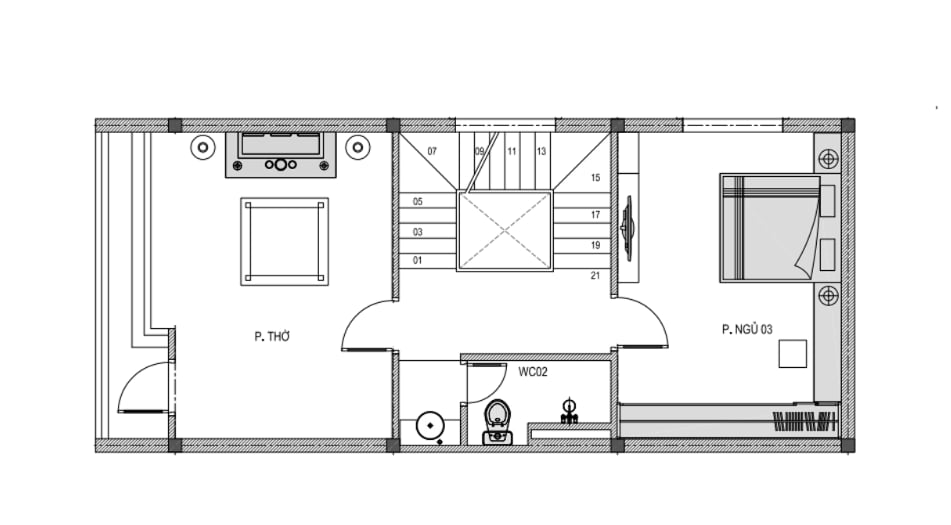
2.3. Tầng 3
Phòng thờ + 1 Phòng ngủ
.png?341)
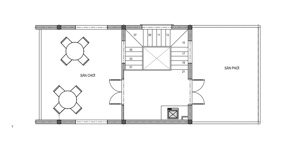
2.4. Tầng 4
Phòng thờ + 3pn + WC + Sân phơi
.png?882)
3. Hình ảnh thi công thực tế
.png?950)
.png?717)
.png?377)
.png?168)
