Mẫu Nhà Phố Hiện Đại, Giải Pháp Không Gian Sống Đẳng Cấp Tại Đô Thị - CĐT: Chị Yến, Bắc Giang
1. Phối cảnh 3D mặt tiền
Chủ đầu tư: Chị Yến
Địa điểm xây dựng: Bắc Giang
Công năng sử dụng:
+ Tầng 1: Gara + Phòng khách
+ Gác lửng: Bếp ăn
+ Tầng 2: 2 Phòng ngủ master
+ Tầng 3: Phòng đọc sách + 2 Phòng ngủ + WC
+ Tầng 4: Phòng thờ + Sân phơi

Mẫu nhà phố 5 tầng hiện đại trong hình là giải pháp kiến trúc tối ưu dành cho khu đất đô thị có mặt tiền hạn chế nhưng yêu cầu cao về công năng và thẩm mỹ. Tổng thể công trình gây ấn tượng mạnh với phong cách hiện đại, hình khối vuông vức, đường nét dứt khoát kết hợp hài hòa giữa các mảng đặc – rỗng, tạo cảm giác cao ráo, bề thế nhưng vẫn thanh thoát.
Mặt tiền sử dụng các vật liệu hiện đại như kính cường lực, đá ốp cao cấp, lam trang trí giả gỗ cùng hệ thống đèn chiếu sáng tinh tế, giúp ngôi nhà nổi bật cả ban ngày lẫn ban đêm. Các ban công được bố trí cây xanh hợp lý, vừa tăng tính thẩm mỹ vừa mang lại không gian sống gần gũi thiên nhiên, giảm cảm giác bí bách thường thấy ở nhà phố cao tầng.
Bên trong, công năng được sắp xếp khoa học, linh hoạt, phù hợp cho nhu cầu ở kết hợp kinh doanh hoặc sinh hoạt của gia đình nhiều thế hệ; các không gian đều được tính toán kỹ lưỡng để đảm bảo thông thoáng, đón ánh sáng tự nhiên và tối ưu trải nghiệm sử dụng.
2. Hình ảnh bố trí công năng
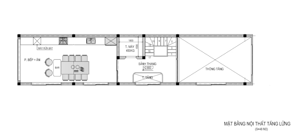
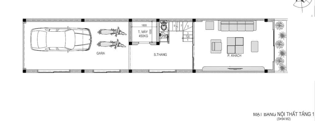
2.1. Tầng 1 + Gác lửng
Gara + Phòng khách
.png?912)
Gác lửng: Bếp ăn
.png?842)
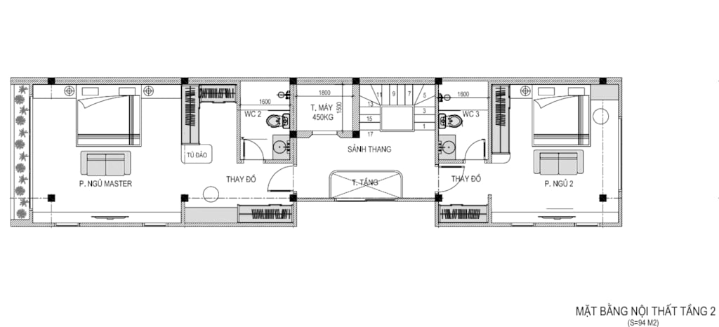
2.2. Tầng 2
2 Phòng ngủ master
.png?751)
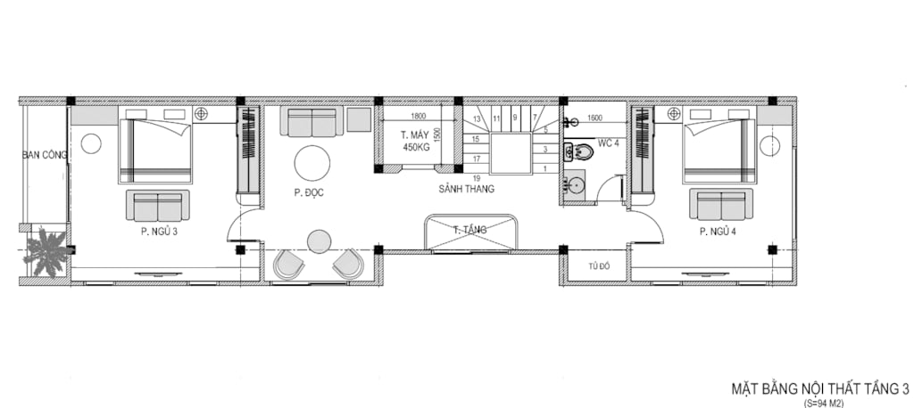
2.3. Tầng 3
Phòng đọc sách + 2 Phòng ngủ + WC
.png?675)
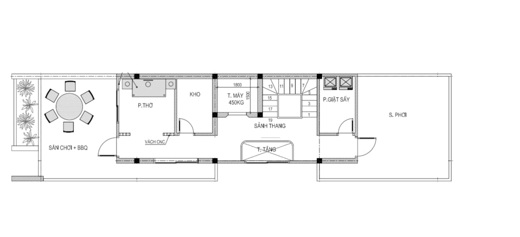
2.4. Tầng 4
Phòng thờ + Sân phơi
.png?93)
