Mẫu Nhà Phố Hiện Đại 4 Tầng Kết Hợp Không Gian Xanh Tại Hà Nội - CĐT: Mr Phước
1. Phối cảnh 3D mặt tiền
Chủ đầu tư: Anh Phước
Địa điểm xây dựng: An Khánh, Hà Nội
Công năng sử dụng:
+ Tầng 1: Phòng ngủ + Bếp ăn + WC
+ Tầng 2: 2 Phòng ngủ + WC
+ Tầng 3: Phòng SHC + Phòng ngủ + WC
+ Tầng 4: 2 Phòng ngủ + WC

Mặt tiền của mẫu nhà phố này là một tổng thể kiến trúc được chăm chút tỉ mỉ đến từng chi tiết, toát lên vẻ đẹp hiện đại, sang trọng nhưng vẫn giữ được sự hài hòa với không gian đô thị xung quanh. Ngay từ bố cục hình khối, công trình đã tạo ấn tượng mạnh với các khối hộp vuông vức xếp chồng một cách có chủ ý, tạo nên chiều sâu và sự chuyển động thị giác rất cuốn hút. Tông màu trắng chủ đạo được sử dụng như một lớp nền tinh khiết, làm nổi bật các mảng ốp xám đậm mang lại cảm giác vững chãi, đồng thời kết hợp cùng các chi tiết ốp màu nâu ấm ở phần khung viền, giúp cân bằng giữa sự hiện đại và cảm giác gần gũi, ấm áp. Những đường chỉ đứng chạy dọc mặt tiền không chỉ tạo hiệu ứng kéo dài chiều cao công trình mà còn góp phần làm tăng nét thanh thoát, nhẹ nhàng cho tổng thể.
Hệ thống cửa kính lớn được bố trí xuyên suốt các tầng chính là một điểm nhấn đắt giá, vừa mở rộng tầm nhìn, vừa giúp không gian bên trong luôn ngập tràn ánh sáng tự nhiên. Lớp kính trong suốt kết hợp với khung nhôm tối màu tạo nên sự tương phản tinh tế, làm nổi bật các mảng hình học của công trình. Vào ban ngày, ánh sáng phản chiếu trên bề mặt kính khiến mặt tiền trở nên sinh động, thay đổi theo từng thời điểm; còn khi đêm xuống, ánh đèn vàng ấm áp từ bên trong tỏa ra, biến ngôi nhà thành một điểm sáng nổi bật, mang lại cảm giác ấm cúng và đầy sức sống giữa phố xá.

Không dừng lại ở đó, khu vực ban công và sân thượng được thiết kế mở với lan can kính và giàn pergola phía trên, nơi những dây cây xanh leo phủ nhẹ, tạo nên một lớp “mềm hóa” hoàn hảo cho các khối kiến trúc cứng cáp. Mảng xanh này không chỉ có giá trị thẩm mỹ mà còn giúp điều hòa vi khí hậu, mang thiên nhiên len lỏi vào từng góc nhỏ của ngôi nhà. Sự kết hợp giữa cây xanh, ánh sáng và vật liệu hiện đại đã tạo nên một mặt tiền vừa thoáng đãng, vừa có chiều sâu, thể hiện rõ xu hướng sống xanh đang được ưa chuộng.
Phần tầng trệt được thiết kế kín đáo nhưng vẫn đảm bảo sự thông thoáng, với hệ cửa và lối vào được bố trí hợp lý, tạo cảm giác chào đón mà không làm mất đi sự riêng tư cần thiết. Các chi tiết như bậc tam cấp, viền cửa hay mảng tường trang trí đều được xử lý gọn gàng, sắc nét, thể hiện sự đầu tư kỹ lưỡng trong từng đường nét thiết kế. Khi nhìn tổng thể, mặt tiền không chỉ là “bộ mặt” của ngôi nhà mà còn là sự thể hiện rõ nét phong cách sống hiện đại, gu thẩm mỹ tinh tế và sự cân bằng hoàn hảo giữa công năng và nghệ thuật kiến trúc.
2. Hình ảnh bố trí công năng
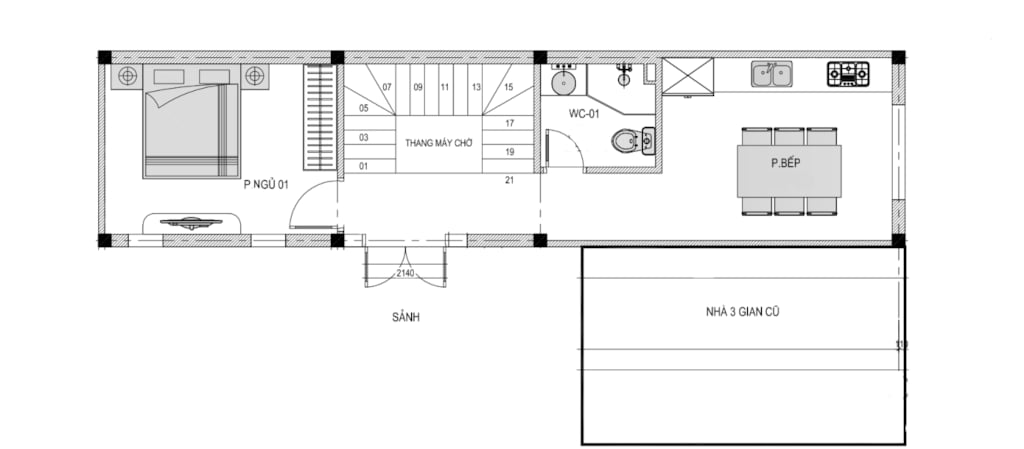
2.1. Tầng 1
+ Tầng 1: Phòng ngủ + Bếp ăn + WC
.png?662)
2.2. Tầng 2
+ Tầng 2: 2 Phòng ngủ + WC
.png?977)
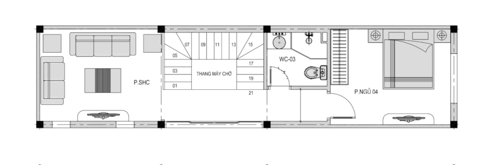
2.3. Tầng 3
+ Tầng 3: Phòng SHC + Phòng ngủ + WC
.png?779)
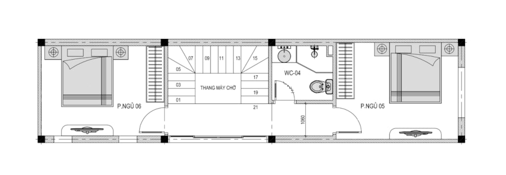
2.4. Tầng 4
+ Tầng 4: 2 Phòng ngủ + WC
.png?276)
