Mẫu nhà phố hiện đại kết hợp không gian xanh tại Hà Nội - CĐT: Chị Xuân
1. Phối cảnh 3D mặt tiền
- Chủ đầu tư: Chị Xuân
- Địa điểm xây dựng: Hà Nội
- Công năng sử dụng:
+ Tầng 1: Sân để xe + Phòng khách, thờ và nấu ăn + WC
+ Tầng 2 - 5 : 1 Phòng ngủ + WC + Khu nấu ăn
+ Tầng 6: Sân phơi

Ngôi nhà được thiết kế theo phong cách hiện đại tối giản, hình khối vuông vắn, đường nét mạch lạc, tập trung vào công năng và ánh sáng tự nhiên. Gam màu trắng chủ đạo kết hợp cùng mảng nhấn xám đậm tạo nên sự tương phản tinh tế, giúp công trình nổi bật giữa khu phố đông đúc.
Điểm nhấn đặc biệt của mẫu nhà này chính là hệ thống cây xanh bố trí liên tục từ các tầng đến sân thượng. Mỗi ban công đều được trồng cây, hoa và tiểu cảnh, giúp điều hòa không khí, giảm bức xạ nhiệt và mang lại cảm giác thư giãn cho gia chủ. Phần sân thượng được thiết kế như một khu vườn nhỏ trên cao, vừa là nơi nghỉ ngơi, vừa nâng cao chất lượng sống cho các thành viên trong gia đình.
2. Hình ảnh bố trí công năng
2.1. Tầng 1
Sân để xe + Phòng khách, thờ và nấu ăn + WC
.png?242)
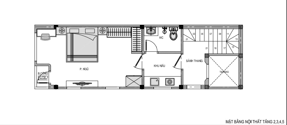
2.2. Tầng 2 - 5
1 Phòng ngủ + WC + Khu nấu ăn
.png?652)
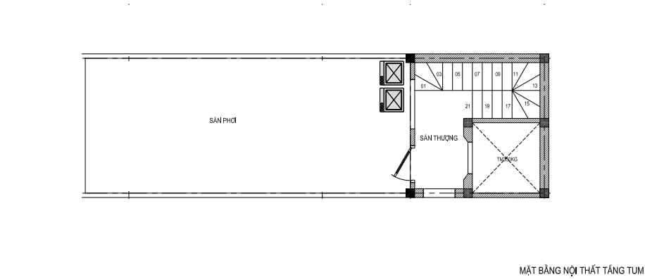
2.3. Tầng 6
+ Tầng 6: Sân phơi
.png?754)
