Mẫu Nhà Phố Tân Cổ 5 Tầng Kết Hợp Kinh Doanh - Sang Trọng, Tinh Tế Và Đầy Cuốn Hút - CĐT: Mr Dương - Hà Nội
1. Phối cảnh 3D mặt tiền
- Chủ đầu tư: Anh Dương
- Địa điểm xây dựng: Hà Nội
- Tên công trình: Nhà phố 5 tầng tân cổ điển
- Công năng sử dụng:
+ Tầng 1:Khu để xe + Kinh doanh + Khách tạm + Bếp + WC
+ Tầng 2: 2 Phòng ngủ khép kín
+ Tầng 3: 2 Phòng ngủ khép kín
+ Tầng 4: Phòng khách + Phòng ngủ khách + WC
+ Tầng 5: Phòng Thờ + Phòng thể dục đa năng + Sân Phơi
.jpg?916)
Mẫu nhà 5 tầng kết hợp kinh doanh là hình ảnh tiêu biểu cho phong cách sống hiện đại, nơi giá trị thẩm mỹ, công năng và đẳng cấp được hội tụ trong cùng một không gian kiến trúc. Ngay từ cái nhìn đầu tiên, công trình đã gây ấn tượng mạnh với mặt tiền cao ráo, bề thế, được thiết kế chỉn chu theo phong cách sang trọng, tinh tế. Những đường nét kiến trúc được chăm chút kỹ lưỡng, từ hệ cột, phào chỉ mềm mại đến các mảng tường vuông vức khỏe khoắn, tất cả hòa quyện tạo nên một tổng thể vừa vững chãi vừa đầy cuốn hút. Khu vực tầng trệt và tầng lửng được tận dụng tối đa cho mục đích kinh doanh với hệ cửa kính lớn trong suốt, không chỉ giúp không gian bên trong trở nên rộng mở, sáng sủa mà còn tạo hiệu ứng trưng bày chuyên nghiệp, thu hút ánh nhìn của khách hàng qua lại.
Các tầng phía trên được thiết kế như một không gian sống riêng tư, yên tĩnh nhưng vẫn giữ được sự kết nối với bên ngoài thông qua hệ ban công thoáng đãng. Lan can sắt nghệ thuật hoặc kính cường lực cao cấp kết hợp cùng những chậu cây xanh nhỏ xinh mang lại cảm giác mềm mại, gần gũi thiên nhiên, giúp cân bằng lại sự nhộn nhịp của khu vực kinh doanh phía dưới. Gam màu chủ đạo thường là trắng, kem hoặc ghi sáng, được phối hợp hài hòa với các vật liệu cao cấp như đá ốp, kính, nhôm và kim loại, tạo nên vẻ đẹp thanh lịch nhưng không kém phần quyền lực.

Đặc biệt, khi về đêm, hệ thống đèn LED âm tường và đèn trang trí được bố trí khéo léo sẽ làm nổi bật từng đường nét kiến trúc, khiến ngôi nhà trở nên lung linh, nổi bật như một điểm nhấn giữa phố thị đông đúc. Không chỉ đơn thuần là nơi ở, mẫu nhà 5 tầng kết hợp kinh doanh còn là biểu tượng của sự thành đạt, thể hiện gu thẩm mỹ tinh tế và tầm nhìn của gia chủ trong việc khai thác không gian sống một cách thông minh và hiệu quả. Đây chính là lựa chọn lý tưởng cho những ai mong muốn sở hữu một không gian vừa tiện nghi để sinh hoạt, vừa tối ưu để phát triển kinh doanh bền vững và lâu dài.
2. Hình ảnh bố trí công năng
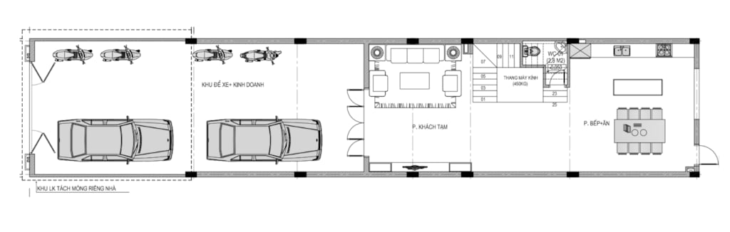
2.1. Tầng 1
+ Tầng 1:Khu để xe + Kinh doanh + Khách tạm + Bếp + WC
.png?880)
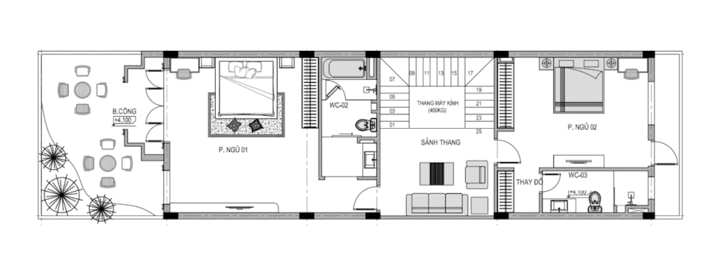
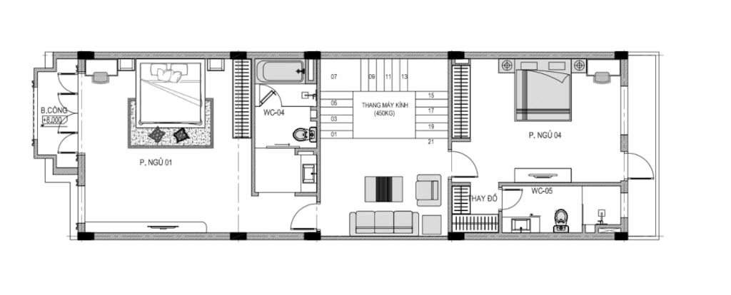
2.2. Tầng 2
+ Tầng 2: 2 Phòng ngủ khép kín
.png?555)
2.3. Tầng 3
+ Tầng 3: 2 Phòng ngủ khép kín
.png?793)
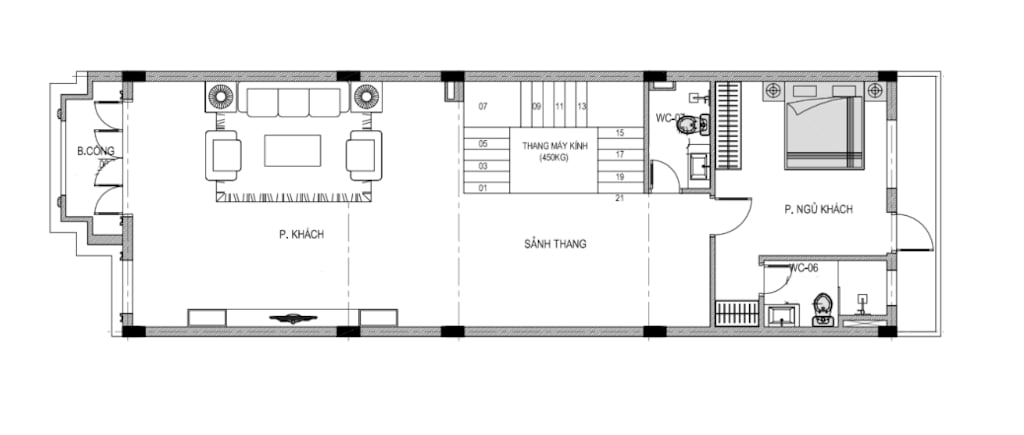
2.4. Tầng 4
+ Tầng 4: Phòng khách + Phòng ngủ khách + WC
.png?546)
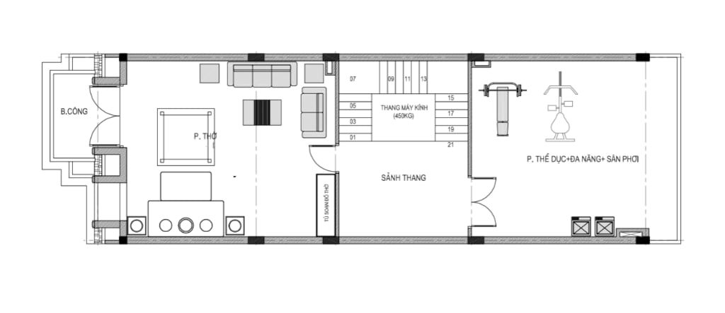
2.5. Tầng 5
+ Tầng 5: Phòng Thờ + Phòng thể dục đa năng + Sân Phơi
.png?696)
