Mẫu thiết kế nhà mái nhật 2 tầng đẹp - Chủ đầu tư: Anh Lâm, Hải Phòng
1. Phối cảnh 3D mặt tiền
- Chủ đầu tư: Anh Lâm
- Địa điểm xây dựng: Hải Phòng
- Tên công trình: Biệt thự 2 tầng mái Nhật
- Công năng sử dụng:
+ Tầng 1: Gara + Phòng khách + Phòng bếp + 1 Phòng ngủ + WC
+ Tầng 2: Phòng thờ + 1 Phòng ngủ master + 2 Phòng ngủ thường + WC + Sân phơi

Chiêm ngưỡng bản vẽ 3D nhà mái Nhật được thiết kế với khối hình vuông vắn với công năng 2 tầng 4 phòng ngủ. Công trình nhà mái Nhật hiện đại thu hút với thiết kế cân xứng, bắt mắt. Thiết kế vuông vắn không chỉ mang lại sự bề thế, bắt mắt mà theo phong thủy những khối hình kiến trúc vuông hay chữ nhật mang đến nhiều nguồn sinh khí tốt.
Bản vẽ công trình nhà 2 tầng mái nhật thu hút mọi ánh nhìn với thiết kế mạch lạc, vuông vắn và cân xứng.Các mặt của ngôi biệt thự sử dụng nhiều hệ cửa kính cường lực lấy sáng lấy gió. Các khung cửa lớn làm không gian nội thất thoáng đãng khi được kết nối với không gian bên ngoài, tận dụng được nguồn ánh sáng tự nhiên.
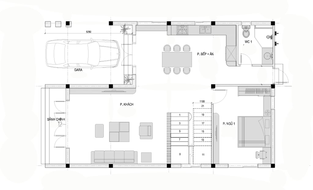
2. Hình ảnh bố trí công năng
2.1. Tầng 1
Tầng 1: Gara + Phòng khách + Phòng bếp + 1 Phòng ngủ + WC
.png?650)
2.2. Tầng 2
Tầng 2: Phòng thờ + 1 Phòng ngủ master + 2 Phòng ngủ thường + WC + Sân phơi
.png?107)
Bản vẽ chi tiết kiến trúc và phối cảnh ngoại thất 3D
Bản vẽ chi tiết kiến trúc
Bản vẽ kết cấu công trình
Bản vẽ hệ thống ME (Điện – Nước – Điều hòa – Thông gió – An ninh…)
Dự toán công trình: chi tiết chi phí xây dựng – Tổng mức đầu tư
Toàn bộ hồ sơ thiết kế công năng các phòng và kiến trúc đều được tư vấn hợp theo Phong thủy và tuổi của chủ đầu tư. Kích thước các phòng, chiều cao nhà và kích thước cửa đều theo kích thước phong thủy.
Bạn đang dự định xây nhà. Liên hệ ngay Việt Home để được tư vấn nhé!
