Mẫu thiết kế nhà ống 1 tầng có cầu thang chờ - Chủ đầu tư: Anh Dương, Nam Định
Với diện tích mặt tiền nhỏ, mẫu nhà ống là một sự lựa chọn hàng đầu về công năng cũng như thẩm mỹ.
1. Phối cảnh 3D mặt tiền
- Chủ đầu tư: Anh Dương
- Địa điểm xây dựng: Nam Định
- Tên công trình: Nhà phố 1 tầng có cầu thang chờ
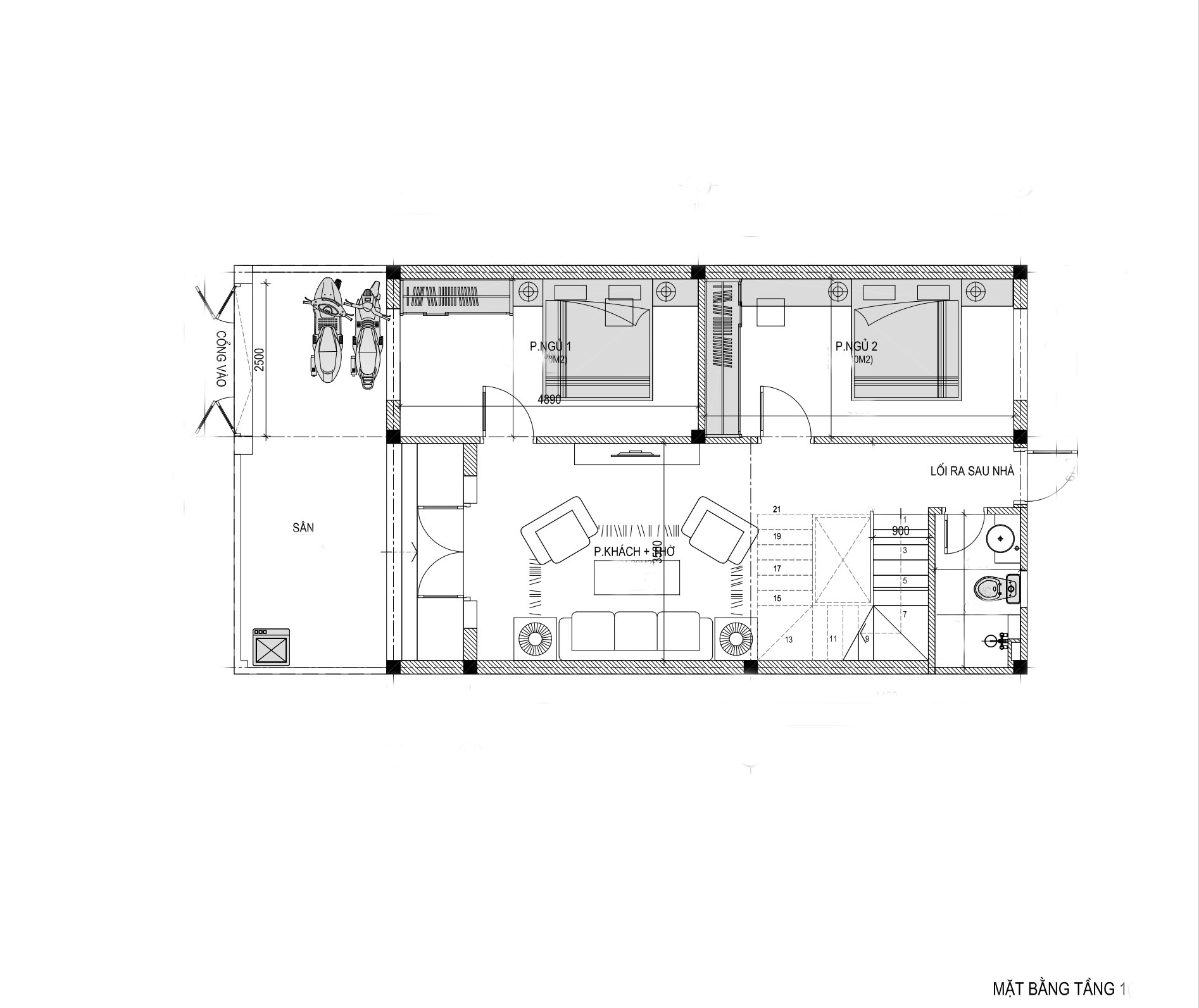
- Diện tích: 6,7x13M
- Công năng sử dụng: Sân để xe + Phòng khách và thờ + 2 Phòng ngủ + 1WC

Nhà ống 1 tầng mái bằng chủ yếu được tạo từ những góc vuông và màu sắc trầm hơn. Cột nhà lát đá tạo điểm nhấn mạnh mẽ cho cả ngôi nhà.
Với mức chi phí còn hạn chế, gia đình anh Dương quyết định xây 1 tầng trước và có bố trí sẵn cầu thang chờ để sau này lên thêm tầng.

Mẫu nhà ống được thiết kế đơn giản nhưng không đơn điệu, những khối lồi lõm được thiết kế linh hoạt tạo nên một tổng thể hài hòa, cân đối.
2. Hình ảnh bố trí công năng

.
