Nhà 1 tầng gác lửng kết hợp kinh doanh - Chủ đầu tư: Anh Cầm, Thái Nguyên
Nhà 1 tầng gác lửng có thiết kế thông minh, đầy khoa học luôn mang lại không gian sống thẩm mỹ rộng rãi và thoáng mát cho mọi gia đình. Sở hữu lô đất mặt đường, anh Cầm liên hệ với KTS Việt Home giúp anh thiết kế một ngôi nhà có thể kết hợp kinh doanh.
1. Phối cảnh 3D mặt tiền
- Chủ đầu tư: Anh Cầm
- Địa điểm xây dựng: Phổ Yên, Thái Nguyên
- Tên công trình: Nhà phố 1 tầng có gác lửng
- Diện tích xây dựng: 5x20m
- Công năng sử dụng:
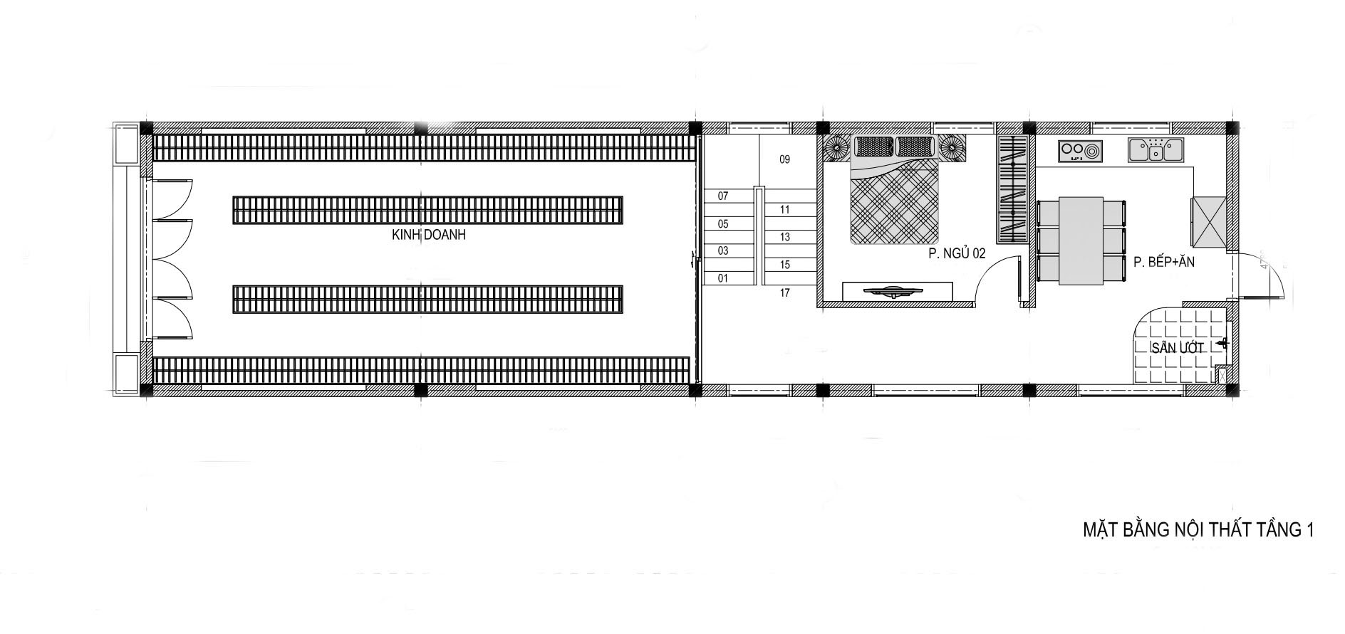
+ Tầng 1: Khu kinh doanh + Bếp ăn + 1 Phòng ngủ + Sân ướt
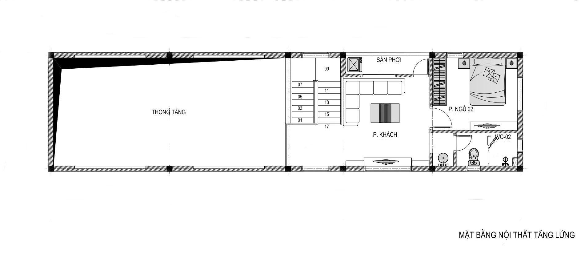
+ Tầng lửng: Phòng khách + 1 Phòng ngủ + 1WC + Sân phơi

Thiết kế nhà ống mang lại cảm giác hiện đại và độc đáo cho cả ngôi nhà. Bảng màu ấm là màu chủ đạo tạo cảm giác sáng sủa và ấm áp. Màu nâu, trắng và kem phối với nhau tạo nên bức tranh sang trọng. Đây cũng là một trong những kiểu phối màu phù hợp với nhà ống nhất. Căn nhà nổi bật giữa hàng ngàn kiến trúc trong thành phố.
Căn nhà sẽ gồm một tầng và một gác lửng. Tại khu vực tầng 1 sẽ là nơi đỗ xe cho gia đình và khách hàng và khoảng không gian phục vụ cho việc kinh doanh, bếp và sân ướt phục vụ gia đình. Tầng 1 bố trí thêm 1 phòng ngủ để thuận tiện nghỉ ngơi. Tầng lửng sẽ là nơi sinh hoạt với phòng khách và kèm 2 phòng ngủ và vệ sinh. . Phòng khách nằm tại gác lửng để tiết kiệm không gian.
2. Hình ảnh mặt bằng công năng
2.1. Tầng 1

2.2. Tầng lửng

Nếu bạn đang có nhu cầu thiết kế và xây dựng hãy liên hệ với chúng tôi để được tư vấn miễn phí!!!
