Nhà ống cao tầng 6 tầng 1 tum hiện đại – Giải pháp xây nhà đẹp trên đất hẹp đô thị - CĐT: Mr Sơn - Hà Đông, Hà Nội
1. Phối cảnh 3D mặt tiền
Chủ đầu tư: Mr. Sơn
Địa điểm xây dựng: Hà Đông, Hà Nội
Công năng sử dụng:
+ Tầng 1: Gara + Vệ sinh
+Tầng 2: Phòng khách + Vệ sinh
+ Tầng 3 - 5: Phòng ngủ khép kín
+ Tầng 6: Phòng thờ + Phòng bếp + Vệ sinh
+ Tầng tum: Giặt + Sân phơi

Mẫu nhà ống 6 tầng 1 tum của gia đình anh Sơn gây ấn tượng mạnh ngay từ cái nhìn đầu tiên nhờ thiết kế mặt tiền hiện đại, thanh thoát và có chiều sâu thẩm mỹ rõ rệt. Công trình được phát triển theo phương đứng, phù hợp với đặc trưng đất phố hẹp ngang, đồng thời tạo cảm giác cao ráo, bề thế giữa không gian đô thị đông đúc. Điểm nhấn nổi bật của mặt tiền nằm ở hệ ban công bo cong mềm mại, được lặp lại nhịp nhàng qua từng tầng, giúp tổng thể kiến trúc trở nên uyển chuyển, giảm bớt sự khô cứng thường thấy ở các mẫu nhà ống cao tầng truyền thống. Phần lan can được thiết kế dạng đặc kết hợp mảng ốp giả gỗ, tạo sự tương phản hài hòa giữa đường nét hiện đại và cảm giác ấm áp, gần gũi.
Màu sắc chủ đạo của mặt tiền là tông trắng – xám nhạt, mang đến vẻ đẹp tinh tế, sang trọng và không bị lỗi thời theo thời gian. Xen kẽ giữa các mảng tường là hệ cửa kính khung nhôm lớn, không chỉ giúp mở rộng tầm nhìn mà còn tối ưu khả năng lấy sáng tự nhiên cho không gian bên trong. Ánh sáng khi kết hợp với vật liệu kính tạo nên hiệu ứng phản chiếu nhẹ, giúp công trình trông hiện đại và thông thoáng hơn. Đặc biệt, mỗi tầng đều được bố trí cây xanh tại ban công, vừa làm mềm kiến trúc, vừa góp phần cải thiện vi khí hậu, mang lại cảm giác dễ chịu cho người sử dụng.
Phần sân thượng được thiết kế với hệ lam che hiện đại, vừa có tác dụng che nắng mưa, vừa tạo điểm nhấn kiến trúc cho toàn bộ công trình khi nhìn từ xa. Tổng thể mặt tiền mẫu nhà ống này là sự kết hợp hài hòa giữa hình khối kiến trúc, vật liệu hiện đại và yếu tố xanh, thể hiện rõ tư duy thiết kế hướng đến thẩm mỹ, công năng và sự bền vững, rất phù hợp với xu hướng nhà phố cao tầng tại các đô thị lớn hiện nay.
2. Hình ảnh bố trí công năng
2.1. Tầng 1
+ Tầng 1: Gara + Vệ sinh
.png?619)
2.2. Tầng 2
+Tầng 2: Phòng khách + Vệ sinh
.png?998)
2.3. Tầng 3-5
+ Tầng 3 - 5: Phòng ngủ khép kín
.png?492)
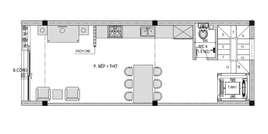
2.4. Tầng 6
+ Tầng 6: Phòng thờ + Phòng bếp + Vệ sinh
.png?101)
2.5. Tầng tum
+ Tầng tum: Giặt + Sân phơi
.png?466)
