Nhà phố 3 tầng 1 tum có gác lửng kết hợp kinh doanh - Chủ đầu tư: Anh Bộ, Bắc Giang
Nhà phố có gác lửng là một trong những loại hình rất được ưa chuộng trong việc vừa ở vừa kinh doanh. Với hiện trạng đất khá ít như hiện nay thì đây được coi là một trong những giải pháp tốt nhất ở thời điểm hiện tại. Các mô hình nhà vừa ở vừa kinh doanh mang đến một nguồn thu nhập thụ động cho gia chủ. Khi họ có thể cho thuê mặt bằng để kinh doanh, phần tầng trên vẫn để ở. Tất nhiên, nó cũng không hề làm ảnh hưởng đến các hoạt động sinh hoạt của gia đình ở bên trên.
1. Phối cảnh 3D mặt tiền
- Chủ đầu tư: Anh Bộ
- Địa điểm xây dựng: Việt Yên, Bắc Giang
- Tên công trình: Nhà phố 3 tầng 1 tum có gác lửng
- Công năng sử dụng:
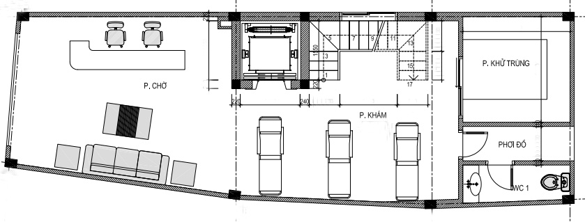
+ Tầng 1: Phòng chờ + Phòng khám + Phòng khử trùng + Phòng phơi đồ + 1WC
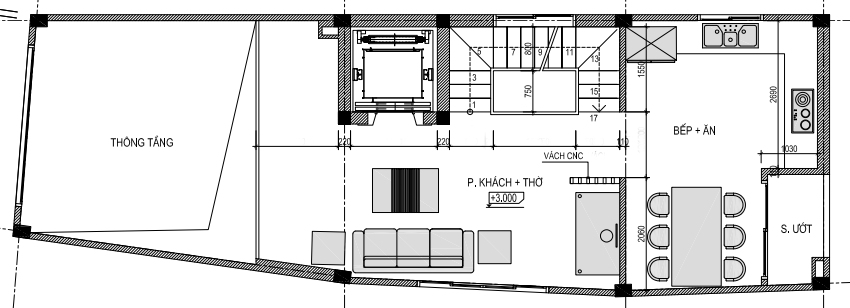
+ Tầng lửng: Phòng khách và thờ + Phòng bếp + Sân ướt
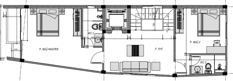
+ Tầng 2: Phòng SHC + Phòng ngủ master + Phòng ngủ khép kín
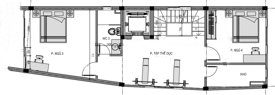
+ Tầng 3: Phòng tập thể dục + 2 Phòng ngủ thường + Kho + 1WC
+ Tầng tum: Sân thượng + Sân phơi

Mẫu nhà phố có gác lửng kết hợp kinh doanh tại Bắc Giang là sự kết hợp khá độc đáo giữa phong cách kiến trúc hiện đại và loai hình nhà phố hiện nay. Sự kết hợp giữa việc nhà ở và kinh doanh giúp gia chủ tận dụng được diện tích đất ở trong khi vẫn mang đến một nguồn thu nhập cho gia đình ngay trên chính ngôi nhà của mình.
Việc thiết kế những mẫu nhà phố 3 tầng 1tum có gác lửng kết hợp với kinh doanh không còn xa lạ trong thời gian vừa qua. Đặc biệt là thành phố năng động và đông dân cư. Thay vì phải có một nơi kinh doanh và ở riêng, họ dùng ngay chính ngôi nhà của mình để buôn bán. Trong khi tầng 2, 3, 4 sinh hoạt như bình thường thì tầng một kinh doanh mà hoàn toàn không làm ảnh hưởng đến gia chủ.
Tầng 1 được gia đình anh Bộ thiết kế thành 1 phòng khám bệnh, có đầy đủ phòng chờ, phòng khám, phòng khử trùng, đảm bảo an toàn tuyệt đối trong ngành nghề này.

Mẫu thiết kế nhà ở kết hợp kinh doanh 3 tầng 1 tum sang trọng được thiết kế đẹp hài hòa với gam màu trắng xám nhẹ nhàng thanh thoát, có hình khối vuông vức, mạnh mẽ, mái bằng làm cho ngôi nhà phố toát lên vẻ đẹp hiện đại và mới mẻ. Lan can ban công được thiết kế cầu kỳ bằng chất liệu thép không gỉ với hoa văn cách điệu tạo dáng vẻ sang trọng và thanh thoát. Ban công được trồng những chậu cây xanh, kết hợp cùng với những cột trụ lớn với những họa tiết đắp chỉ công phu tạo nên vẻ đẹp vững chắc cho ngôi nhà.
2. Bố trí công năng
2.1. Tầng 1

2.2. Tầng lửng

2.3. Tầng 2

2.4. Tầng 3

Liên hệ với Việt Home để nhận được những mẫu thiết kế nhà ống, nhà lô góc ấn tượng nhất, hứa hẹn sẽ trở thành xu hướng trong năm 2024.
