Nhà phố 4 tầng 1 tum tân cổ điển – Không gian kinh doanh & Ở kết hợp hoàn hảo - CĐT: Anh Quang, Hải Phòng
1. Phối cảnh 3D mặt tiền
Chủ đầu tư: Anh Quang
- Địa điểm xây dựng: Hải Phòng
- Công năng sử dụng:
+ Tầng 1: Khu vực kinh doanh + WC + Bếp
+ Tầng 2: Khu vực kinh doanh
+ Tầng 3: 2 Phòng ngủ khép kín
+ Tầng 4: Phòng thờ + 1 Phòng ngủ + WC
+ Tầng tum: Sân thượng + BBQ
.jpg?817)
Mẫu nhà phố 4 tầng 1 tum phong cách tân cổ điển gây ấn tượng mạnh ngay từ cái nhìn đầu tiên với vẻ đẹp sang trọng, thanh thoát và đầy cuốn hút. Mặt tiền được thiết kế theo bố cục cân đối, hài hòa, kết hợp tinh tế giữa những đường phào chỉ mềm mại.
Các chi tiết trang trí được tiết chế vừa phải, không quá cầu kỳ nhưng đủ để tôn lên sự tinh tế và đẳng cấp cho toàn bộ công trình. Tông màu trắng – kem chủ đạo giúp ngôi nhà nổi bật giữa khu phố, tạo cảm giác nhẹ nhàng nhưng không kém phần quyền quý.

Ban công các tầng được thiết kế rộng thoáng với lan can sắt mỹ thuật uốn cong mềm mại, tạo điểm nhấn cho mặt tiền đồng thời mang đến những khoảng không gian thư giãn giàu tính thẩm mỹ. Cửa kính cường lực khung viền sang trọng giúp tối ưu ánh sáng tự nhiên, mang đến vẻ ngoài hiện đại xen lẫn cổ điển đặc trưng.
Tầng 1 và tầng 2 thông sàn được thiết kế với hệ cửa lớn tạo sự thông thoáng và giúp mặt tiền trở nên mở hơn, phù hợp cho hoạt động kinh doanh hoặc trưng bày sản phẩm. Đường nét kiến trúc được xử lý mượt mà, tỉ lệ các khối hình được tính toán kỹ lưỡng, giúp toàn bộ ngôi nhà trở nên bề thế, kiêu sa nhưng vẫn rất tinh gọn và thanh lịch.

2. Công năng sử dụng
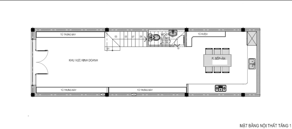
2.1. Tầng 1
Khu vực kinh doanh + WC + Bếp
.png?882)
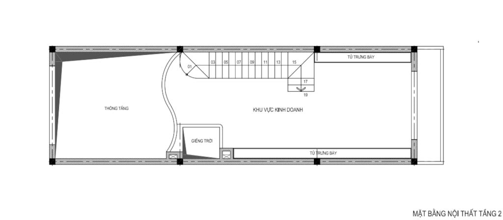
2.2. Tầng 2
Khu vực kinh doanh
.png?259)
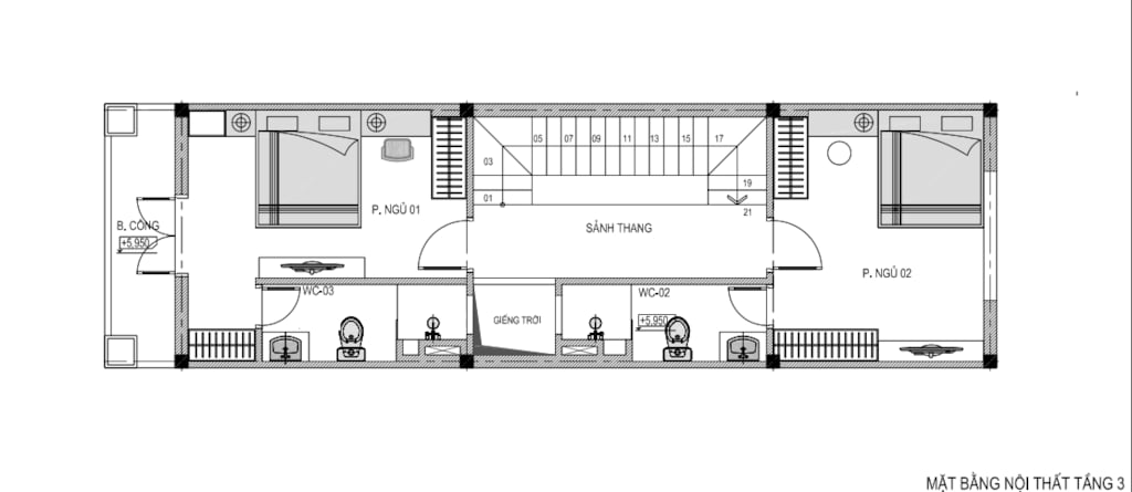
2.3. Tầng 3
2 Phòng ngủ khép kín
.png?832)
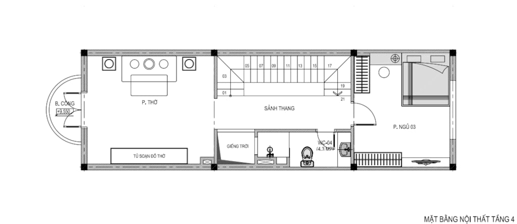
2.4. Tầng 4
Phòng thờ + 1 Phòng ngủ + WC
.png?87)
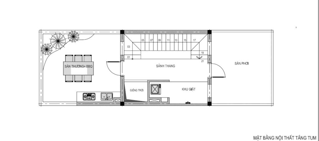
2.5. Tầng tum
Sân thượng + BBQ
.png?623)
3. Hình ảnh thi công
.png?603)
.png?463)
.png?571)
.png?901)
